Account: R1051602
April 1, 2026
| Account | Parcel | Account Type | Tax Year | Buildings | Actual Value | Local Govt Assessed Value | School Assessed Value |
|---|---|---|---|---|---|---|---|
| R1051602 | 096116109020 | Residential | 2026 | 1 | 331,282 | 20,700 | 23,360 |
| Legal |
|---|
| GR 2BV L10A BLK3 BALSAM VILLAGE 2ND FG |
| Subdivision | Block | Lot | Land Economic Area |
|---|---|---|---|
| BALSAM VILLAGE 2ND FG | 3 | 10A | BALSAM VILLAGE |
| Property Address | Property City | Section | Township | Range |
|---|---|---|---|---|
| 895 E 20TH STREET DR | GREELEY | 16 | 05 | 65 |
| Account | Parcel | Account Type | Tax Year | Buildings | Actual Value | Local Govt Assessed Value | School Assessed Value |
|---|---|---|---|---|---|---|---|
| R1051602 | 096116109020 | Residential | 2026 | 1 | 331,282 | 20,700 | 23,360 |
| Account | Owner Name | Address |
|---|---|---|
| R1051602 | RASCON MELISSA | 895 E 20TH STREET DR GREELEY, CO 806316170 |
| Account | Parcel | Account Type | Tax Year | Buildings | Actual Value | Local Govt Assessed Value | School Assessed Value |
|---|---|---|---|---|---|---|---|
| R1051602 | 096116109020 | Residential | 2026 | 1 | 331,282 | 20,700 | 23,360 |
| Reception | Rec Date | Type | Grantor | Grantee | Doc Fee | Sale Date | Sale Price |
|---|---|---|---|---|---|---|---|
| 2863869 | NA | SUB | SUBDIVISION | BALSAM VILLAGE 2ND FG | 0.00 | NA | 0 |
| 2933165 | 03-14-2002 | WD | BALSAM VILLAGE II LLC | JOURNEY HOMES LLC | 104.80 | 03-12-2002 | 1,048,000 |
| 2973926 | 08-01-2002 | WD | JOURNEY HOMES LLC | AVILA HUMBERTO & TOTOS MELISSA | 12.39 | 07-31-2002 | 123,900 |
| 3630569 | 06-16-2009 | PTD | AVILA HUMBERTO | SECRETARY OF HOUSING & URBAN | 0.00 | 06-16-2009 | 0 |
| 3645719 | 08-31-2009 | SWD | USA HUD | HEPP LISA L | 7.00 | 08-24-2009 | 70,000 |
| 3971996 | 10-18-2013 | WDE | HEPP LISA L | OLSON MICHAEL WAYNE | 11.02 | 10-16-2013 | 110,200 |
| 4832467 | 06-03-2022 | WD | OLSON LAURIE A; OLSON MICHAEL WAYNE | RASCON MELISSA | 33.00 | 05-27-2022 | 330,000 |
*If the hyperlink for the reception number does not work, try a manual search in the Clerk and Recorder records. Use the Grantor or Grantee in your search.
| Account | Parcel | Account Type | Tax Year | Buildings | Actual Value | Local Govt Assessed Value | School Assessed Value |
|---|---|---|---|---|---|---|---|
| R1051602 | 096116109020 | Residential | 2026 | 1 | 331,282 | 20,700 | 23,360 |
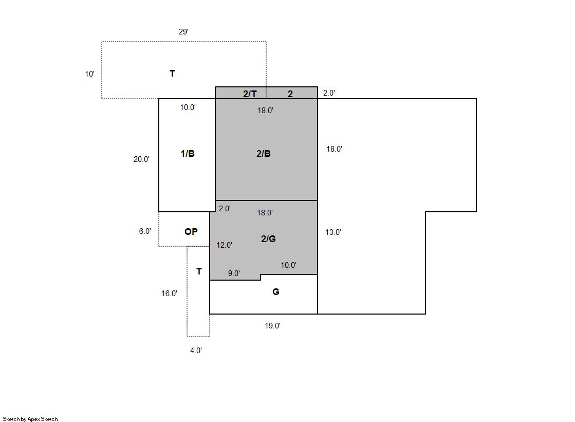
Building 1
| AccountNo | Building ID | Occupancy |
|---|---|---|
| R1051602 | 1 | Duplex |
| ID | Type | NBHD | Occupancy | % Complete | Bedrooms | Baths |
|---|---|---|---|---|---|---|
| 1 | Duplex | 6G0035 | Duplex | 100 | 3 | 2.00 |
| ID | Exterior | Roof Cover | Interior | HVAC | Perimeter | Units | Unit Type | Make |
|---|---|---|---|---|---|---|---|---|
| 1 | Frame Vinyl | Composition Shingle | Drywall | Central Air to Air | 0 | 1 | End | NA |
| ID | Square Ft | Condo SF | Total Basement SF | Finished Basement SF | Garage SF | Carport SF | Balcony SF | Porch SF |
|---|---|---|---|---|---|---|---|---|
| 1 | 1,138 | 0 | 524 | 0 | 378 | 0 | 0 | 54 |
| ID | Built As | Square Ft | Year Built | Stories | Length | Width |
|---|---|---|---|---|---|---|
| 1.00 | Duplex Two Story | 1,138 | 2002 | 2 | 0 | 0 |
| ID | Detail Type | Description | Units |
|---|---|---|---|
| 1 | Basement | Total Basement SF | 524.00 |
| 1 | Fixture | Full Bath | 1.00 |
| 1 | Fixture | Half Bath | 1.00 |
| 1 | Garage | Attached | 378.00 |
| 1 | Porch | Open Slab | 354.00 |
| 1 | Porch | Slab Roof Ceil | 54.00 |
| 1 | Rough In | Rough In | 1.00 |
| Account | Parcel | Account Type | Tax Year | Buildings | Actual Value | Local Govt Assessed Value | School Assessed Value |
|---|---|---|---|---|---|---|---|
| R1051602 | 096116109020 | Residential | 2026 | 1 | 331,282 | 20,700 | 23,360 |
| Type | Code | Description | Actual Value | Local Govt Assessed Value | School Assessed Value | Acres | Land SqFt |
|---|---|---|---|---|---|---|---|
| Improvement | 1212 | SINGLE FAMILY RESIDENTIAL IMPROVEMENTS | 274,282 | 17,140 | 19,340 | 0.000 | 0 |
| Land | 1112 | SINGLE FAMILY RESIDENTIAL-LAND | 57,000 | 3,560 | 4,020 | 0.078 | 3,402 |
| Totals | - | - | 331,282 | 20,700 | 23,360 | 0.078 | 3,402 |
Comparable sales for your Residential or Commercial property may be found using our SALES SEARCH TOOL
Values are updated annually on May 1st for Real Property and June 15th for Personal Property and Oil and Gas.
| Account | Parcel | Account Type | Tax Year | Buildings | Actual Value | Local Govt Assessed Value | School Assessed Value |
|---|---|---|---|---|---|---|---|
| R1051602 | 096116109020 | Residential | 2026 | 1 | 331,282 | 20,700 | 23,360 |
| Tax Area | District ID | District Name | Local Govt Mill Levy |
School Mill Levy |
Estimated Taxes |
|---|---|---|---|---|---|
| 0600 | 0700 | AIMS JUNIOR COLLEGE | 6.313 | 0.000 | $130.68 |
| 0600 | 0411 | GREELEY CITY | 11.274 | 0.000 | $233.37 |
| 0600 | 1050 | HIGH PLAINS LIBRARY | 3.044 | 0.000 | $63.01 |
| 0600 | 0301 | NORTHERN COLORADO WATER (NCW) | 1.000 | 0.000 | $20.70 |
| 0600 | 0206 | SCHOOL DIST 6-GREELEY | 0.000 | 47.615 | $1,112.29 |
| 0600 | 0100 | WELD COUNTY | 15.956 | 0.000 | $330.29 |
| Total | - | - | 37.587 | 47.615 | $1,890.34 |
The estimate of tax is based on the prior year mill levy and the 2025 projected assessment rates. Mill levies and tax estimates will be updated yearly on December 22nd for the current year. Additional information can be found at https://assessor.weld.gov



