Account: R1053896
April 4, 2026
| Account | Parcel | Account Type | Tax Year | Buildings | Actual Value | Local Govt Assessed Value | School Assessed Value |
|---|---|---|---|---|---|---|---|
| R1053896 | 131130328002 | Residential | 2026 | 1 | 512,105 | 32,010 | 36,100 |
| Legal |
|---|
| FRE 3PE6-2 L2 LK6 PARKVIEW ESTATES 3RD SUB |
| Subdivision | Block | Lot | Land Economic Area |
|---|---|---|---|
| PARKVIEW ESTATES 3RD SUB | 6 | 2 | PARKVIEW ESTATES |
| Property Address | Property City | Section | Township | Range |
|---|---|---|---|---|
| 535 PINE ST | FREDERICK | 30 | 02 | 67 |
| Account | Parcel | Account Type | Tax Year | Buildings | Actual Value | Local Govt Assessed Value | School Assessed Value |
|---|---|---|---|---|---|---|---|
| R1053896 | 131130328002 | Residential | 2026 | 1 | 512,105 | 32,010 | 36,100 |
| Account | Owner Name | Address |
|---|---|---|
| R1053896 | BEUTEN DARIAN | 535 PINE ST FREDERICK, CO 805308038 |
| R1053896 | BEUTEN JESSICA |
| Account | Parcel | Account Type | Tax Year | Buildings | Actual Value | Local Govt Assessed Value | School Assessed Value |
|---|---|---|---|---|---|---|---|
| R1053896 | 131130328002 | Residential | 2026 | 1 | 512,105 | 32,010 | 36,100 |
| Reception | Rec Date | Type | Grantor | Grantee | Doc Fee | Sale Date | Sale Price |
|---|---|---|---|---|---|---|---|
| 2407403 | 09-20-1994 | QCN | WYSOCK B J TRUST AKA | 0.00 | 01-01-1900 | 0 | |
| 2459664 | NA | SUB | SUBDIVISION | PARKVIEW ESTATES 3RD | 0.00 | NA | 0 |
| 2465060 | 11-27-1995 | WD | WYSOCK B J TRUST AKA | MERCIER THOMAS J & | 5.67 | 11-17-1995 | 56,700 |
| 2465061 | 11-27-1995 | WD | MERCIER THOMAS J & | MARQUIS HOMES INC | 6.47 | 11-17-1995 | 64,700 |
| 2479382 | 03-05-1996 | WD | MARQUIS HOMES INC | CASEY TIMOTHY J & ADRIENNE S | 13.00 | 02-28-1996 | 130,000 |
| 3438018 | 11-29-2006 | WD | CASEY TIMOTHY J & ADRIENNE S | BARBOUR GARY R & | 21.25 | 11-27-2006 | 212,500 |
| 5010491 | 02-10-2025 | WD | BARBOUR CLAUDIA; BARBOUR GARY R | BEUTEN DARIAN; BEUTEN JESSICA | 48.00 | 02-07-2025 | 480,000 |
*If the hyperlink for the reception number does not work, try a manual search in the Clerk and Recorder records. Use the Grantor or Grantee in your search.
| Account | Parcel | Account Type | Tax Year | Buildings | Actual Value | Local Govt Assessed Value | School Assessed Value |
|---|---|---|---|---|---|---|---|
| R1053896 | 131130328002 | Residential | 2026 | 1 | 512,105 | 32,010 | 36,100 |
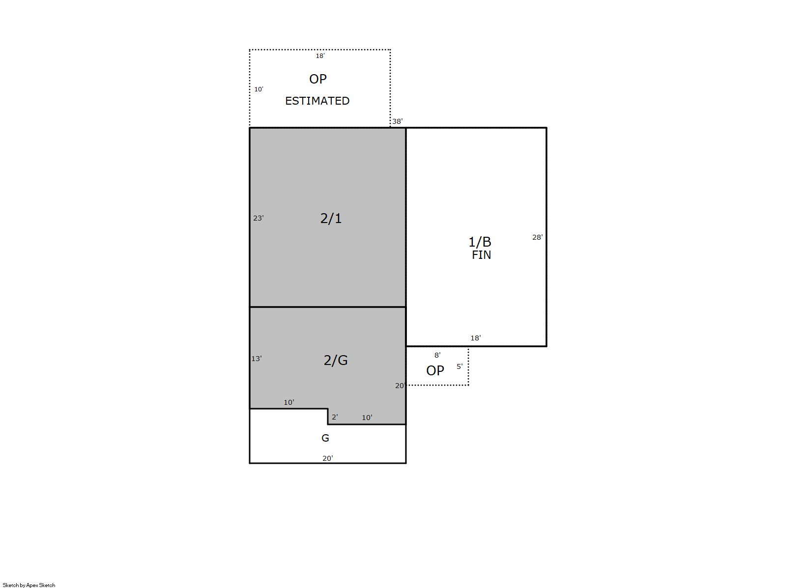
Building 1
| AccountNo | Building ID | Occupancy |
|---|---|---|
| R1053896 | 1 | Single Family Residential |
| ID | Type | NBHD | Occupancy | % Complete | Bedrooms | Baths |
|---|---|---|---|---|---|---|
| 1 | Residential | 3K3025 | Single Family Residential | 100 | 5 | 4.00 |
| ID | Exterior | Roof Cover | Interior | HVAC | Perimeter | Units | Unit Type | Make |
|---|---|---|---|---|---|---|---|---|
| 1 | Frame Siding | Composition Shingle | Drywall | Central Air to Air | 248 | 0 | NA | NA |
| ID | Square Ft | Condo SF | Total Basement SF | Finished Basement SF | Garage SF | Carport SF | Balcony SF | Porch SF |
|---|---|---|---|---|---|---|---|---|
| 1 | 1,704 | 0 | 504 | 504 | 400 | 0 | 0 | 220 |
| ID | Built As | Square Ft | Year Built | Stories | Length | Width |
|---|---|---|---|---|---|---|
| 1.00 | 2 Story | 1,704 | 1996 | 2 | 0 | 0 |
| ID | Detail Type | Description | Units |
|---|---|---|---|
| 1 | Basement | Finished | 504.00 |
| 1 | Basement | Total Basement SF | 504.00 |
| 1 | Fixture | Full Bath | 3.00 |
| 1 | Fixture | Half Bath | 1.00 |
| 1 | Garage | Attached | 400.00 |
| 1 | Porch | Slab Roof Ceil | 220.00 |
| Account | Parcel | Account Type | Tax Year | Buildings | Actual Value | Local Govt Assessed Value | School Assessed Value |
|---|---|---|---|---|---|---|---|
| R1053896 | 131130328002 | Residential | 2026 | 1 | 512,105 | 32,010 | 36,100 |
| Type | Code | Description | Actual Value | Local Govt Assessed Value | School Assessed Value | Acres | Land SqFt |
|---|---|---|---|---|---|---|---|
| Improvement | 1212 | SINGLE FAMILY RESIDENTIAL IMPROVEMENTS | 392,105 | 24,510 | 27,640 | 0.000 | 0 |
| Land | 1112 | SINGLE FAMILY RESIDENTIAL-LAND | 120,000 | 7,500 | 8,460 | 0.200 | 8,866 |
| Totals | - | - | 512,105 | 32,010 | 36,100 | 0.200 | 8,866 |
Comparable sales for your Residential or Commercial property may be found using our SALES SEARCH TOOL
Values are updated annually on May 1st for Real Property and June 15th for Personal Property and Oil and Gas.
| Account | Parcel | Account Type | Tax Year | Buildings | Actual Value | Local Govt Assessed Value | School Assessed Value |
|---|---|---|---|---|---|---|---|
| R1053896 | 131130328002 | Residential | 2026 | 1 | 512,105 | 32,010 | 36,100 |
| Tax Area | District ID | District Name | Local Govt Mill Levy |
School Mill Levy |
Estimated Taxes |
|---|---|---|---|---|---|
| 1459 | 0900 | CARBON VALLEY REC | 4.427 | 0.000 | $141.71 |
| 1459 | 0408 | FREDERICK TOWN | 6.555 | 0.000 | $209.83 |
| 1459 | 0507 | FREDERICK-FIRESTONE FIRE | 15.559 | 0.000 | $498.04 |
| 1459 | 1050 | HIGH PLAINS LIBRARY | 3.044 | 0.000 | $97.44 |
| 1459 | 0301 | NORTHERN COLORADO WATER (NCW) | 1.000 | 0.000 | $32.01 |
| 1459 | 0213 | SCHOOL DIST RE1J-LONGMONT | 0.000 | 57.717 | $2,083.58 |
| 1459 | 0620 | ST VRAIN SANITATION | 0.316 | 0.000 | $10.12 |
| 1459 | 0100 | WELD COUNTY | 15.956 | 0.000 | $510.75 |
| Total | - | - | 46.857 | 57.717 | $3,583.48 |
The estimate of tax is based on the prior year mill levy and the 2025 projected assessment rates. Mill levies and tax estimates will be updated yearly on December 22nd for the current year. Additional information can be found at https://assessor.weld.gov


