Account: R1070696

April 4, 2026

Account Parcel Account Type Tax Year Buildings Actual Value Local Govt Assessed Value School Assessed Value
R1070696 095903112005 Residential 2026 1 479,333 29,960 33,790

Legal
GR 7WBW12-5 L5 BLK12 WEBER WEST 7TH REPLAT

Subdivision Block Lot Land Economic Area
WEBER WEST 7TH RPLT 12 5 WEBER WEST

Property Address Property City Section Township Range
100 N 50TH AVE GREELEY 03 05 66




Account Parcel Account Type Tax Year Buildings Actual Value Local Govt Assessed Value School Assessed Value
R1070696 095903112005 Residential 2026 1 479,333 29,960 33,790

Account Owner Name Address
R1070696 SHELTON KRISTOPHER 100 N 50TH AVE GREELEY, CO 806344707
R1070696 SHELTON JENNA


Account Parcel Account Type Tax Year Buildings Actual Value Local Govt Assessed Value School Assessed Value
R1070696 095903112005 Residential 2026 1 479,333 29,960 33,790

Reception Rec Date Type Grantor Grantee Doc Fee Sale Date Sale Price
2384221 04-18-1994 WDN 0.00 01-01-1900 0
2443578 NA SUB SUBDIVISION WEBER WEST 7TH RPLT 0.00 NA 0
2472532 01-19-1996 WD PRO LAND LLC WEBER RICHARD D 62.65 01-15-1996 626,500
2519097 11-05-1996 WD MEEK INC SMITH MELISSA K 13.10 11-01-1996 131,000
2738259 12-13-1999 WD SMITH MELISSA K RENNER RODNEY & JENNIFER E 15.59 12-10-1999 155,900
3344398 12-02-2005 WD RENNER RODNEY & JENNIFER E CENDANT MOBILITY FINANCIAL CORPORATION 20.50 10-20-2005 205,000
3344399 12-02-2005 WD CENDANT MOBILITY FINANCIAL CORPORATION FLORES JOSE REYES 20.50 10-26-2005 205,000
4191539 03-30-2016 QCN FLORES JOSE REYES REYES JOSE L 0.00 03-22-2016 0
4825997 05-10-2022 SWD REYES JOSE L SHELTON KRISTOPHER; SHELTON JENNA 46.00 05-05-2022 460,000
4847410 08-09-2022 AFFD REYES JOSE L SHELTON KRISTOPHER; SHELTON JENNA 0.00 08-09-2022 0



Account Parcel Account Type Tax Year Buildings Actual Value Local Govt Assessed Value School Assessed Value
R1070696 095903112005 Residential 2026 1 479,333 29,960 33,790

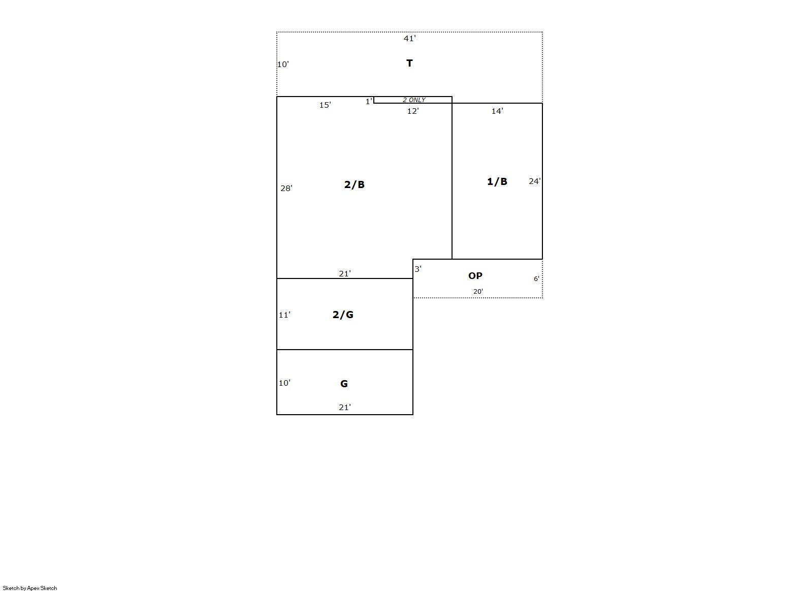
Building 1

AccountNo Building ID Occupancy
R1070696 1 Single Family Residential


ID Type NBHD Occupancy % Complete Bedrooms Baths
1 Residential 2G3011 Single Family Residential 100 4 4.00


ID Exterior Roof Cover Interior HVAC Perimeter Units Unit Type Make
1 Frame Hardboard Composition Shingle Drywall Central Air to Air 270 0 NA NA


ID Square Ft Condo SF Total Basement SF Finished Basement SF Garage SF Carport SF Balcony SF Porch SF
1 2,031 0 1,062 1,062 441 0 0 120


Built As Details for Building 1
ID Built As Square Ft Year Built Stories Length Width
1.00 2 Story 2,031 1996 2 0 0


Additional Details for Building 1
ID Detail Type Description Units
1 Basement Finished 1062.00
1 Basement Total Basement SF 1062.00
1 Fixture Full Bath 3.00
1 Fixture Half Bath 1.00
1 Garage Attached 441.00
1 Porch Open Slab 424.00
1 Porch Slab Roof Ceil 120.00





Account Parcel Account Type Tax Year Buildings Actual Value Local Govt Assessed Value School Assessed Value
R1070696 095903112005 Residential 2026 1 479,333 29,960 33,790

Type Code Description Actual Value Local Govt Assessed Value School Assessed Value Acres Land SqFt
Improvement 1212 SINGLE FAMILY RESIDENTIAL IMPROVEMENTS 394,333 24,650 27,800 0.000 0
Land 1112 SINGLE FAMILY RESIDENTIAL-LAND 85,000 5,310 5,990 0.140 6,000
Totals - - 479,333 29,960 33,790 0.140 6,000


Account Parcel Account Type Tax Year Buildings Actual Value Local Govt Assessed Value School Assessed Value
R1070696 095903112005 Residential 2026 1 479,333 29,960 33,790

Tax Area District ID District Name Local Govt
Mill Levy
School
Mill Levy
Estimated
Taxes
0600 0700 AIMS JUNIOR COLLEGE 6.313 0.000 $189.14
0600 0411 GREELEY CITY 11.274 0.000 $337.77
0600 1050 HIGH PLAINS LIBRARY 3.044 0.000 $91.20
0600 0301 NORTHERN COLORADO WATER (NCW) 1.000 0.000 $29.96
0600 0206 SCHOOL DIST 6-GREELEY 0.000 47.615 $1,608.91
0600 0100 WELD COUNTY 15.956 0.000 $478.04
Total - - 37.587 47.615 $2,735.02


The estimate of tax is based on the prior year mill levy and the 2025 projected assessment rates. Mill levies and tax estimates will be updated yearly on December 22nd for the current year. Additional information can be found at https://assessor.weld.gov










Select Reports to Print: