Account: R1088996

April 4, 2026

Account Parcel Account Type Tax Year Buildings Actual Value Local Govt Assessed Value School Assessed Value
R1088996 070711418024 Residential 2026 1 458,454 28,650 32,330

Legal
ALT GG-24 L24 G & G SUB 2ND FG

Subdivision Block Lot Land Economic Area
G & G SUB 2ND FG 24 AULT WEST

Property Address Property City Section Township Range
648 ALPINE AVE AULT 11 07 66




Account Parcel Account Type Tax Year Buildings Actual Value Local Govt Assessed Value School Assessed Value
R1088996 070711418024 Residential 2026 1 458,454 28,650 32,330

Account Owner Name Address
R1088996 SALAZAR GILBERT 648 ALPINE AVE AULT, CO 806105040


Account Parcel Account Type Tax Year Buildings Actual Value Local Govt Assessed Value School Assessed Value
R1088996 070711418024 Residential 2026 1 458,454 28,650 32,330

Reception Rec Date Type Grantor Grantee Doc Fee Sale Date Sale Price
2389437 05-19-1994 PRDN GOODELL GEORGE & GERALDINE 0.00 01-01-1900 0
2425856 NA SUB SUBDIVISION G & G FG #2 0.00 NA 0
2442473 06-14-1995 WD GOODELL GEORGE & GERALDINE CCW INC 4.20 06-13-1995 42,000
2467142 12-12-1995 WD CCW INC GARRISON CONSTRUCTION INC 1.80 12-08-1995 18,000
2493497 05-29-1996 WD GARRISON CONSTRUCTION INC ROBERTS DONALD B & JANET L 13.60 05-24-1996 136,000
3059265 05-05-2003 WD ROBERTS DONALD B & JANET L OVERTON ALAN M & AMY J 18.40 04-30-2003 184,000
4265048 12-27-2016 WD OVERTON AMY J; OVERTON ALAN M KIMMEL MARTHA L 27.99 12-22-2016 279,900
4808642 03-09-2022 WD KIMMEL MARTHA L SALAZAR GILBERT 36.50 03-07-2022 365,000



Account Parcel Account Type Tax Year Buildings Actual Value Local Govt Assessed Value School Assessed Value
R1088996 070711418024 Residential 2026 1 458,454 28,650 32,330

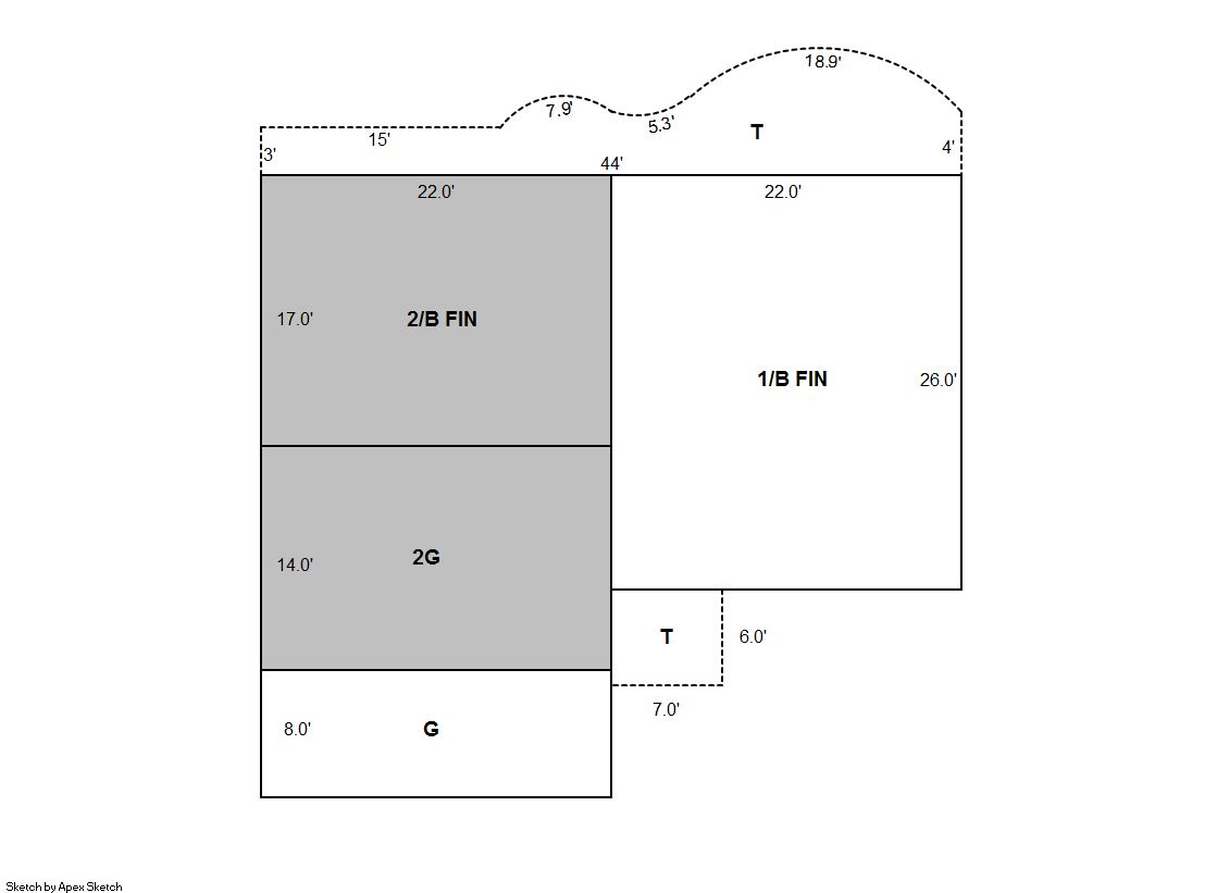
Building 1

AccountNo Building ID Occupancy
R1088996 1 Single Family Residential


ID Type NBHD Occupancy % Complete Bedrooms Baths
1 Residential 9A1046 Single Family Residential 100 5 4.00


ID Exterior Roof Cover Interior HVAC Perimeter Units Unit Type Make
1 Frame Hardboard Composition Shingle Drywall Central Air to Air 246 0 NA NA


ID Square Ft Condo SF Total Basement SF Finished Basement SF Garage SF Carport SF Balcony SF Porch SF
1 1,628 0 946 946 484 0 0 257


Built As Details for Building 1
ID Built As Square Ft Year Built Stories Length Width
1.00 2 Story 1,628 1996 2 0 0


Additional Details for Building 1
ID Detail Type Description Units
1 Basement Finished 946.00
1 Basement Total Basement SF 946.00
1 Fixture Full Bath 3.00
1 Fixture Half Bath 1.00
1 Garage Attached 484.00
1 Porch Open Slab 257.00





Account Parcel Account Type Tax Year Buildings Actual Value Local Govt Assessed Value School Assessed Value
R1088996 070711418024 Residential 2026 1 458,454 28,650 32,330

Type Code Description Actual Value Local Govt Assessed Value School Assessed Value Acres Land SqFt
Improvement 1212 SINGLE FAMILY RESIDENTIAL IMPROVEMENTS 386,454 24,150 27,250 0.000 0
Land 1112 SINGLE FAMILY RESIDENTIAL-LAND 72,000 4,500 5,080 0.206 8,951
Totals - - 458,454 28,650 32,330 0.206 8,951


Account Parcel Account Type Tax Year Buildings Actual Value Local Govt Assessed Value School Assessed Value
R1088996 070711418024 Residential 2026 1 458,454 28,650 32,330

Tax Area District ID District Name Local Govt
Mill Levy
School
Mill Levy
Estimated
Taxes
0931 0700 AIMS JUNIOR COLLEGE 6.313 0.000 $180.87
0931 0501 AULT FIRE 7.266 0.000 $208.17
0931 0401 AULT TOWN 6.741 0.000 $193.13
0931 1050 HIGH PLAINS LIBRARY 3.044 0.000 $87.21
0931 0301 NORTHERN COLORADO WATER (NCW) 1.000 0.000 $28.65
0931 0209 SCHOOL DIST RE9-AULT 0.000 34.176 $1,104.91
0931 0100 WELD COUNTY 15.956 0.000 $457.14
0931 1200 WEST GREELEY CONSERVATION 0.414 0.000 $11.86
Total - - 40.734 34.176 $2,271.94


The estimate of tax is based on the prior year mill levy and the 2025 projected assessment rates. Mill levies and tax estimates will be updated yearly on December 22nd for the current year. Additional information can be found at https://assessor.weld.gov










Select Reports to Print: