Account: R1089396
April 5, 2026
| Account | Parcel | Account Type | Tax Year | Buildings | Actual Value | Local Govt Assessed Value | School Assessed Value |
|---|---|---|---|---|---|---|---|
| R1089396 | 070711418028 | Residential | 2026 | 1 | 474,187 | 29,640 | 33,430 |
| Legal |
|---|
| ALT GG-28 L28 G & G SUB 2ND FG |
| Subdivision | Block | Lot | Land Economic Area |
|---|---|---|---|
| G & G SUB 2ND FG | 28 | AULT WEST |
| Property Address | Property City | Section | Township | Range |
|---|---|---|---|---|
| 717 ALPINE AVE | AULT | 11 | 07 | 66 |
| Account | Parcel | Account Type | Tax Year | Buildings | Actual Value | Local Govt Assessed Value | School Assessed Value |
|---|---|---|---|---|---|---|---|
| R1089396 | 070711418028 | Residential | 2026 | 1 | 474,187 | 29,640 | 33,430 |
| Account | Owner Name | Address |
|---|---|---|
| R1089396 | WEST THOMAS JR | 717 ALPINE AVE # 1174 AULT, CO 806105041 |
| R1089396 | WEST ASHLEY |
| Account | Parcel | Account Type | Tax Year | Buildings | Actual Value | Local Govt Assessed Value | School Assessed Value |
|---|---|---|---|---|---|---|---|
| R1089396 | 070711418028 | Residential | 2026 | 1 | 474,187 | 29,640 | 33,430 |
| Reception | Rec Date | Type | Grantor | Grantee | Doc Fee | Sale Date | Sale Price |
|---|---|---|---|---|---|---|---|
| 2389437 | 05-19-1994 | PRDN | GOODELL GEORGE & GERALDINE | 0.00 | 01-01-1900 | 0 | |
| 2425856 | NA | SUB | SUBDIVISION | G & G FG #2 | 0.00 | NA | 0 |
| 2488661 | 05-01-1996 | WD | GOODELL GEORGE & GERALDINE | CCW INC | 1.40 | 04-29-1996 | 14,000 |
| 2492891 | 05-24-1996 | WD | CCW INC | D & J CUSTOM HOMES | 2.30 | 05-23-1996 | 23,000 |
| 2515384 | 10-11-1996 | WD | D & J CUSTOM HOMES | HARMON THOMAS J & AMII E | 13.48 | 10-09-1996 | 134,800 |
| 3964337 | 09-18-2013 | WD | HARMON AMII E | DAVIS BRIAN A | 24.85 | 09-17-2013 | 248,500 |
| 4411387 | 06-29-2018 | WD | DAVIS BRIAN A | WILLIAMS RYAN L | 32.35 | 06-25-2018 | 323,500 |
| 4600364 | 06-18-2020 | AFFD | DAVIS ALICIA B; DAVIS BRIAN A | WILLIAMS DANIELLE R; WILLIAMS RYAN L | 0.00 | 06-18-2020 | 0 |
| 4626327 | 09-03-2020 | WD | WILLIAMS RYAN L; WILLIAMS DANIELLE R | WHITAKER BRUCE | 36.00 | 07-13-2020 | 360,000 |
| 4666014 | 12-29-2020 | AFFD | WILLIAMS RYAN L; WILLIAMS DANIELLE R | WHITAKER BRUCE | 0.00 | 12-28-2020 | 0 |
| 4901068 | 05-31-2023 | SWD | WHITAKER BRUCE | WEST THOMAS JR; WEST ASHLEY | 47.50 | 05-26-2023 | 475,000 |
*If the hyperlink for the reception number does not work, try a manual search in the Clerk and Recorder records. Use the Grantor or Grantee in your search.
| Account | Parcel | Account Type | Tax Year | Buildings | Actual Value | Local Govt Assessed Value | School Assessed Value |
|---|---|---|---|---|---|---|---|
| R1089396 | 070711418028 | Residential | 2026 | 1 | 474,187 | 29,640 | 33,430 |
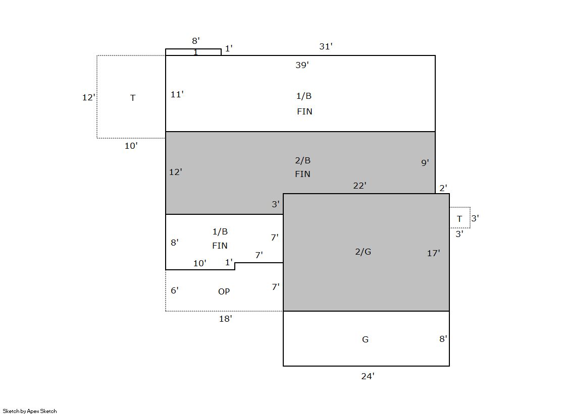
Building 1
| AccountNo | Building ID | Occupancy |
|---|---|---|
| R1089396 | 1 | Single Family Residential |
| ID | Type | NBHD | Occupancy | % Complete | Bedrooms | Baths |
|---|---|---|---|---|---|---|
| 1 | Residential | 9A1046 | Single Family Residential | 100 | 4 | 3.00 |
| ID | Exterior | Roof Cover | Interior | HVAC | Perimeter | Units | Unit Type | Make |
|---|---|---|---|---|---|---|---|---|
| 1 | Frame Vinyl | Composition Shingle | Drywall | Central Air to Air | 276 | 0 | NA | NA |
| ID | Square Ft | Condo SF | Total Basement SF | Finished Basement SF | Garage SF | Carport SF | Balcony SF | Porch SF |
|---|---|---|---|---|---|---|---|---|
| 1 | 1,778 | 0 | 960 | 960 | 600 | 0 | 0 | 120 |
| ID | Built As | Square Ft | Year Built | Stories | Length | Width |
|---|---|---|---|---|---|---|
| 1.00 | 2 Story | 1,778 | 1996 | 2 | 0 | 0 |
| ID | Detail Type | Description | Units |
|---|---|---|---|
| 1 | Basement | Finished | 960.00 |
| 1 | Basement | Total Basement SF | 960.00 |
| 1 | Fixture | Full Bath | 2.00 |
| 1 | Fixture | Half Bath | 1.00 |
| 1 | Garage | Attached | 600.00 |
| 1 | Porch | Open Slab | 120.00 |
| 1 | Porch | Slab Roof Ceil | 109.00 |
| 1 | Porch | Slab w/Steps | 9.00 |
| 1 | Rough In | Rough In | 1.00 |
| Account | Parcel | Account Type | Tax Year | Buildings | Actual Value | Local Govt Assessed Value | School Assessed Value |
|---|---|---|---|---|---|---|---|
| R1089396 | 070711418028 | Residential | 2026 | 1 | 474,187 | 29,640 | 33,430 |
| Type | Code | Description | Actual Value | Local Govt Assessed Value | School Assessed Value | Acres | Land SqFt |
|---|---|---|---|---|---|---|---|
| Improvement | 1212 | SINGLE FAMILY RESIDENTIAL IMPROVEMENTS | 387,787 | 24,240 | 27,340 | 0.000 | 0 |
| Land | 1112 | SINGLE FAMILY RESIDENTIAL-LAND | 86,400 | 5,400 | 6,090 | 0.350 | 15,413 |
| Totals | - | - | 474,187 | 29,640 | 33,430 | 0.350 | 15,413 |
Comparable sales for your Residential or Commercial property may be found using our SALES SEARCH TOOL
Values are updated annually on May 1st for Real Property and June 15th for Personal Property and Oil and Gas.
| Account | Parcel | Account Type | Tax Year | Buildings | Actual Value | Local Govt Assessed Value | School Assessed Value |
|---|---|---|---|---|---|---|---|
| R1089396 | 070711418028 | Residential | 2026 | 1 | 474,187 | 29,640 | 33,430 |
| Tax Area | District ID | District Name | Local Govt Mill Levy |
School Mill Levy |
Estimated Taxes |
|---|---|---|---|---|---|
| 0931 | 0700 | AIMS JUNIOR COLLEGE | 6.313 | 0.000 | $187.12 |
| 0931 | 0501 | AULT FIRE | 7.266 | 0.000 | $215.36 |
| 0931 | 0401 | AULT TOWN | 6.741 | 0.000 | $199.80 |
| 0931 | 1050 | HIGH PLAINS LIBRARY | 3.044 | 0.000 | $90.22 |
| 0931 | 0301 | NORTHERN COLORADO WATER (NCW) | 1.000 | 0.000 | $29.64 |
| 0931 | 0209 | SCHOOL DIST RE9-AULT | 0.000 | 34.176 | $1,142.50 |
| 0931 | 0100 | WELD COUNTY | 15.956 | 0.000 | $472.94 |
| 0931 | 1200 | WEST GREELEY CONSERVATION | 0.414 | 0.000 | $12.27 |
| Total | - | - | 40.734 | 34.176 | $2,349.86 |
The estimate of tax is based on the prior year mill levy and the 2025 projected assessment rates. Mill levies and tax estimates will be updated yearly on December 22nd for the current year. Additional information can be found at https://assessor.weld.gov


