Account: R1093102

April 1, 2026

Account Parcel Account Type Tax Year Buildings Actual Value Local Govt Assessed Value School Assessed Value
R1093102 131132304009 Residential 2026 1 501,688 31,360 35,370

Legal
FRE SAV L9 BLK4 SAVANNAH

Subdivision Block Lot Land Economic Area
SAVANNAH SUB 4 9 SAVANNAH

Property Address Property City Section Township Range
6292 RALSTON ST FREDERICK 32 02 67




Account Parcel Account Type Tax Year Buildings Actual Value Local Govt Assessed Value School Assessed Value
R1093102 131132304009 Residential 2026 1 501,688 31,360 35,370

Account Owner Name Address
R1093102 AHDERS HANNAH 6292 RALSTON ST FREDERICK, CO 805304825
R1093102 DAVIDSON ANDREW


Account Parcel Account Type Tax Year Buildings Actual Value Local Govt Assessed Value School Assessed Value
R1093102 131132304009 Residential 2026 1 501,688 31,360 35,370

Reception Rec Date Type Grantor Grantee Doc Fee Sale Date Sale Price
2885062 NA SUB SUBDIVISION SAVANNAH 0.00 NA 0
2966916 07-08-2002 WD MELODY HOMES INC BAKER CHRISTOPHER L & KIMBERLY T 20.01 06-27-2002 200,100
3729408 11-02-2010 PTD BAKER CHRISTOPHER SECRETARY OF HOUSING AND URBAN DEVELOPMENT 0.00 11-01-2010 0
3777450 06-30-2011 SWD SECRETARY OF HOUSING AND URBAN DEVELOPMENT TROUDT NICHALAS L 14.25 06-29-2011 142,500
4210982 06-13-2016 WD TROUDT NICHALAS L LOYA DAVID J 31.70 06-10-2016 317,000
4446520 11-15-2018 WD LOYA DAVID J NAGEL MELISSA ANN; NAGEL WAYNE LEE 36.00 11-14-2018 360,000
5075466 01-05-2026 SWD NAGEL MELISSA ANN; NAGEL WAYNE LEE AHDERS HANNAH; DAVIDSON ANDREW 50.80 12-30-2025 508,000



Account Parcel Account Type Tax Year Buildings Actual Value Local Govt Assessed Value School Assessed Value
R1093102 131132304009 Residential 2026 1 501,688 31,360 35,370

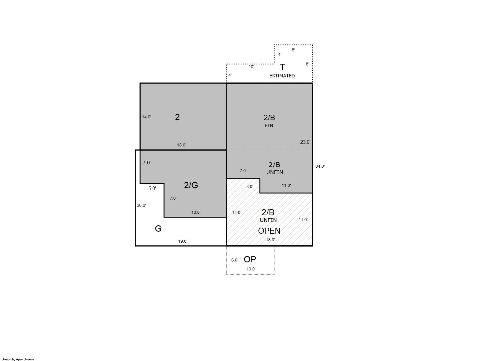
Building 1

AccountNo Building ID Occupancy
R1093102 1 Single Family Residential


ID Type NBHD Occupancy % Complete Bedrooms Baths
1 Residential 3K3027 Single Family Residential 100 3 3.00


ID Exterior Roof Cover Interior HVAC Perimeter Units Unit Type Make
1 Frame Hardboard Composition Shingle Drywall Central Air to Air 344 0 NA NA


ID Square Ft Condo SF Total Basement SF Finished Basement SF Garage SF Carport SF Balcony SF Porch SF
1 1,726 0 612 252 380 0 0 60


Built As Details for Building 1
ID Built As Square Ft Year Built Stories Length Width
1.00 2 Story 1,726 2002 2 0 0


Additional Details for Building 1
ID Detail Type Description Units
1 Add On Fireplace Gas 1.00
1 Basement Finished 252.00
1 Basement Total Basement SF 612.00
1 Fixture Full Bath 2.00
1 Fixture Half Bath 1.00
1 Garage Attached 380.00
1 Porch Open Slab 104.00
1 Porch Slab Roof Ceil 60.00
1 Rough In Rough In 1.00





Account Parcel Account Type Tax Year Buildings Actual Value Local Govt Assessed Value School Assessed Value
R1093102 131132304009 Residential 2026 1 501,688 31,360 35,370

Type Code Description Actual Value Local Govt Assessed Value School Assessed Value Acres Land SqFt
Improvement 1212 SINGLE FAMILY RESIDENTIAL IMPROVEMENTS 381,688 23,860 26,910 0.000 0
Land 1112 SINGLE FAMILY RESIDENTIAL-LAND 120,000 7,500 8,460 0.171 7,440
Totals - - 501,688 31,360 35,370 0.171 7,440


Account Parcel Account Type Tax Year Buildings Actual Value Local Govt Assessed Value School Assessed Value
R1093102 131132304009 Residential 2026 1 501,688 31,360 35,370

Tax Area District ID District Name Local Govt
Mill Levy
School
Mill Levy
Estimated
Taxes
1451 0900 CARBON VALLEY REC 4.427 0.000 $138.83
1451 0305 CENTRAL WELD COUNTY WATER (CWC) 0.000 0.000 $0.00
1451 0408 FREDERICK TOWN 6.555 0.000 $205.56
1451 0507 FREDERICK-FIRESTONE FIRE 15.559 0.000 $487.93
1451 1050 HIGH PLAINS LIBRARY 3.044 0.000 $95.46
1451 0301 NORTHERN COLORADO WATER (NCW) 1.000 0.000 $31.36
1451 0213 SCHOOL DIST RE1J-LONGMONT 0.000 57.717 $2,041.45
1451 0620 ST VRAIN SANITATION 0.316 0.000 $9.91
1451 0100 WELD COUNTY 15.956 0.000 $500.38
Total - - 46.857 57.717 $3,510.89


The estimate of tax is based on the prior year mill levy and the 2025 projected assessment rates. Mill levies and tax estimates will be updated yearly on December 22nd for the current year. Additional information can be found at https://assessor.weld.gov










Select Reports to Print: