Account: R1111402
April 1, 2026
| Account | Parcel | Account Type | Tax Year | Buildings | Actual Value | Local Govt Assessed Value | School Assessed Value |
|---|---|---|---|---|---|---|---|
| R1111402 | 146928400024 | Agricultural | 2026 | 2 | 661,947 | 49,370 | 54,360 |
| Legal |
|---|
| PT SE4 28-1-67 LOT A REC EXEMPT RE-3066 (.30R) |
| Subdivision | Block | Lot | Land Economic Area |
|---|---|---|---|
| SW ECON 4 RURAL |
| Property Address | Property City | Section | Township | Range |
|---|---|---|---|---|
| 8679 COUNTY ROAD 4 | WELD | 28 | 01 | 67 |
| Account | Parcel | Account Type | Tax Year | Buildings | Actual Value | Local Govt Assessed Value | School Assessed Value |
|---|---|---|---|---|---|---|---|
| R1111402 | 146928400024 | Agricultural | 2026 | 2 | 661,947 | 49,370 | 54,360 |
| Account | Owner Name | Address |
|---|---|---|
| R1111402 | HOWARD JOHN E | 8679 COUNTY ROAD 4 BRIGHTON, CO 806038901 |
| R1111402 | HOWARD DIANA G |
| Account | Parcel | Account Type | Tax Year | Buildings | Actual Value | Local Govt Assessed Value | School Assessed Value |
|---|---|---|---|---|---|---|---|
| R1111402 | 146928400024 | Agricultural | 2026 | 2 | 661,947 | 49,370 | 54,360 |
| Reception | Rec Date | Type | Grantor | Grantee | Doc Fee | Sale Date | Sale Price |
|---|---|---|---|---|---|---|---|
| 03-16-1993 | USR | USE BY SPECIAL REVIEW | USR-980 MEETING HALL | 0.00 | NA | 0 | |
| 2895875 | 10-30-2001 | RE | RECORDED EXEMPTION | RE-3066 | 0.00 | NA | 0 |
| 2895875 | 10-30-2001 | RE | RE-3066 | RE-3066 | 0.00 | 10-30-2001 | 0 |
| 2949231 | 05-06-2002 | QCN | HOWARD DAVID E & CAROL C (LE) & | HOWARD JOHN E & DIANA G | 0.00 | 03-01-2002 | 0 |
| 3269513 | 03-17-2005 | QCN | HOWARD JOHN E & DIANA G (1/2 INT) & | HOWARD JOHN E & | 0.00 | 02-18-2005 | 0 |
*If the hyperlink for the reception number does not work, try a manual search in the Clerk and Recorder records. Use the Grantor or Grantee in your search.
| Account | Parcel | Account Type | Tax Year | Buildings | Actual Value | Local Govt Assessed Value | School Assessed Value |
|---|---|---|---|---|---|---|---|
| R1111402 | 146928400024 | Agricultural | 2026 | 2 | 661,947 | 49,370 | 54,360 |
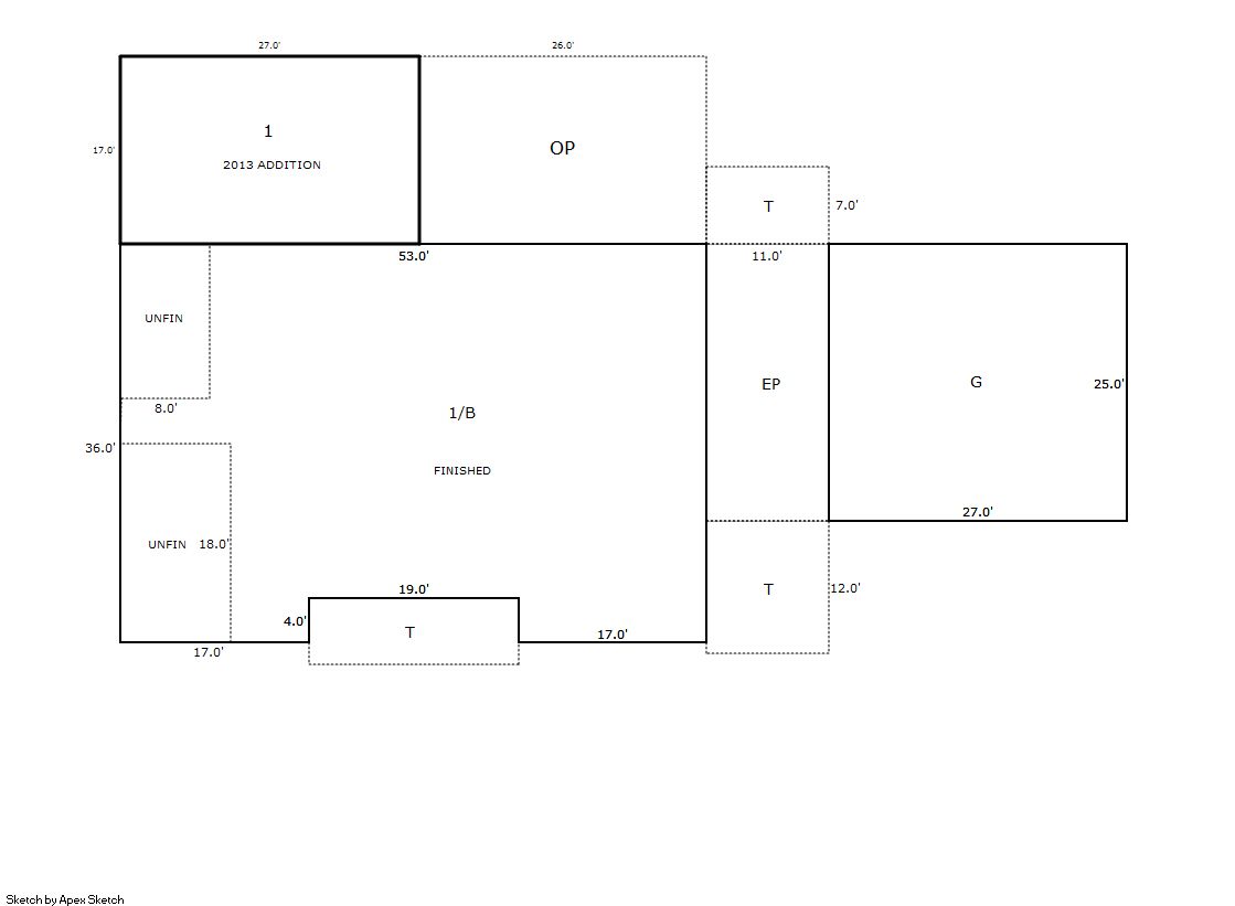
Building 1
| AccountNo | Building ID | Occupancy |
|---|---|---|
| R1111402 | 1 | Single Family Residential on Ag |
| ID | Type | NBHD | Occupancy | % Complete | Bedrooms | Baths |
|---|---|---|---|---|---|---|
| 1 | Residential | 4R0011 | Single Family Residential on Ag | 100 | 4 | 3.00 |
| ID | Exterior | Roof Cover | Interior | HVAC | Perimeter | Units | Unit Type | Make |
|---|---|---|---|---|---|---|---|---|
| 1 | Frame Masonry Veneer | Composition Shingle | Drywall | Central Air to Air | 274 | 0 | NA | NA |
| ID | Square Ft | Condo SF | Total Basement SF | Finished Basement SF | Garage SF | Carport SF | Balcony SF | Porch SF |
|---|---|---|---|---|---|---|---|---|
| 1 | 2,291 | 0 | 1,832 | 1,539 | 675 | 0 | 0 | 275 |
| ID | Built As | Square Ft | Year Built | Stories | Length | Width |
|---|---|---|---|---|---|---|
| 1.00 | Ranch 1 Story | 2,291 | 1981 | 1 | 0 | 0 |
| ID | Detail Type | Description | Units |
|---|---|---|---|
| 1 | Add On | Fireplace Wood | 1.00 |
| 1 | Basement | Finished | 1539.00 |
| 1 | Basement | Total Basement SF | 1832.00 |
| 1 | Fixture | Full Bath | 2.00 |
| 1 | Fixture | Half Bath | 1.00 |
| 1 | Garage | Attached | 675.00 |
| 1 | Porch | Encl Solid Wall | 275.00 |
| 1 | Porch | Open Slab | 323.00 |
| 1 | Porch | Slab Roof Ceil | 442.00 |
Building 2
| AccountNo | Building ID | Occupancy |
|---|---|---|
| R1111402 | 2 | Equipment Building |
| ID | Type | NBHD | Occupancy | % Complete | Bedrooms | Baths |
|---|---|---|---|---|---|---|
| 2 | Out Building | NA | Equipment Building | 100 | NA | 0.00 |
| ID | Exterior | Roof Cover | Interior | HVAC | Perimeter | Units | Unit Type | Make |
|---|---|---|---|---|---|---|---|---|
| 2 | NA | NA | NA | NA | 184 | 0 | NA | NA |
| ID | Square Ft | Condo SF | Total Basement SF | Finished Basement SF | Garage SF | Carport SF | Balcony SF | Porch SF |
|---|---|---|---|---|---|---|---|---|
| 2 | 2,080 | 0 | 0 | 0 | 0 | 0 | 0 | 0 |
| ID | Built As | Square Ft | Year Built | Stories | Length | Width |
|---|---|---|---|---|---|---|
| 2.00 | Equipment Building | 2,080 | 2017 | 1 | 52 | 40 |
No Additional Details for Building 2
| Account | Parcel | Account Type | Tax Year | Buildings | Actual Value | Local Govt Assessed Value | School Assessed Value |
|---|---|---|---|---|---|---|---|
| R1111402 | 146928400024 | Agricultural | 2026 | 2 | 661,947 | 49,370 | 54,360 |
| Type | Code | Description | Actual Value | Local Govt Assessed Value | School Assessed Value | Acres | Land SqFt |
|---|---|---|---|---|---|---|---|
| Improvement | 4277 | FARM/RANCH RESIDENCE-IMPS | 623,401 | 38,960 | 43,950 | 0.000 | 0 |
| Improvement | 4279 | FARM RANCH SUPPORT BLDGS | 37,772 | 10,200 | 10,200 | 0.000 | 0 |
| Land | 4127 | DRY FARM LAND-AGRICULTURAL | 774 | 210 | 210 | 4.180 | 182,081 |
| Totals | - | - | 661,947 | 49,370 | 54,360 | 4.180 | 182,081 |
Comparable sales for your Residential or Commercial property may be found using our SALES SEARCH TOOL
Values are updated annually on May 1st for Real Property and June 15th for Personal Property and Oil and Gas.
| Account | Parcel | Account Type | Tax Year | Buildings | Actual Value | Local Govt Assessed Value | School Assessed Value |
|---|---|---|---|---|---|---|---|
| R1111402 | 146928400024 | Agricultural | 2026 | 2 | 661,947 | 49,370 | 54,360 |
| Tax Area | District ID | District Name | Local Govt Mill Levy |
School Mill Levy |
Estimated Taxes |
|---|---|---|---|---|---|
| 2504 | 0700 | AIMS JUNIOR COLLEGE | 6.313 | 0.000 | $311.67 |
| 2504 | 0503 | GREATER BRIGHTON FIRE | 17.504 | 0.000 | $864.17 |
| 2504 | 1050 | HIGH PLAINS LIBRARY | 3.044 | 0.000 | $150.28 |
| 2504 | 0208 | SCHOOL DIST RE8-FORT LUPTON AND DACONO | 0.000 | 18.198 | $989.24 |
| 2504 | 0100 | WELD COUNTY | 15.956 | 0.000 | $787.75 |
| 2504 | 1209 | WEST ADAMS CONSERVATION | 0.000 | 0.000 | $0.00 |
| Total | - | - | 42.817 | 18.198 | $3,103.12 |
The estimate of tax is based on the prior year mill levy and the 2025 projected assessment rates. Mill levies and tax estimates will be updated yearly on December 22nd for the current year. Additional information can be found at https://assessor.weld.gov


