Account: R1126102
April 5, 2026
| Account | Parcel | Account Type | Tax Year | Buildings | Actual Value | Local Govt Assessed Value | School Assessed Value |
|---|---|---|---|---|---|---|---|
| R1126102 | 095927405006 | Residential | 2026 | 1 | 1,032,285 | 64,520 | 72,770 |
| Legal |
|---|
| EVS NCA2 L6 BLK5 NEVILLES CROSSING AMD #2 |
| Subdivision | Block | Lot | Land Economic Area |
|---|---|---|---|
| NEVILLES CROSSING SUB AM PLAT #2 | 5 | 6 | NEVILLES CROSSING |
| Property Address | Property City | Section | Township | Range |
|---|---|---|---|---|
| 4613 PENDLETON AVE | EVANS | 27 | 05 | 66 |
| Account | Parcel | Account Type | Tax Year | Buildings | Actual Value | Local Govt Assessed Value | School Assessed Value |
|---|---|---|---|---|---|---|---|
| R1126102 | 095927405006 | Residential | 2026 | 1 | 1,032,285 | 64,520 | 72,770 |
| Account | Owner Name | Address |
|---|---|---|
| R1126102 | BRUG GARY L | 4613 PENDLETON AVE EVANS, CO 806349164 |
| R1126102 | BRUG PATTI L | |
| R1126102 | WEIGLE BRET S | |
| R1126102 | WEIGLE RACHEL E |
| Account | Parcel | Account Type | Tax Year | Buildings | Actual Value | Local Govt Assessed Value | School Assessed Value |
|---|---|---|---|---|---|---|---|
| R1126102 | 095927405006 | Residential | 2026 | 1 | 1,032,285 | 64,520 | 72,770 |
| Reception | Rec Date | Type | Grantor | Grantee | Doc Fee | Sale Date | Sale Price |
|---|---|---|---|---|---|---|---|
| 2953791 | NA | SUB | SUBDIVISION | NEVILLES CROSSING AMD #2 | 0.00 | NA | 0 |
| 3242950 | 12-10-2004 | QCN | TERRA FIRMA LAND WORKS LLC | A BETTER JOB INC | 0.00 | 11-09-2004 | 0 |
| 3319477 | 09-02-2005 | WD | A BETTER JOB INC | REGNIER STEPHEN A & | 62.56 | 08-31-2005 | 625,600 |
| 3836152 | 04-03-2012 | QCN | REGNIER STEPHEN A | LITTLE PATRICIA L | 0.00 | 01-24-2012 | 0 |
| 3841920 | 04-30-2012 | WD | LITTLE PATRICIA L | HANSON TORY K | 39.90 | 04-26-2012 | 399,000 |
| 3856743 | 07-03-2012 | QCN | HANSON TORY K | HANSON TORY REVOCABLE TRUST DATED JULY 2ND 2012 | 0.00 | 07-03-2012 | 0 |
| 4162229 | 12-02-2015 | SWDN | HANSON TORY REVOCABLE TRUST; HANSON TERRI REVOCABLE TRUST | HANSON TERRI L | 0.00 | 11-23-2015 | 0 |
| 4162231 | 12-02-2015 | SWDN | HANSON TERRI L | HANSON TORY; HANSON TERRI REVOCABLE TRUST | 0.00 | 11-23-2015 | 0 |
| 4377657 | 02-26-2018 | SWDN | HANSON TERRI REVOCABLE TRUST;HANSON TORY | HANSON TERRI L; HANSON TORY | 0.00 | 02-16-2018 | 0 |
| 4377659 | 02-26-2018 | SWDN | HANSON TORY; HANSON TERRI L | HANSON TORY REVOCABLE TRUST; HANSON TERRI REVOCABLE TRUST | 0.00 | 02-16-2018 | 0 |
| 4379497 | 03-02-2018 | SWDN | HANSON TORY; HANSON TERRI L | HANSON TORY REVOCABLE TRUST; HANSON TERRI L REVOCABLE TRUST | 0.00 | 02-16-2018 | 0 |
| 4590760 | 05-15-2020 | QCN | HANSON TORY REVOCABLE TRUST; HANSON TERRI REVOCABLE TRUST | HANSON TERRI L; HANSON TORY K | 0.00 | 05-11-2020 | 0 |
| 4601995 | 06-24-2020 | QCN | HANSON TERRI L; HANSON TORY K | HANSON TORY REVOCABLE TRUST; HANSON TERRI REVOCABLE TRUST | 0.00 | 06-10-2020 | 0 |
| 4905445 | 06-26-2023 | WD | HANSON TORY REVOCABLE TRUST; HANSON TERRI REVOCABLE TRUST | BRUG GARY L; BRUG PATTI L; WEIGLE BRET S; WEIGLE RACHEL E | 98.00 | 06-23-2023 | 980,000 |
*If the hyperlink for the reception number does not work, try a manual search in the Clerk and Recorder records. Use the Grantor or Grantee in your search.
| Account | Parcel | Account Type | Tax Year | Buildings | Actual Value | Local Govt Assessed Value | School Assessed Value |
|---|---|---|---|---|---|---|---|
| R1126102 | 095927405006 | Residential | 2026 | 1 | 1,032,285 | 64,520 | 72,770 |
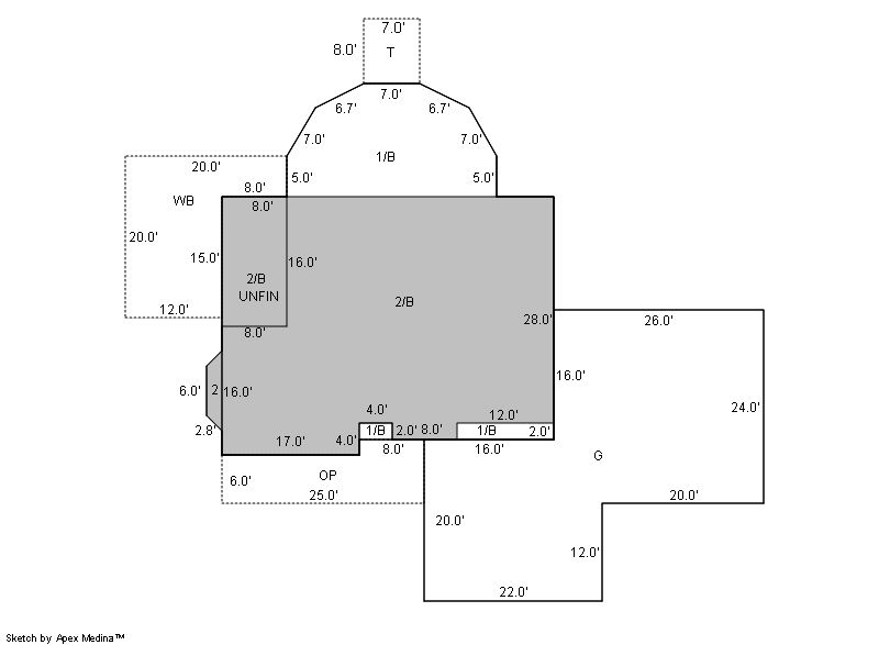
Building 1
| AccountNo | Building ID | Occupancy |
|---|---|---|
| R1126102 | 1 | Single Family Residential |
| ID | Type | NBHD | Occupancy | % Complete | Bedrooms | Baths |
|---|---|---|---|---|---|---|
| 1 | Residential | 2R0057 | Single Family Residential | 100 | 4 | 4.00 |
| ID | Exterior | Roof Cover | Interior | HVAC | Perimeter | Units | Unit Type | Make |
|---|---|---|---|---|---|---|---|---|
| 1 | Frame Stucco | Composition Shingle | Drywall | Central Air to Air | 0 | 0 | NA | NA |
| ID | Square Ft | Condo SF | Total Basement SF | Finished Basement SF | Garage SF | Carport SF | Balcony SF | Porch SF |
|---|---|---|---|---|---|---|---|---|
| 1 | 2,833 | 0 | 1,569 | 1,433 | 1,016 | 0 | 280 | 166 |
| ID | Built As | Square Ft | Year Built | Stories | Length | Width |
|---|---|---|---|---|---|---|
| 1.00 | 2 Story | 2,833 | 2005 | 2 | 0 | 0 |
| ID | Detail Type | Description | Units |
|---|---|---|---|
| 1 | Add On | Fireplace Gas | 2.00 |
| 1 | Balcony | Wood Wood Fin | 280.00 |
| 1 | Basement | Finished | 1433.00 |
| 1 | Basement | Total Basement SF | 1569.00 |
| 1 | Basement | Walkout | 1.00 |
| 1 | Fixture | Full Bath | 4.00 |
| 1 | Fixture | Wet Bar | 1.00 |
| 1 | Garage | Attached | 1016.00 |
| 1 | Garage | Detached | 1152.00 |
| 1 | Porch | Open Slab | 56.00 |
| 1 | Porch | Slab Roof Ceil | 166.00 |
| Account | Parcel | Account Type | Tax Year | Buildings | Actual Value | Local Govt Assessed Value | School Assessed Value |
|---|---|---|---|---|---|---|---|
| R1126102 | 095927405006 | Residential | 2026 | 1 | 1,032,285 | 64,520 | 72,770 |
| Type | Code | Description | Actual Value | Local Govt Assessed Value | School Assessed Value | Acres | Land SqFt |
|---|---|---|---|---|---|---|---|
| Improvement | 1212 | SINGLE FAMILY RESIDENTIAL IMPROVEMENTS | 807,285 | 50,460 | 56,910 | 0.000 | 0 |
| Land | 1112 | SINGLE FAMILY RESIDENTIAL-LAND | 225,000 | 14,060 | 15,860 | 1.919 | 83,592 |
| Totals | - | - | 1,032,285 | 64,520 | 72,770 | 1.919 | 83,592 |
Comparable sales for your Residential or Commercial property may be found using our SALES SEARCH TOOL
Values are updated annually on May 1st for Real Property and June 15th for Personal Property and Oil and Gas.
| Account | Parcel | Account Type | Tax Year | Buildings | Actual Value | Local Govt Assessed Value | School Assessed Value |
|---|---|---|---|---|---|---|---|
| R1126102 | 095927405006 | Residential | 2026 | 1 | 1,032,285 | 64,520 | 72,770 |
| Tax Area | District ID | District Name | Local Govt Mill Levy |
School Mill Levy |
Estimated Taxes |
|---|---|---|---|---|---|
| 0663 | 0700 | AIMS JUNIOR COLLEGE | 6.313 | 0.000 | $407.31 |
| 0663 | 0405 | EVANS CITY | 3.536 | 0.000 | $228.14 |
| 0663 | 0534 | EVANS FIRE | 15.500 | 0.000 | $1,000.06 |
| 0663 | 1050 | HIGH PLAINS LIBRARY | 3.044 | 0.000 | $196.40 |
| 0663 | 0301 | NORTHERN COLORADO WATER (NCW) | 1.000 | 0.000 | $64.52 |
| 0663 | 0206 | SCHOOL DIST 6-GREELEY | 0.000 | 47.615 | $3,464.94 |
| 0663 | 0100 | WELD COUNTY | 15.956 | 0.000 | $1,029.48 |
| 0663 | 1200 | WEST GREELEY CONSERVATION | 0.414 | 0.000 | $26.71 |
| Total | - | - | 45.763 | 47.615 | $6,417.57 |
The estimate of tax is based on the prior year mill levy and the 2025 projected assessment rates. Mill levies and tax estimates will be updated yearly on December 22nd for the current year. Additional information can be found at https://assessor.weld.gov



