Account: R1131902
April 5, 2026
| Account | Parcel | Account Type | Tax Year | Buildings | Actual Value | Local Govt Assessed Value | School Assessed Value |
|---|---|---|---|---|---|---|---|
| R1131902 | 131132311025 | Residential | 2026 | 1 | 572,952 | 35,810 | 40,390 |
| Legal |
|---|
| FRE SAV L25 BLK11 SAVANNAH |
| Subdivision | Block | Lot | Land Economic Area |
|---|---|---|---|
| SAVANNAH SUB | 11 | 25 | SAVANNAH |
| Property Address | Property City | Section | Township | Range |
|---|---|---|---|---|
| 6291 CLAYTON CIR | FREDERICK | 32 | 02 | 67 |
| Account | Parcel | Account Type | Tax Year | Buildings | Actual Value | Local Govt Assessed Value | School Assessed Value |
|---|---|---|---|---|---|---|---|
| R1131902 | 131132311025 | Residential | 2026 | 1 | 572,952 | 35,810 | 40,390 |
| Account | Owner Name | Address |
|---|---|---|
| R1131902 | BALDWIN SAPNA L | 6291 CLAYTON CIR FREDERICK, CO 805304845 |
| Account | Parcel | Account Type | Tax Year | Buildings | Actual Value | Local Govt Assessed Value | School Assessed Value |
|---|---|---|---|---|---|---|---|
| R1131902 | 131132311025 | Residential | 2026 | 1 | 572,952 | 35,810 | 40,390 |
| Reception | Rec Date | Type | Grantor | Grantee | Doc Fee | Sale Date | Sale Price |
|---|---|---|---|---|---|---|---|
| 2885062 | NA | SUB | SUBDIVISION | SAVANNAH | 0.00 | NA | 0 |
| 3375342 | 03-31-2006 | SWD | MELODY HOMES INC | WEAVER MICHAEL & | 22.60 | 03-28-2006 | 226,000 |
| 3667076 | 12-28-2009 | PTD | WEAVER MICHAEL | ACE SECURITIES CORP | 0.00 | 12-23-2009 | 0 |
| 3673051 | 02-01-2010 | SWD | HSBC BANK USA N A | BALDWIN JONATHAN L | 19.00 | 01-06-2010 | 190,000 |
| 3927057 | 04-24-2013 | QCN | LALL SAPNA | BALDWIN JONATHAN L | 0.00 | 04-19-2013 | 0 |
| 4894518 | 04-25-2023 | QC | BALDWIN JONATHAN L; BALDWIN SAPNA L | BALDWIN SAPNA L | 12.00 | 04-24-2023 | 120,000 |
*If the hyperlink for the reception number does not work, try a manual search in the Clerk and Recorder records. Use the Grantor or Grantee in your search.
| Account | Parcel | Account Type | Tax Year | Buildings | Actual Value | Local Govt Assessed Value | School Assessed Value |
|---|---|---|---|---|---|---|---|
| R1131902 | 131132311025 | Residential | 2026 | 1 | 572,952 | 35,810 | 40,390 |
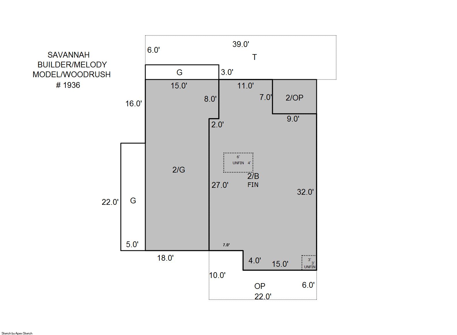
Building 1
| AccountNo | Building ID | Occupancy |
|---|---|---|
| R1131902 | 1 | Single Family Residential |
| ID | Type | NBHD | Occupancy | % Complete | Bedrooms | Baths |
|---|---|---|---|---|---|---|
| 1 | Residential | 3K3027 | Single Family Residential | 100 | 4 | 4.00 |
| ID | Exterior | Roof Cover | Interior | HVAC | Perimeter | Units | Unit Type | Make |
|---|---|---|---|---|---|---|---|---|
| 1 | Frame Hardboard | Composition Shingle | Drywall | Central Air to Air | 270 | 0 | NA | NA |
| ID | Square Ft | Condo SF | Total Basement SF | Finished Basement SF | Garage SF | Carport SF | Balcony SF | Porch SF |
|---|---|---|---|---|---|---|---|---|
| 1 | 2,036 | 0 | 751 | 718 | 626 | 0 | 0 | 223 |
| ID | Built As | Square Ft | Year Built | Stories | Length | Width |
|---|---|---|---|---|---|---|
| 1.00 | 2 Story | 2,036 | 2005 | 2 | 0 | 0 |
| ID | Detail Type | Description | Units |
|---|---|---|---|
| 1 | Basement | Finished | 718.00 |
| 1 | Basement | Total Basement SF | 751.00 |
| 1 | Fixture | Full Bath | 3.00 |
| 1 | Fixture | Half Bath | 1.00 |
| 1 | Fixture | Wet Bar | 1.00 |
| 1 | Garage | Attached | 626.00 |
| 1 | Porch | Open Slab | 306.00 |
| 1 | Porch | Slab Roof Ceil | 223.00 |
| Account | Parcel | Account Type | Tax Year | Buildings | Actual Value | Local Govt Assessed Value | School Assessed Value |
|---|---|---|---|---|---|---|---|
| R1131902 | 131132311025 | Residential | 2026 | 1 | 572,952 | 35,810 | 40,390 |
| Type | Code | Description | Actual Value | Local Govt Assessed Value | School Assessed Value | Acres | Land SqFt |
|---|---|---|---|---|---|---|---|
| Improvement | 1212 | SINGLE FAMILY RESIDENTIAL IMPROVEMENTS | 452,952 | 28,310 | 31,930 | 0.000 | 0 |
| Land | 1112 | SINGLE FAMILY RESIDENTIAL-LAND | 120,000 | 7,500 | 8,460 | 0.221 | 9,613 |
| Totals | - | - | 572,952 | 35,810 | 40,390 | 0.221 | 9,613 |
Comparable sales for your Residential or Commercial property may be found using our SALES SEARCH TOOL
Values are updated annually on May 1st for Real Property and June 15th for Personal Property and Oil and Gas.
| Account | Parcel | Account Type | Tax Year | Buildings | Actual Value | Local Govt Assessed Value | School Assessed Value |
|---|---|---|---|---|---|---|---|
| R1131902 | 131132311025 | Residential | 2026 | 1 | 572,952 | 35,810 | 40,390 |
| Tax Area | District ID | District Name | Local Govt Mill Levy |
School Mill Levy |
Estimated Taxes |
|---|---|---|---|---|---|
| 1451 | 0900 | CARBON VALLEY REC | 4.427 | 0.000 | $158.53 |
| 1451 | 0305 | CENTRAL WELD COUNTY WATER (CWC) | 0.000 | 0.000 | $0.00 |
| 1451 | 0408 | FREDERICK TOWN | 6.555 | 0.000 | $234.73 |
| 1451 | 0507 | FREDERICK-FIRESTONE FIRE | 15.559 | 0.000 | $557.17 |
| 1451 | 1050 | HIGH PLAINS LIBRARY | 3.044 | 0.000 | $109.01 |
| 1451 | 0301 | NORTHERN COLORADO WATER (NCW) | 1.000 | 0.000 | $35.81 |
| 1451 | 0213 | SCHOOL DIST RE1J-LONGMONT | 0.000 | 57.717 | $2,331.19 |
| 1451 | 0620 | ST VRAIN SANITATION | 0.316 | 0.000 | $11.32 |
| 1451 | 0100 | WELD COUNTY | 15.956 | 0.000 | $571.38 |
| Total | - | - | 46.857 | 57.717 | $4,009.14 |
The estimate of tax is based on the prior year mill levy and the 2025 projected assessment rates. Mill levies and tax estimates will be updated yearly on December 22nd for the current year. Additional information can be found at https://assessor.weld.gov


