Account: R1146196
April 1, 2026
| Account | Parcel | Account Type | Tax Year | Buildings | Actual Value | Local Govt Assessed Value | School Assessed Value |
|---|---|---|---|---|---|---|---|
| R1146196 | 096108210026 | Residential | 2026 | 1 | 454,190 | 28,380 | 32,020 |
| Legal |
|---|
| GR 5461 N44.55' S94.55' W110' L2 & W22' E90' L2 BLK97 EXC N95.45' W22' E90' L2 ALSO EXC S50' W22' E90' L2 |
| Subdivision | Block | Lot | Land Economic Area |
|---|---|---|---|
| GREELEY CITY | 97 | 2 | 16TH ST N, 21ST AVE TO 8TH AVE |
| Property Address | Property City | Section | Township | Range |
|---|---|---|---|---|
| 1210 9TH AVE | GREELEY | 08 | 05 | 65 |
| Account | Parcel | Account Type | Tax Year | Buildings | Actual Value | Local Govt Assessed Value | School Assessed Value |
|---|---|---|---|---|---|---|---|
| R1146196 | 096108210026 | Residential | 2026 | 1 | 454,190 | 28,380 | 32,020 |
| Account | Owner Name | Address |
|---|---|---|
| R1146196 | ALVAREZ ALEXANDER | 1210 9TH AVE GREELEY, CO 806314058 |
| R1146196 | ALVAREZ DANIELLE |
| Account | Parcel | Account Type | Tax Year | Buildings | Actual Value | Local Govt Assessed Value | School Assessed Value |
|---|---|---|---|---|---|---|---|
| R1146196 | 096108210026 | Residential | 2026 | 1 | 454,190 | 28,380 | 32,020 |
| Reception | Rec Date | Type | Grantor | Grantee | Doc Fee | Sale Date | Sale Price |
|---|---|---|---|---|---|---|---|
| 2366368 | 12-29-1993 | WDN | 0.00 | 04-01-1993 | 0 | ||
| 24738 | NA | SUB | SUBDIVISION | GREELEY | 0.00 | NA | 0 |
| 3182981 | 05-25-2004 | SWDN | M & H APARTMENTS INC | WINGARD ROBERT L | 0.00 | 05-14-2004 | 0 |
| 4179441 | 02-09-2016 | WD | WINGARD ROBERT L | ARCHER SEAN | 17.00 | 02-01-2016 | 170,000 |
| 4180611 | 02-12-2016 | SWDN | MANDER SHAWN K;MANDER BECKY M | WINGARD ROBERT L | 0.00 | 02-26-2016 | 0 |
| 4194197 | 04-08-2016 | QCN | ARCHER SEAN | JONES ALAN E; ARCHER SEAN | 0.00 | 03-28-2016 | 0 |
| 4207685 | 05-31-2016 | QCN | ARCHER SEAN; JONES ALAN E | JONES ALAN E | 0.00 | 05-18-2016 | 0 |
| 4433681 | 09-25-2018 | WD | JONES ALAN E | ALVAREZ DANIELLE; ALVAREZ ALEXANDER | 35.30 | 09-24-2018 | 353,000 |
*If the hyperlink for the reception number does not work, try a manual search in the Clerk and Recorder records. Use the Grantor or Grantee in your search.
| Account | Parcel | Account Type | Tax Year | Buildings | Actual Value | Local Govt Assessed Value | School Assessed Value |
|---|---|---|---|---|---|---|---|
| R1146196 | 096108210026 | Residential | 2026 | 1 | 454,190 | 28,380 | 32,020 |
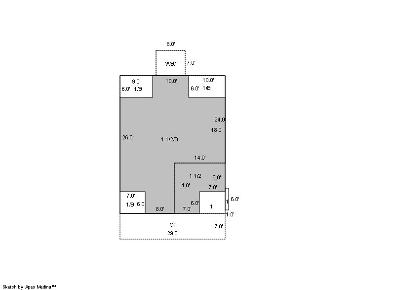
Building 1
| AccountNo | Building ID | Occupancy |
|---|---|---|
| R1146196 | 1 | 3 Unit Conversion |
| ID | Type | NBHD | Occupancy | % Complete | Bedrooms | Baths |
|---|---|---|---|---|---|---|
| 1 | Residential | 6G1033 | 3 Unit Conversion | 100 | 5 | 3.00 |
| ID | Exterior | Roof Cover | Interior | HVAC | Perimeter | Units | Unit Type | Make |
|---|---|---|---|---|---|---|---|---|
| 1 | Frame Hardboard | Composition Shingle | Plaster | Hot Water Baseboard | 0 | 3 | NA | NA |
| ID | Square Ft | Condo SF | Total Basement SF | Finished Basement SF | Garage SF | Carport SF | Balcony SF | Porch SF |
|---|---|---|---|---|---|---|---|---|
| 1 | 2,012 | 0 | 906 | 906 | 0 | 0 | 56 | 203 |
| ID | Built As | Square Ft | Year Built | Stories | Length | Width |
|---|---|---|---|---|---|---|
| 1.00 | 1 1/2 Story Fin | 2,012 | 1920 | 2 | 0 | 0 |
| ID | Detail Type | Description | Units |
|---|---|---|---|
| 1 | Balcony | Wood Wood Fin | 56.00 |
| 1 | Basement | Fair Finish | 906.00 |
| 1 | Basement | Outside Entrance | 1.00 |
| 1 | Basement | Total Basement SF | 906.00 |
| 1 | Fixture | Full Bath | 3.00 |
| 1 | Porch | Open Slab | 56.00 |
| 1 | Porch | Slab Roof Ceil | 203.00 |
| Account | Parcel | Account Type | Tax Year | Buildings | Actual Value | Local Govt Assessed Value | School Assessed Value |
|---|---|---|---|---|---|---|---|
| R1146196 | 096108210026 | Residential | 2026 | 1 | 454,190 | 28,380 | 32,020 |
| Type | Code | Description | Actual Value | Local Govt Assessed Value | School Assessed Value | Acres | Land SqFt |
|---|---|---|---|---|---|---|---|
| Improvement | 1215 | DUP/TRIPLEX IMPROVEMENTS | 413,022 | 25,810 | 29,120 | 0.000 | 0 |
| Land | 1115 | DUP/TRIPLEX LAND | 41,168 | 2,570 | 2,900 | 0.140 | 5,881 |
| Totals | - | - | 454,190 | 28,380 | 32,020 | 0.140 | 5,881 |
Comparable sales for your Residential or Commercial property may be found using our SALES SEARCH TOOL
Values are updated annually on May 1st for Real Property and June 15th for Personal Property and Oil and Gas.
| Account | Parcel | Account Type | Tax Year | Buildings | Actual Value | Local Govt Assessed Value | School Assessed Value |
|---|---|---|---|---|---|---|---|
| R1146196 | 096108210026 | Residential | 2026 | 1 | 454,190 | 28,380 | 32,020 |
| Tax Area | District ID | District Name | Local Govt Mill Levy |
School Mill Levy |
Estimated Taxes |
|---|---|---|---|---|---|
| 2689 | 0700 | AIMS JUNIOR COLLEGE | 6.313 | 0.000 | $179.16 |
| 2689 | 0411 | GREELEY CITY | 11.274 | 0.000 | $319.96 |
| 2689 | 0802 | GREELEY DOWNTOWN DEVELOPMENT AUTHORITY | 5.000 | 0.000 | $141.90 |
| 2689 | 1050 | HIGH PLAINS LIBRARY | 3.044 | 0.000 | $86.39 |
| 2689 | 0301 | NORTHERN COLORADO WATER (NCW) | 1.000 | 0.000 | $28.38 |
| 2689 | 0206 | SCHOOL DIST 6-GREELEY | 0.000 | 47.615 | $1,524.63 |
| 2689 | 0100 | WELD COUNTY | 15.956 | 0.000 | $452.83 |
| Total | - | - | 42.587 | 47.615 | $2,733.25 |
The estimate of tax is based on the prior year mill levy and the 2025 projected assessment rates. Mill levies and tax estimates will be updated yearly on December 22nd for the current year. Additional information can be found at https://assessor.weld.gov



