Account: R1158302
April 1, 2026
| Account | Parcel | Account Type | Tax Year | Buildings | Actual Value | Local Govt Assessed Value | School Assessed Value |
|---|---|---|---|---|---|---|---|
| R1158302 | 080702110023 | Residential | 2026 | 1 | 381,152 | 23,820 | 26,880 |
| Legal |
|---|
| SEV 1TRPUD L23 BLK8 TIMBER RIDGE PUD 1ST FG |
| Subdivision | Block | Lot | Land Economic Area |
|---|---|---|---|
| TIMBER RIDGE PUD 1ST FG | 8 | 23 | TIMBERIDGE |
| Property Address | Property City | Section | Township | Range |
|---|---|---|---|---|
| 848 CLIFFROSE WAY | SEVERANCE | 02 | 06 | 67 |
| Account | Parcel | Account Type | Tax Year | Buildings | Actual Value | Local Govt Assessed Value | School Assessed Value |
|---|---|---|---|---|---|---|---|
| R1158302 | 080702110023 | Residential | 2026 | 1 | 381,152 | 23,820 | 26,880 |
| Account | Owner Name | Address |
|---|---|---|
| R1158302 | DRISKILL GREGORY B | 848 CLIFFROSE WAY SEVERANCE, CO 805502944 |
| R1158302 | DRISKILL LISHA A |
| Account | Parcel | Account Type | Tax Year | Buildings | Actual Value | Local Govt Assessed Value | School Assessed Value |
|---|---|---|---|---|---|---|---|
| R1158302 | 080702110023 | Residential | 2026 | 1 | 381,152 | 23,820 | 26,880 |
| Reception | Rec Date | Type | Grantor | Grantee | Doc Fee | Sale Date | Sale Price |
|---|---|---|---|---|---|---|---|
| 2853434 | NA | SUB | SUBDIVISION | TIMBER RIDGE PUD 1ST FG | 0.00 | NA | 0 |
| 2967468 | 07-09-2002 | WD | TIMBER RIDGE SEVERANCE LLC | KIM-TIMBER RIDGE LLC | 9.00 | 07-09-2002 | 90,000 |
| 3043888 | 03-21-2003 | WD | KEM-TIMBER RIDGE LLC | DRISKILL GREGORY B & | 17.34 | 03-21-2003 | 173,400 |
*If the hyperlink for the reception number does not work, try a manual search in the Clerk and Recorder records. Use the Grantor or Grantee in your search.
| Account | Parcel | Account Type | Tax Year | Buildings | Actual Value | Local Govt Assessed Value | School Assessed Value |
|---|---|---|---|---|---|---|---|
| R1158302 | 080702110023 | Residential | 2026 | 1 | 381,152 | 23,820 | 26,880 |
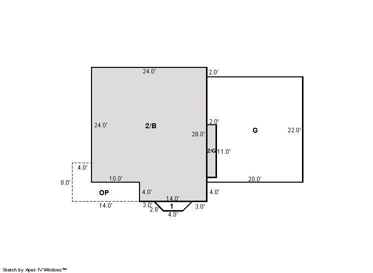
Building 1
| AccountNo | Building ID | Occupancy |
|---|---|---|
| R1158302 | 1 | Single Family Residential |
| ID | Type | NBHD | Occupancy | % Complete | Bedrooms | Baths |
|---|---|---|---|---|---|---|
| 1 | Residential | 2S3051 | Single Family Residential | 100 | 3 | 3.00 |
| ID | Exterior | Roof Cover | Interior | HVAC | Perimeter | Units | Unit Type | Make |
|---|---|---|---|---|---|---|---|---|
| 1 | Frame Siding | Composition Shingle | Drywall | Forced Air | 0 | 0 | NA | NA |
| ID | Square Ft | Condo SF | Total Basement SF | Finished Basement SF | Garage SF | Carport SF | Balcony SF | Porch SF |
|---|---|---|---|---|---|---|---|---|
| 1 | 1,298 | 0 | 632 | 0 | 440 | 0 | 0 | 72 |
| ID | Built As | Square Ft | Year Built | Stories | Length | Width |
|---|---|---|---|---|---|---|
| 1.00 | 2 Story | 1,298 | 2002 | 1 | 0 | 0 |
| ID | Detail Type | Description | Units |
|---|---|---|---|
| 1 | Basement | Total Basement SF | 632.00 |
| 1 | Fixture | Full Bath | 2.00 |
| 1 | Fixture | Half Bath | 1.00 |
| 1 | Garage | Attached | 440.00 |
| 1 | Porch | Open Slab | 72.00 |
| 1 | Rough In | Rough In | 1.00 |
| Account | Parcel | Account Type | Tax Year | Buildings | Actual Value | Local Govt Assessed Value | School Assessed Value |
|---|---|---|---|---|---|---|---|
| R1158302 | 080702110023 | Residential | 2026 | 1 | 381,152 | 23,820 | 26,880 |
| Type | Code | Description | Actual Value | Local Govt Assessed Value | School Assessed Value | Acres | Land SqFt |
|---|---|---|---|---|---|---|---|
| Improvement | 1212 | SINGLE FAMILY RESIDENTIAL IMPROVEMENTS | 290,152 | 18,130 | 20,460 | 0.000 | 0 |
| Land | 1112 | SINGLE FAMILY RESIDENTIAL-LAND | 91,000 | 5,690 | 6,420 | 0.183 | 7,977 |
| Totals | - | - | 381,152 | 23,820 | 26,880 | 0.183 | 7,977 |
Comparable sales for your Residential or Commercial property may be found using our SALES SEARCH TOOL
Values are updated annually on May 1st for Real Property and June 15th for Personal Property and Oil and Gas.
| Account | Parcel | Account Type | Tax Year | Buildings | Actual Value | Local Govt Assessed Value | School Assessed Value |
|---|---|---|---|---|---|---|---|
| R1158302 | 080702110023 | Residential | 2026 | 1 | 381,152 | 23,820 | 26,880 |
| Tax Area | District ID | District Name | Local Govt Mill Levy |
School Mill Levy |
Estimated Taxes |
|---|---|---|---|---|---|
| 0434 | 0700 | AIMS JUNIOR COLLEGE | 6.313 | 0.000 | $150.38 |
| 0434 | 1051 | CLEARVIEW LIBRARY | 3.546 | 0.000 | $84.47 |
| 0434 | 0304 | NORTH WELD COUNTY WATER (NWC) | 0.000 | 0.000 | $0.00 |
| 0434 | 0301 | NORTHERN COLORADO WATER (NCW) | 1.000 | 0.000 | $23.82 |
| 0434 | 0204 | SCHOOL DIST RE4-WINDSOR | 0.000 | 46.646 | $1,253.84 |
| 0434 | 0427 | SEVERANCE TOWN | 12.635 | 0.000 | $300.97 |
| 0434 | 0100 | WELD COUNTY | 15.956 | 0.000 | $380.07 |
| 0434 | 1200 | WEST GREELEY CONSERVATION | 0.414 | 0.000 | $9.86 |
| 0434 | 0521 | WINDSOR-SEVERANCE FIRE | 8.535 | 0.000 | $203.30 |
| Total | - | - | 48.399 | 46.646 | $2,406.71 |
The estimate of tax is based on the prior year mill levy and the 2025 projected assessment rates. Mill levies and tax estimates will be updated yearly on December 22nd for the current year. Additional information can be found at https://assessor.weld.gov



