Account: R1185102
April 5, 2026
| Account | Parcel | Account Type | Tax Year | Buildings | Actual Value | Local Govt Assessed Value | School Assessed Value |
|---|---|---|---|---|---|---|---|
| R1185102 | 105905331060 | Residential | 2026 | 1 | 626,740 | 39,180 | 44,190 |
| Legal |
|---|
| JOH RSH L60 REDSTONE HILLS ADD |
| Subdivision | Block | Lot | Land Economic Area |
|---|---|---|---|
| REDSTONE HILLS ADD | 60 | REDSTONE HILLS |
| Property Address | Property City | Section | Township | Range |
|---|---|---|---|---|
| 1109 N 5TH ST | JOHNSTOWN | 05 | 04 | 67 |
| Account | Parcel | Account Type | Tax Year | Buildings | Actual Value | Local Govt Assessed Value | School Assessed Value |
|---|---|---|---|---|---|---|---|
| R1185102 | 105905331060 | Residential | 2026 | 1 | 626,740 | 39,180 | 44,190 |
| Account | Owner Name | Address |
|---|---|---|
| R1185102 | BROWN SHAWN LEE | 1109 N 5TH ST JOHNSTOWN, CO 805345626 |
| R1185102 | BROWN PAMELA RENA |
| Account | Parcel | Account Type | Tax Year | Buildings | Actual Value | Local Govt Assessed Value | School Assessed Value |
|---|---|---|---|---|---|---|---|
| R1185102 | 105905331060 | Residential | 2026 | 1 | 626,740 | 39,180 | 44,190 |
| Reception | Rec Date | Type | Grantor | Grantee | Doc Fee | Sale Date | Sale Price |
|---|---|---|---|---|---|---|---|
| 2486438 | NA | SUB | SUBDIVISION | REDSTONE HILLS ADD | 0.00 | NA | 0 |
| 4126621 | 07-22-2015 | WD | REDSTONE HILLS LLC | DAWSON ELBERT L; DAWSON DOROTHY J | 8.50 | 07-20-2015 | 85,000 |
| 4861646 | 10-17-2022 | DTHC | DAWSON DOROTHY J | DAWSON ELBERT L | 0.00 | 11-18-2017 | 0 |
| 4861647 | 10-17-2022 | WD | DAWSON ELBERT L | BROWN SHAWN LEE; BROWN PAMELA RENA | 70.00 | 10-14-2022 | 700,000 |
*If the hyperlink for the reception number does not work, try a manual search in the Clerk and Recorder records. Use the Grantor or Grantee in your search.
| Account | Parcel | Account Type | Tax Year | Buildings | Actual Value | Local Govt Assessed Value | School Assessed Value |
|---|---|---|---|---|---|---|---|
| R1185102 | 105905331060 | Residential | 2026 | 1 | 626,740 | 39,180 | 44,190 |
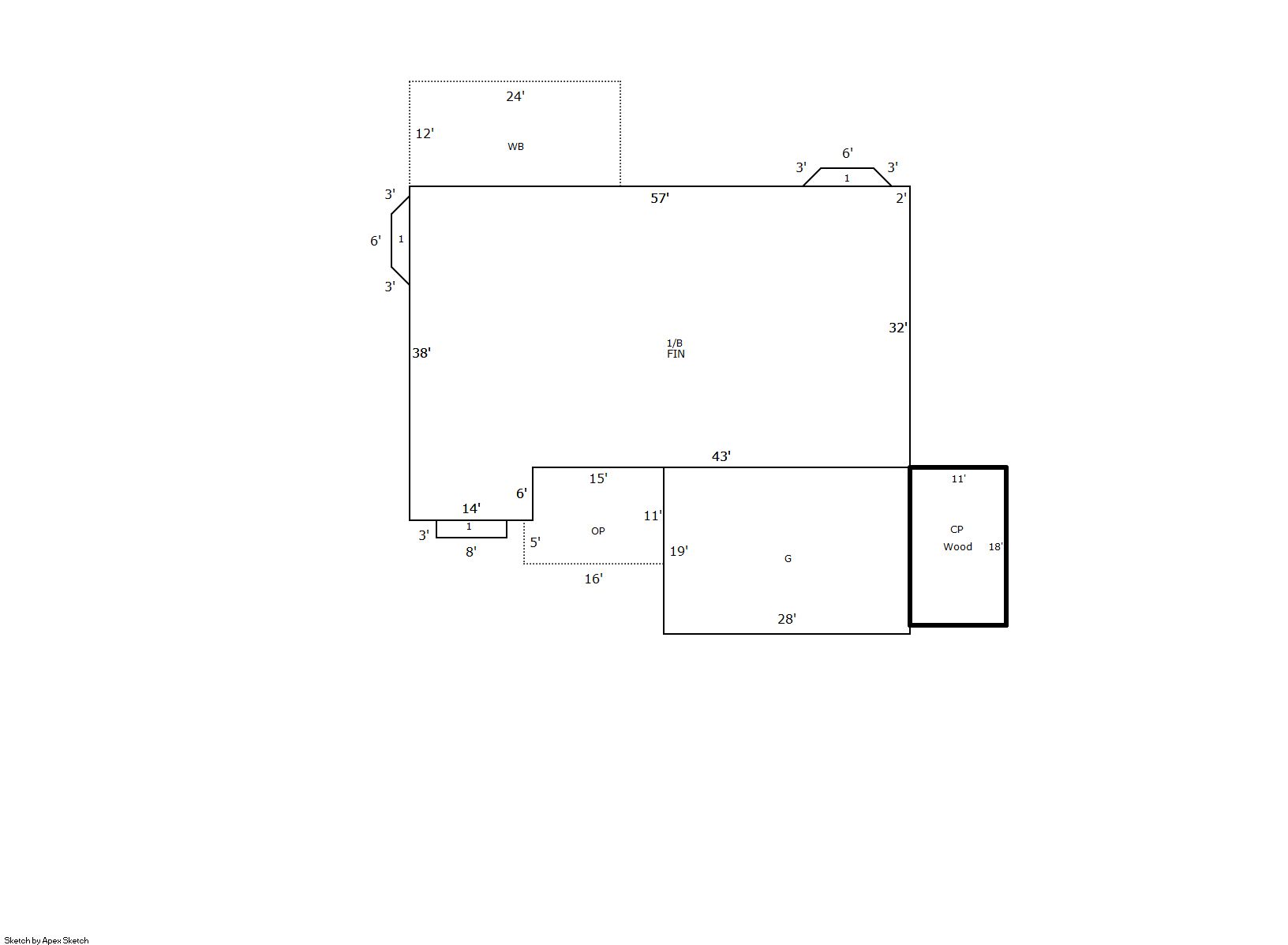
Building 1
| AccountNo | Building ID | Occupancy |
|---|---|---|
| R1185102 | 1 | Single Family Residential |
| ID | Type | NBHD | Occupancy | % Complete | Bedrooms | Baths |
|---|---|---|---|---|---|---|
| 1 | Residential | 0J1073 | Single Family Residential | 100 | 5 | 3.00 |
| ID | Exterior | Roof Cover | Interior | HVAC | Perimeter | Units | Unit Type | Make |
|---|---|---|---|---|---|---|---|---|
| 1 | Frame Siding | Composition Shingle | Drywall | Central Air to Air | 198 | 0 | NA | NA |
| ID | Square Ft | Condo SF | Total Basement SF | Finished Basement SF | Garage SF | Carport SF | Balcony SF | Porch SF |
|---|---|---|---|---|---|---|---|---|
| 1 | 1,958 | 0 | 1,908 | 1,908 | 532 | 198 | 288 | 170 |
| ID | Built As | Square Ft | Year Built | Stories | Length | Width |
|---|---|---|---|---|---|---|
| 1.00 | Ranch 1 Story | 1,958 | 2015 | 1 | 0 | 0 |
| ID | Detail Type | Description | Units |
|---|---|---|---|
| 1 | Balcony | Wood Wood Fin | 288.00 |
| 1 | Basement | Finished | 1908.00 |
| 1 | Basement | Full Daylight | 1.00 |
| 1 | Basement | Total Basement SF | 1908.00 |
| 1 | Carport | Carport | 198.00 |
| 1 | Fixture | Full Bath | 2.00 |
| 1 | Garage | Attached | 532.00 |
| 1 | Porch | Slab Roof Ceil | 170.00 |
| 1 | Rough In | Rough In | 1.00 |
| Account | Parcel | Account Type | Tax Year | Buildings | Actual Value | Local Govt Assessed Value | School Assessed Value |
|---|---|---|---|---|---|---|---|
| R1185102 | 105905331060 | Residential | 2026 | 1 | 626,740 | 39,180 | 44,190 |
| Type | Code | Description | Actual Value | Local Govt Assessed Value | School Assessed Value | Acres | Land SqFt |
|---|---|---|---|---|---|---|---|
| Improvement | 1212 | SINGLE FAMILY RESIDENTIAL IMPROVEMENTS | 476,740 | 29,800 | 33,610 | 0.000 | 0 |
| Land | 1112 | SINGLE FAMILY RESIDENTIAL-LAND | 150,000 | 9,380 | 10,580 | 0.227 | 9,897 |
| Totals | - | - | 626,740 | 39,180 | 44,190 | 0.227 | 9,897 |
Comparable sales for your Residential or Commercial property may be found using our SALES SEARCH TOOL
Values are updated annually on May 1st for Real Property and June 15th for Personal Property and Oil and Gas.
| Account | Parcel | Account Type | Tax Year | Buildings | Actual Value | Local Govt Assessed Value | School Assessed Value |
|---|---|---|---|---|---|---|---|
| R1185102 | 105905331060 | Residential | 2026 | 1 | 626,740 | 39,180 | 44,190 |
| Tax Area | District ID | District Name | Local Govt Mill Levy |
School Mill Levy |
Estimated Taxes |
|---|---|---|---|---|---|
| 0568 | 0700 | AIMS JUNIOR COLLEGE | 6.313 | 0.000 | $247.34 |
| 0568 | 0510 | FRONT RANGE FIRE RESCUE FIRE PROTECTION DISTRICT | 11.483 | 0.000 | $449.90 |
| 0568 | 0414 | JOHNSTOWN TOWN | 23.947 | 0.000 | $938.24 |
| 0568 | 0306 | LITTLE THOMPSON WATER (LTW) | 0.000 | 0.000 | $0.00 |
| 0568 | 0301 | NORTHERN COLORADO WATER (NCW) | 1.000 | 0.000 | $39.18 |
| 0568 | 0205 | SCHOOL DIST RE5J-JOHNSTOWN | 0.000 | 36.271 | $1,602.82 |
| 0568 | 0901 | THOMPSON RIVER REC | 3.594 | 0.000 | $140.81 |
| 0568 | 0100 | WELD COUNTY | 15.956 | 0.000 | $625.16 |
| Total | - | - | 62.293 | 36.271 | $4,043.46 |
The estimate of tax is based on the prior year mill levy and the 2025 projected assessment rates. Mill levies and tax estimates will be updated yearly on December 22nd for the current year. Additional information can be found at https://assessor.weld.gov


