Account: R1203897

April 4, 2026

Account Parcel Account Type Tax Year Buildings Actual Value Local Govt Assessed Value School Assessed Value
R1203897 080728201003 Residential 2026 1 577,658 36,110 40,730

Legal
WIN WV L3 BLK1 WATER VALLEY PH 1

Subdivision Block Lot Land Economic Area
WATER VALLEY PHASE 1 1 3 WATER VALLEY NORTH

Property Address Property City Section Township Range
514 PELICAN CV WINDSOR 28 06 67




Account Parcel Account Type Tax Year Buildings Actual Value Local Govt Assessed Value School Assessed Value
R1203897 080728201003 Residential 2026 1 577,658 36,110 40,730

Account Owner Name Address
R1203897 COLLENTINE JODINE 514 PELICAN CV WINDSOR, CO 805506105


Account Parcel Account Type Tax Year Buildings Actual Value Local Govt Assessed Value School Assessed Value
R1203897 080728201003 Residential 2026 1 577,658 36,110 40,730

Reception Rec Date Type Grantor Grantee Doc Fee Sale Date Sale Price
2208869 06-26-1990 SWDN WINDSOR RESOURCE CORPORATION TROLLCO INC 0.00 03-23-1990 0
2439707 NA SUB SUBDIVISION WATER VALLEY PHASE 1 0.00 NA 0
2484353 04-05-1996 WD TROLLCO INC COLLENTINE MICHAEL S & JODINE 4.55 04-04-1996 45,500
4988472 10-16-2024 QCN COLLENTINE MICHAEL S COLLENTINE JODINE 0.00 09-09-2024 0



Account Parcel Account Type Tax Year Buildings Actual Value Local Govt Assessed Value School Assessed Value
R1203897 080728201003 Residential 2026 1 577,658 36,110 40,730

Building 1

AccountNo Building ID Occupancy
R1203897 1 Single Family Residential


ID Type NBHD Occupancy % Complete Bedrooms Baths
1 Residential 2W3012 Single Family Residential 100 3 3.00


ID Exterior Roof Cover Interior HVAC Perimeter Units Unit Type Make
1 Frame Hardboard Composition Shingle Drywall Forced Air 342 0 NA NA


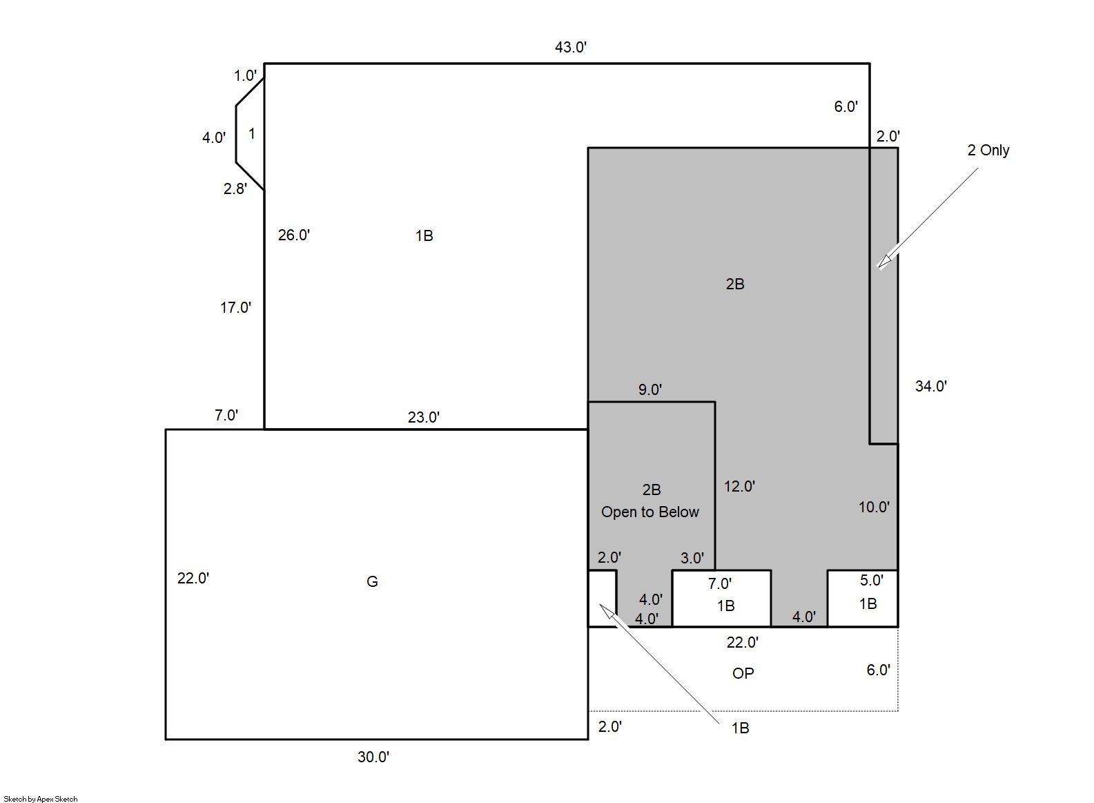
ID Square Ft Condo SF Total Basement SF Finished Basement SF Garage SF Carport SF Balcony SF Porch SF
1 2,004 0 1,424 0 660 0 0 132


Built As Details for Building 1
ID Built As Square Ft Year Built Stories Length Width
1.00 2 Story 2,004 1996 2 0 0


Additional Details for Building 1
ID Detail Type Description Units
1 Add On Fireplace Gas 1.00
1 Basement Total Basement SF 1424.00
1 Fixture Full Bath 2.00
1 Fixture Half Bath 1.00
1 Garage Attached 660.00
1 Porch Slab Roof Ceil 132.00
1 Rough In Rough In 1.00





Account Parcel Account Type Tax Year Buildings Actual Value Local Govt Assessed Value School Assessed Value
R1203897 080728201003 Residential 2026 1 577,658 36,110 40,730

Type Code Description Actual Value Local Govt Assessed Value School Assessed Value Acres Land SqFt
Improvement 1212 SINGLE FAMILY RESIDENTIAL IMPROVEMENTS 447,658 27,980 31,560 0.000 0
Land 1112 SINGLE FAMILY RESIDENTIAL-LAND 130,000 8,130 9,170 0.220 9,702
Totals - - 577,658 36,110 40,730 0.220 9,702


Account Parcel Account Type Tax Year Buildings Actual Value Local Govt Assessed Value School Assessed Value
R1203897 080728201003 Residential 2026 1 577,658 36,110 40,730

Tax Area District ID District Name Local Govt
Mill Levy
School
Mill Levy
Estimated
Taxes
0451 0700 AIMS JUNIOR COLLEGE 6.313 0.000 $227.96
0451 1051 CLEARVIEW LIBRARY 3.546 0.000 $128.05
0451 0301 NORTHERN COLORADO WATER (NCW) 1.000 0.000 $36.11
0451 0204 SCHOOL DIST RE4-WINDSOR 0.000 46.646 $1,899.89
0451 1303 WATER VALLEY METRO 1 37.911 0.000 $1,368.97
0451 0100 WELD COUNTY 15.956 0.000 $576.17
0451 1200 WEST GREELEY CONSERVATION 0.414 0.000 $14.95
0451 0428 WINDSOR TOWN 12.030 0.000 $434.40
0451 0521 WINDSOR-SEVERANCE FIRE 8.535 0.000 $308.20
Total - - 85.705 46.646 $4,994.70


The estimate of tax is based on the prior year mill levy and the 2025 projected assessment rates. Mill levies and tax estimates will be updated yearly on December 22nd for the current year. Additional information can be found at https://assessor.weld.gov










Select Reports to Print: