Account: R1205297

April 5, 2026

Account Parcel Account Type Tax Year Buildings Actual Value Local Govt Assessed Value School Assessed Value
R1205297 080728201017 Residential 2026 1 647,805 40,490 45,680

Legal
WIN WV L17 BLK1 WATER VALLEY PH 1

Subdivision Block Lot Land Economic Area
WATER VALLEY PHASE 1 1 17 WATER VALLEY NORTH

Property Address Property City Section Township Range
301 PELICAN CV WINDSOR 28 06 67




Account Parcel Account Type Tax Year Buildings Actual Value Local Govt Assessed Value School Assessed Value
R1205297 080728201017 Residential 2026 1 647,805 40,490 45,680

Account Owner Name Address
R1205297 ERTL MATTHEW 301 PELICAN CV WINDSOR, CO 805506101
R1205297 ERTL NICOLLE


Account Parcel Account Type Tax Year Buildings Actual Value Local Govt Assessed Value School Assessed Value
R1205297 080728201017 Residential 2026 1 647,805 40,490 45,680

Reception Rec Date Type Grantor Grantee Doc Fee Sale Date Sale Price
2208869 06-26-1990 SWDN WINDSOR RESOURCE CORPORATION TROLLCO INC 0.00 03-23-1990 0
2439707 NA SUB SUBDIVISION WATER VALLEY PHASE 1 0.00 NA 0
2469086 12-27-1995 WD TROLLCO INC EXECUTIVE HOMES INC 14.96 12-20-1995 149,600
2534272 02-20-1997 WD EXECUTIVE HOMES INC BOOS ENTS LLC 14.22 02-20-1997 142,200
2553791 06-18-1997 WD BOOS ENTS LLC GRAUBERGER DELMER & BELINDA 18.00 06-16-1997 180,000
3419940 09-15-2006 DTHC GRAUBERGER DELMER DEWAYNE GRAUBERGER DELMER BELINDA 0.00 04-09-2005 0
3419942 09-15-2006 DTHC GRAUBERGER DELMER BELINDA GRAUBERGER DELMER BELINDA (HEIRS OF) 0.00 02-23-2006 0
3438289 11-30-2006 PRD GRAUBERGER DELMER BELINDA (HEIRS OF) GRAUBERGER ELMER J & 25.00 11-20-2006 250,000
3951660 07-30-2013 DTHC GRAUBERGER ELMER JOHN GRAUBERGER ELMER JOHN 0.00 03-16-2010 0
4356801 12-01-2017 AFFD GRAUBERGER ELMER J GRAUBERGER MARGIE J 0.00 11-29-2017 0
4356803 12-01-2017 CONS GRAUBERGER MARGIE JANE GAINES PHILLIP 40.00 12-01-2017 400,000
4991765 10-31-2024 SWD GAINES KIMBERLY; GAINES PHILLIP ERTL MATTHEW; ERTL NICOLLE 74.50 10-29-2024 745,000



Account Parcel Account Type Tax Year Buildings Actual Value Local Govt Assessed Value School Assessed Value
R1205297 080728201017 Residential 2026 1 647,805 40,490 45,680

Building 1

AccountNo Building ID Occupancy
R1205297 1 Single Family Residential


ID Type NBHD Occupancy % Complete Bedrooms Baths
1 Residential 2W3012 Single Family Residential 100 5 3.00


ID Exterior Roof Cover Interior HVAC Perimeter Units Unit Type Make
1 Frame Masonry Veneer Composition Shingle Drywall Central Air to Air 190 0 NA NA


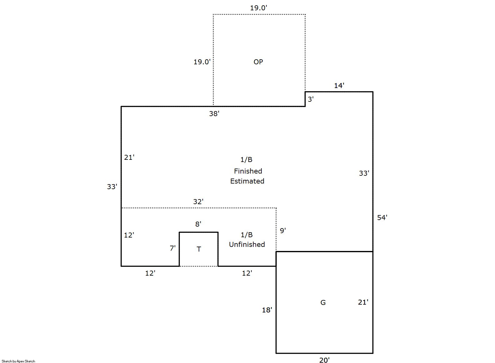
ID Square Ft Condo SF Total Basement SF Finished Basement SF Garage SF Carport SF Balcony SF Porch SF
1 1,642 0 1,642 1,314 420 0 0 56


Built As Details for Building 1
ID Built As Square Ft Year Built Stories Length Width
1.00 Ranch 1 Story 1,642 1996 1 0 0


Additional Details for Building 1
ID Detail Type Description Units
1 Add On Fireplace Gas 1.00
1 Basement Finished 1314.00
1 Basement Total Basement SF 1642.00
1 Fixture Full Bath 3.00
1 Garage Attached 420.00
1 Porch Open Slab 56.00
1 Porch Slab Roof Ceil 361.00





Account Parcel Account Type Tax Year Buildings Actual Value Local Govt Assessed Value School Assessed Value
R1205297 080728201017 Residential 2026 1 647,805 40,490 45,680

Type Code Description Actual Value Local Govt Assessed Value School Assessed Value Acres Land SqFt
Improvement 1212 SINGLE FAMILY RESIDENTIAL IMPROVEMENTS 517,805 32,360 36,510 0.000 0
Land 1112 SINGLE FAMILY RESIDENTIAL-LAND 130,000 8,130 9,170 0.240 10,573
Totals - - 647,805 40,490 45,680 0.240 10,573


Account Parcel Account Type Tax Year Buildings Actual Value Local Govt Assessed Value School Assessed Value
R1205297 080728201017 Residential 2026 1 647,805 40,490 45,680

Tax Area District ID District Name Local Govt
Mill Levy
School
Mill Levy
Estimated
Taxes
0451 0700 AIMS JUNIOR COLLEGE 6.313 0.000 $255.61
0451 1051 CLEARVIEW LIBRARY 3.546 0.000 $143.58
0451 0301 NORTHERN COLORADO WATER (NCW) 1.000 0.000 $40.49
0451 0204 SCHOOL DIST RE4-WINDSOR 0.000 46.646 $2,130.79
0451 1303 WATER VALLEY METRO 1 37.911 0.000 $1,535.02
0451 0100 WELD COUNTY 15.956 0.000 $646.06
0451 1200 WEST GREELEY CONSERVATION 0.414 0.000 $16.76
0451 0428 WINDSOR TOWN 12.030 0.000 $487.09
0451 0521 WINDSOR-SEVERANCE FIRE 8.535 0.000 $345.58
Total - - 85.705 46.646 $5,600.98


The estimate of tax is based on the prior year mill levy and the 2025 projected assessment rates. Mill levies and tax estimates will be updated yearly on December 22nd for the current year. Additional information can be found at https://assessor.weld.gov










Select Reports to Print: