Account: R1215802

April 5, 2026

Account Parcel Account Type Tax Year Buildings Actual Value Local Govt Assessed Value School Assessed Value
R1215802 095904106010 Residential 2026 1 494,442 30,910 34,860

Legal
GR HC4R L10 BLK5 HUNTERS COVE 4TH RPLT

Subdivision Block Lot Land Economic Area
HUNTERS COVE 4TH RPLT 5 10 HUNTERS COVE

Property Address Property City Section Township Range
6053 A ST GREELEY 04 05 66




Account Parcel Account Type Tax Year Buildings Actual Value Local Govt Assessed Value School Assessed Value
R1215802 095904106010 Residential 2026 1 494,442 30,910 34,860

Account Owner Name Address
R1215802 6053 OPERATIONS LLC 1379 57TH AVE GREELEY, CO 806342978


Account Parcel Account Type Tax Year Buildings Actual Value Local Govt Assessed Value School Assessed Value
R1215802 095904106010 Residential 2026 1 494,442 30,910 34,860

Reception Rec Date Type Grantor Grantee Doc Fee Sale Date Sale Price
2898543 NA SUB SUBDIVISION HUNTERS COVE 4TH RPLT 0.00 NA 0
3023235 01-13-2003 WD HUNTERS COVE LLC SAMSON & SAMSON HOMES LLC 9.00 01-10-2003 90,000
3210740 08-19-2004 WD SAMSON & SAMSON HOMES LLC HUSTON DONALD W & 22.94 08-13-2004 229,400
3837423 04-09-2012 PTD HUSTON DONALD W DEUTSCHE BANK NATIONAL TRUST COMPANY 0.00 04-06-2012 0
3864825 08-08-2012 SWD DEUTSCHE BANK NATIONAL TRUST COMPANY PERCOLO PROPERTIES LLC 16.13 06-21-2012 161,300
3937282 06-04-2013 WD PERCOLO PROPERTIES LLC HANCOCK LEVI COLBY 25.20 05-30-2013 252,000
4082249 02-10-2015 WD HANCOCK LEVI COLBY DURAN DUSTIN DON 28.10 02-05-2015 281,000
4848191 08-12-2022 WD DURAN DUSTIN DON FRANZEN DUANE G; FRANZEN MARIE L 52.25 08-11-2022 522,500
4870734 12-06-2022 QCN FRANZEN DUANE G; FRANZEN MARIE L 6053 OPERATIONS LLC 0.00 12-01-2022 0



Account Parcel Account Type Tax Year Buildings Actual Value Local Govt Assessed Value School Assessed Value
R1215802 095904106010 Residential 2026 1 494,442 30,910 34,860

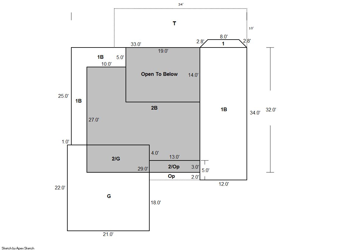
Building 1

AccountNo Building ID Occupancy
R1215802 1 Single Family Residential


ID Type NBHD Occupancy % Complete Bedrooms Baths
1 Residential 2G4010 Single Family Residential 100 5 5.00


ID Exterior Roof Cover Interior HVAC Perimeter Units Unit Type Make
1 Frame Siding Composition Shingle Drywall Central Air to Air 348 0 NA NA


ID Square Ft Condo SF Total Basement SF Finished Basement SF Garage SF Carport SF Balcony SF Porch SF
1 1,917 0 1,285 1,285 462 0 0 65


Built As Details for Building 1
ID Built As Square Ft Year Built Stories Length Width
1.00 2 Story 1,917 2003 2 0 0


Additional Details for Building 1
ID Detail Type Description Units
1 Add On Fireplace Gas 1.00
1 Basement Finished 1285.00
1 Basement Total Basement SF 1285.00
1 Fixture Full Bath 3.00
1 Fixture Half Bath 2.00
1 Garage Attached 462.00
1 Porch Open Slab 320.00
1 Porch Slab Roof Ceil 65.00
1 Rough In Rough In 1.00





Account Parcel Account Type Tax Year Buildings Actual Value Local Govt Assessed Value School Assessed Value
R1215802 095904106010 Residential 2026 1 494,442 30,910 34,860

Type Code Description Actual Value Local Govt Assessed Value School Assessed Value Acres Land SqFt
Improvement 1212 SINGLE FAMILY RESIDENTIAL IMPROVEMENTS 379,442 23,720 26,750 0.000 0
Land 1112 SINGLE FAMILY RESIDENTIAL-LAND 115,000 7,190 8,110 0.184 8,004
Totals - - 494,442 30,910 34,860 0.184 8,004


Account Parcel Account Type Tax Year Buildings Actual Value Local Govt Assessed Value School Assessed Value
R1215802 095904106010 Residential 2026 1 494,442 30,910 34,860

Tax Area District ID District Name Local Govt
Mill Levy
School
Mill Levy
Estimated
Taxes
0683 0700 AIMS JUNIOR COLLEGE 6.313 0.000 $195.13
0683 0411 GREELEY CITY 11.274 0.000 $348.48
0683 1050 HIGH PLAINS LIBRARY 3.044 0.000 $94.09
0683 0301 NORTHERN COLORADO WATER (NCW) 1.000 0.000 $30.91
0683 0206 SCHOOL DIST 6-GREELEY 0.000 47.615 $1,659.86
0683 0100 WELD COUNTY 15.956 0.000 $493.20
0683 1200 WEST GREELEY CONSERVATION 0.414 0.000 $12.80
Total - - 38.001 47.615 $2,834.47


The estimate of tax is based on the prior year mill levy and the 2025 projected assessment rates. Mill levies and tax estimates will be updated yearly on December 22nd for the current year. Additional information can be found at https://assessor.weld.gov










Select Reports to Print: