Account: R1226897

April 1, 2026

Account Parcel Account Type Tax Year Buildings Actual Value Local Govt Assessed Value School Assessed Value
R1226897 080722202005 Commercial 2026 1 635,000 171,450 171,450

Legal
WIN WTBC L5 BLK1 WINDSOR TECH BUSINESS CENTER

Subdivision Block Lot Land Economic Area
WINDSOR TECH BUSINESS CENTER SUB 1 5 DIAMOND VALLEY

Property Address Property City Section Township Range
600 INNOVATION CIR WINDSOR 22 06 67




Account Parcel Account Type Tax Year Buildings Actual Value Local Govt Assessed Value School Assessed Value
R1226897 080722202005 Commercial 2026 1 635,000 171,450 171,450

Account Owner Name Address
R1226897 FOCOCO CO LLC 772 WHALERS WAY STE 200 FORT COLLINS, CO 805257583


Account Parcel Account Type Tax Year Buildings Actual Value Local Govt Assessed Value School Assessed Value
R1226897 080722202005 Commercial 2026 1 635,000 171,450 171,450

Reception Rec Date Type Grantor Grantee Doc Fee Sale Date Sale Price
2414872 11-10-1994 WDN WINDSOR TECH BUSINESS CENTER LLC 0.00 11-09-1994 0
2433992 NA SUB SUBDIVISION WINDSOR TECH BUSINESS CENTER 0.00 NA 0
2486370 04-17-1996 WD WINDSOR TECH BUSINESS CENTER L LANPHEAR MEL 2.50 04-16-1996 25,000
2838596 04-06-2001 WD MMC PARTNERSHIP DANIELS DANNY RAY & GARY LEDEAN 12.88 03-30-2001 128,800
3324406 09-20-2005 WD DANIELS DANNY RAY & GARY LEDEAN EBRIGHT SEAN EDGAR 24.00 09-16-2005 240,000
3740106 12-20-2010 WD EBRIGHT SEAN EDGAR WATERHOUSE JARED 20.00 12-17-2010 200,000
3845809 05-15-2012 WD WATERHOUSE JARED MILEWSKI PAUL 29.00 05-11-2012 290,000
4038736 08-15-2014 WD MILEWSKI PAUL 600 INNOVATION WINDSOR LLC 43.90 08-13-2014 439,000
4089309 03-11-2015 WD 600 INNOVATION WINDSOR LLC WC BIRKENMAYER III 70.00 02-27-2015 700,000
4961226 05-20-2024 SWD WC BIRKENMAYER III FOCOCO CO LLC 60.78 05-03-2024 607,800



Account Parcel Account Type Tax Year Buildings Actual Value Local Govt Assessed Value School Assessed Value
R1226897 080722202005 Commercial 2026 1 635,000 171,450 171,450

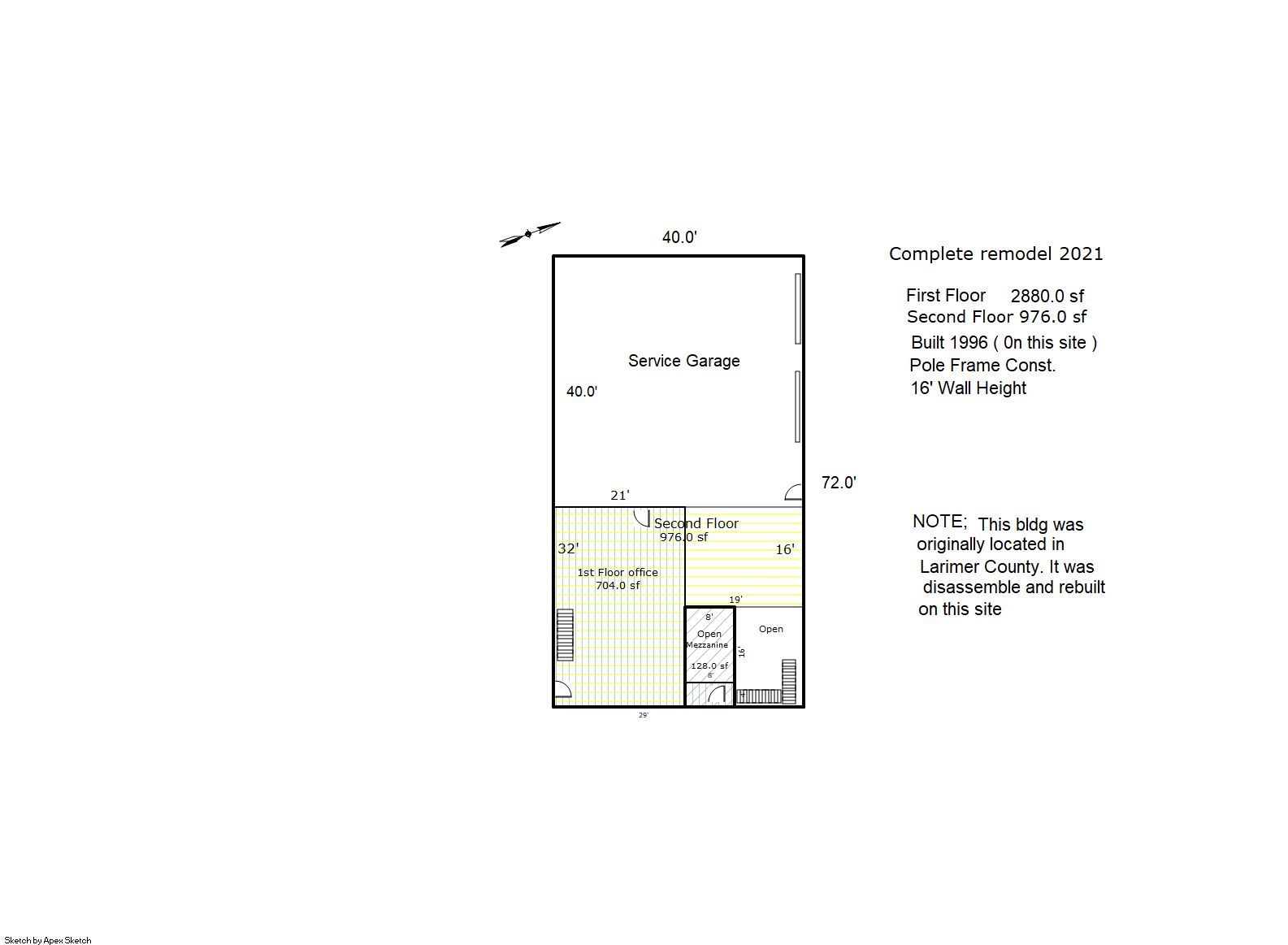
Building 1

AccountNo Building ID Occupancy
R1226897 1 Warehouse


ID Type NBHD Occupancy % Complete Bedrooms Baths
1 Commercial 2906 Warehouse 100 0 3.00


ID Exterior Roof Cover Interior HVAC Perimeter Units Unit Type Make
1 NA NA NA Radiant 368 0 NA NA


ID Square Ft Condo SF Total Basement SF Finished Basement SF Garage SF Carport SF Balcony SF Porch SF
1 3,856 0 0 0 0 0 0 0


Built As Details for Building 1
ID Built As Square Ft Year Built Stories Length Width
1.00 Service Garage 3,856 1996 2 0 0


Additional Details for Building 1
ID Detail Type Description Units
1 Add On Com Office Finish Average 1888.00
1 Mezzanine Open 128.00





Account Parcel Account Type Tax Year Buildings Actual Value Local Govt Assessed Value School Assessed Value
R1226897 080722202005 Commercial 2026 1 635,000 171,450 171,450

Type Code Description Actual Value Local Govt Assessed Value School Assessed Value Acres Land SqFt
Improvement 2235 WAREHOUSE/STORAGE-IMPS 455,335 122,940 122,940 0.000 0
Land 2130 SPECIAL PURPOSE-LAND 179,665 48,510 48,510 0.820 35,933
Totals - - 635,000 171,450 171,450 0.820 35,933


Account Parcel Account Type Tax Year Buildings Actual Value Local Govt Assessed Value School Assessed Value
R1226897 080722202005 Commercial 2026 1 635,000 171,450 171,450

Tax Area District ID District Name Local Govt
Mill Levy
School
Mill Levy
Estimated
Taxes
0437 0700 AIMS JUNIOR COLLEGE 6.313 0.000 $1,082.36
0437 1051 CLEARVIEW LIBRARY 3.546 0.000 $607.96
0437 0304 NORTH WELD COUNTY WATER (NWC) 0.000 0.000 $0.00
0437 0301 NORTHERN COLORADO WATER (NCW) 1.000 0.000 $171.45
0437 0204 SCHOOL DIST RE4-WINDSOR 0.000 46.646 $7,997.46
0437 0100 WELD COUNTY 15.956 0.000 $2,735.66
0437 1200 WEST GREELEY CONSERVATION 0.414 0.000 $70.98
0437 0428 WINDSOR TOWN 12.030 0.000 $2,062.54
0437 0521 WINDSOR-SEVERANCE FIRE 8.535 0.000 $1,463.33
Total - - 47.794 46.646 $16,191.74


The estimate of tax is based on the prior year mill levy and the 2025 projected assessment rates. Mill levies and tax estimates will be updated yearly on December 22nd for the current year. Additional information can be found at https://assessor.weld.gov










Select Reports to Print: