Account: R1239602

April 5, 2026

Account Parcel Account Type Tax Year Buildings Actual Value Local Govt Assessed Value School Assessed Value
R1239602 106101303005 Residential 2026 1 504,564 31,530 35,580

Legal
JOH 2CF L5 BLK3 CARLSON FARMS FG#2

Subdivision Block Lot Land Economic Area
CARLSON FARMS FG#2 3 5 CARLSON FARMS

Property Address Property City Section Township Range
338 GRAHAM LN JOHNSTOWN 01 04 68




Account Parcel Account Type Tax Year Buildings Actual Value Local Govt Assessed Value School Assessed Value
R1239602 106101303005 Residential 2026 1 504,564 31,530 35,580

Account Owner Name Address
R1239602 CAMPBELL RYAN R 338 GRAHAM LN JOHNSTOWN, CO 805347409


Account Parcel Account Type Tax Year Buildings Actual Value Local Govt Assessed Value School Assessed Value
R1239602 106101303005 Residential 2026 1 504,564 31,530 35,580

Reception Rec Date Type Grantor Grantee Doc Fee Sale Date Sale Price
2885960 NA SUB SUBDIVISION CARLSON FARMS FG #2 0.00 NA 0
2957190 06-03-2002 QCN TWIN SILOS LLC AVSET MANAGEMENT SERVICES LLC 0.00 05-31-2002 0
3087278 07-24-2003 QCN AVSET MANAGEMENT SERVICES LLC ADVOCATE LAND COMPANY INC 0.00 07-07-2003 0
3087279 07-24-2003 WD ADVOCATE LAND COMPANY INC RUTHERFORD SHAWN T 19.71 07-11-2003 197,100
4039048 08-18-2014 WDE RUTHERFORD SHAWN T EMRICK WESTLEY TYLER 23.60 08-15-2014 236,000
4130111 08-03-2015 WD EMRICK WESTLEY TYLER REIMER DILLION; BRADY KATELYN M 25.40 07-31-2015 254,000
4293041 04-12-2017 QCN REIMER DILLION; BRADY KATELYN M REIMER DILLION; REIMER KATELYN M 0.00 04-04-2017 0
4701443 04-06-2021 SWD REIMER DILLION; REIMER KATELYN M CAMPBELL RYAN R 46.00 04-02-2021 460,000



Account Parcel Account Type Tax Year Buildings Actual Value Local Govt Assessed Value School Assessed Value
R1239602 106101303005 Residential 2026 1 504,564 31,530 35,580

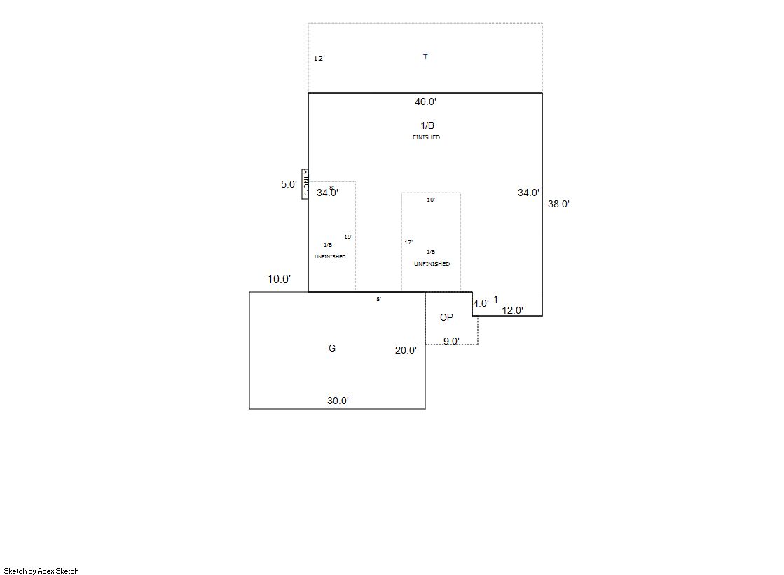
Building 1

AccountNo Building ID Occupancy
R1239602 1 Single Family Residential


ID Type NBHD Occupancy % Complete Bedrooms Baths
1 Residential 0J0079 Single Family Residential 100 4 3.00


ID Exterior Roof Cover Interior HVAC Perimeter Units Unit Type Make
1 Frame Hardboard Composition Shingle Drywall Central Air to Air 168 0 NA NA


ID Square Ft Condo SF Total Basement SF Finished Basement SF Garage SF Carport SF Balcony SF Porch SF
1 1,413 0 1,408 1,086 600 0 0 480


Built As Details for Building 1
ID Built As Square Ft Year Built Stories Length Width
1.00 Ranch 1 Story 1,413 2003 1 0 0


Additional Details for Building 1
ID Detail Type Description Units
1 Basement Finished 1086.00
1 Basement Total Basement SF 1408.00
1 Fixture Full Bath 3.00
1 Garage Attached 600.00
1 Porch Open Slab 480.00
1 Porch Slab Roof Ceil 77.00





Account Parcel Account Type Tax Year Buildings Actual Value Local Govt Assessed Value School Assessed Value
R1239602 106101303005 Residential 2026 1 504,564 31,530 35,580

Type Code Description Actual Value Local Govt Assessed Value School Assessed Value Acres Land SqFt
Improvement 1212 SINGLE FAMILY RESIDENTIAL IMPROVEMENTS 391,564 24,470 27,610 0.000 0
Land 1112 SINGLE FAMILY RESIDENTIAL-LAND 113,000 7,060 7,970 0.152 6,627
Totals - - 504,564 31,530 35,580 0.152 6,627


Account Parcel Account Type Tax Year Buildings Actual Value Local Govt Assessed Value School Assessed Value
R1239602 106101303005 Residential 2026 1 504,564 31,530 35,580

Tax Area District ID District Name Local Govt
Mill Levy
School
Mill Levy
Estimated
Taxes
0567 0700 AIMS JUNIOR COLLEGE 6.313 0.000 $199.05
0567 0510 FRONT RANGE FIRE RESCUE FIRE PROTECTION DISTRICT 11.483 0.000 $362.06
0567 0414 JOHNSTOWN TOWN 23.947 0.000 $755.05
0567 0301 NORTHERN COLORADO WATER (NCW) 1.000 0.000 $31.53
0567 0205 SCHOOL DIST RE5J-JOHNSTOWN 0.000 36.271 $1,290.52
0567 0901 THOMPSON RIVER REC 3.594 0.000 $113.32
0567 0100 WELD COUNTY 15.956 0.000 $503.09
Total - - 62.293 36.271 $3,254.62


The estimate of tax is based on the prior year mill levy and the 2025 projected assessment rates. Mill levies and tax estimates will be updated yearly on December 22nd for the current year. Additional information can be found at https://assessor.weld.gov










Select Reports to Print: