Account: R1243197
April 1, 2026
| Account | Parcel | Account Type | Tax Year | Buildings | Actual Value | Local Govt Assessed Value | School Assessed Value |
|---|---|---|---|---|---|---|---|
| R1243197 | 080709401004 | Residential | 2026 | 2 | 1,063,054 | 66,440 | 74,940 |
| Legal |
|---|
| WIN WE L4 BLK1 WINDSOR ESTATES |
| Subdivision | Block | Lot | Land Economic Area |
|---|---|---|---|
| WINDSOR ESTATES SUB | 1 | 4 | WINDSOR ESTATES |
| Property Address | Property City | Section | Township | Range |
|---|---|---|---|---|
| 901 CLYDESDALE LN | WINDSOR | 09 | 06 | 67 |
| Account | Parcel | Account Type | Tax Year | Buildings | Actual Value | Local Govt Assessed Value | School Assessed Value |
|---|---|---|---|---|---|---|---|
| R1243197 | 080709401004 | Residential | 2026 | 2 | 1,063,054 | 66,440 | 74,940 |
| Account | Owner Name | Address |
|---|---|---|
| R1243197 | MITCHELL FAMILY TRUST | 901 CLYDESDALE LN WINDSOR, CO 805503135 |
| Account | Parcel | Account Type | Tax Year | Buildings | Actual Value | Local Govt Assessed Value | School Assessed Value |
|---|---|---|---|---|---|---|---|
| R1243197 | 080709401004 | Residential | 2026 | 2 | 1,063,054 | 66,440 | 74,940 |
| Reception | Rec Date | Type | Grantor | Grantee | Doc Fee | Sale Date | Sale Price |
|---|---|---|---|---|---|---|---|
| 2393939 | 06-17-1994 | WDN | HILLSIDE COMMERCIAL GROUP INC | 0.00 | 06-11-1994 | 0 | |
| 2447578 | NA | SUB | SUBDIVISION | WINDSOR ESTATES | 0.00 | NA | 0 |
| 2504463 | 08-05-1996 | WD | HILLSIDE COMMERCIAL GROUP INC | FINE HOMES INC | 6.30 | 07-31-1996 | 63,000 |
| 2636691 | 08-28-1998 | WD | FINE HOMES INC | MITCHELL MICHAEL W & VERNA L | 33.65 | 08-27-1998 | 336,500 |
| 3983729 | 12-12-2013 | SWDN | MITCHELL MICHAEL W | MITCHELL FAMILY TRUST | 0.00 | 11-29-2013 | 0 |
*If the hyperlink for the reception number does not work, try a manual search in the Clerk and Recorder records. Use the Grantor or Grantee in your search.
| Account | Parcel | Account Type | Tax Year | Buildings | Actual Value | Local Govt Assessed Value | School Assessed Value |
|---|---|---|---|---|---|---|---|
| R1243197 | 080709401004 | Residential | 2026 | 2 | 1,063,054 | 66,440 | 74,940 |
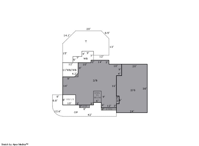
Building 1
| AccountNo | Building ID | Occupancy |
|---|---|---|
| R1243197 | 1 | Single Family Residential |
| ID | Type | NBHD | Occupancy | % Complete | Bedrooms | Baths |
|---|---|---|---|---|---|---|
| 1 | Residential | 2W7001 | Single Family Residential | 100 | 4 | 4.00 |
| ID | Exterior | Roof Cover | Interior | HVAC | Perimeter | Units | Unit Type | Make |
|---|---|---|---|---|---|---|---|---|
| 1 | Frame Siding | Comp Shingle Heavy | Drywall | Central Air to Air | 0 | 0 | NA | NA |
| ID | Square Ft | Condo SF | Total Basement SF | Finished Basement SF | Garage SF | Carport SF | Balcony SF | Porch SF |
|---|---|---|---|---|---|---|---|---|
| 1 | 3,505 | 0 | 1,324 | 0 | 864 | 0 | 446 | 477 |
| ID | Built As | Square Ft | Year Built | Stories | Length | Width |
|---|---|---|---|---|---|---|
| 1.00 | 2 Story | 3,505 | 1998 | 2 | 0 | 0 |
| ID | Detail Type | Description | Units |
|---|---|---|---|
| 1 | Add On | Fireplace Wood | 2.00 |
| 1 | Balcony | Wood Wood Fin | 446.00 |
| 1 | Basement | Total Basement SF | 1324.00 |
| 1 | Fixture | Full Bath | 3.00 |
| 1 | Fixture | Half Bath | 1.00 |
| 1 | Garage | Attached | 864.00 |
| 1 | Porch | Open Slab | 644.00 |
| 1 | Porch | Slab Roof Ceil | 477.00 |
| 1 | Rough In | Rough In | 1.00 |
Building 2
| AccountNo | Building ID | Occupancy |
|---|---|---|
| R1243197 | 2 | Stable |
| ID | Type | NBHD | Occupancy | % Complete | Bedrooms | Baths |
|---|---|---|---|---|---|---|
| 2 | Out Building | NA | Stable | 100 | 0 | 0.00 |
| ID | Exterior | Roof Cover | Interior | HVAC | Perimeter | Units | Unit Type | Make |
|---|---|---|---|---|---|---|---|---|
| 2 | NA | NA | NA | None | 120 | 0 | NA | NA |
| ID | Square Ft | Condo SF | Total Basement SF | Finished Basement SF | Garage SF | Carport SF | Balcony SF | Porch SF |
|---|---|---|---|---|---|---|---|---|
| 2 | 900 | 0 | 0 | 0 | 0 | 0 | 0 | 0 |
| ID | Built As | Square Ft | Year Built | Stories | Length | Width |
|---|---|---|---|---|---|---|
| 2.00 | Stable | 900 | 2008 | 1 | 30 | 30 |
| ID | Detail Type | Description | Units |
|---|---|---|---|
| 2 | Add On | OB Open Shelter Lean To Wood | 480.00 |
| Account | Parcel | Account Type | Tax Year | Buildings | Actual Value | Local Govt Assessed Value | School Assessed Value |
|---|---|---|---|---|---|---|---|
| R1243197 | 080709401004 | Residential | 2026 | 2 | 1,063,054 | 66,440 | 74,940 |
| Type | Code | Description | Actual Value | Local Govt Assessed Value | School Assessed Value | Acres | Land SqFt |
|---|---|---|---|---|---|---|---|
| Improvement | 1212 | SINGLE FAMILY RESIDENTIAL IMPROVEMENTS | 858,054 | 53,630 | 60,490 | 0.000 | 0 |
| Land | 1112 | SINGLE FAMILY RESIDENTIAL-LAND | 205,000 | 12,810 | 14,450 | 2.246 | 97,836 |
| Totals | - | - | 1,063,054 | 66,440 | 74,940 | 2.246 | 97,836 |
Comparable sales for your Residential or Commercial property may be found using our SALES SEARCH TOOL
Values are updated annually on May 1st for Real Property and June 15th for Personal Property and Oil and Gas.
| Account | Parcel | Account Type | Tax Year | Buildings | Actual Value | Local Govt Assessed Value | School Assessed Value |
|---|---|---|---|---|---|---|---|
| R1243197 | 080709401004 | Residential | 2026 | 2 | 1,063,054 | 66,440 | 74,940 |
| Tax Area | District ID | District Name | Local Govt Mill Levy |
School Mill Levy |
Estimated Taxes |
|---|---|---|---|---|---|
| 0421 | 0700 | AIMS JUNIOR COLLEGE | 6.313 | 0.000 | $419.44 |
| 0421 | 1051 | CLEARVIEW LIBRARY | 3.546 | 0.000 | $235.60 |
| 0421 | 0304 | NORTH WELD COUNTY WATER (NWC) | 0.000 | 0.000 | $0.00 |
| 0421 | 0301 | NORTHERN COLORADO WATER (NCW) | 1.000 | 0.000 | $66.44 |
| 0421 | 0204 | SCHOOL DIST RE4-WINDSOR | 0.000 | 46.646 | $3,495.65 |
| 0421 | 0100 | WELD COUNTY | 15.956 | 0.000 | $1,060.12 |
| 0421 | 0428 | WINDSOR TOWN | 12.030 | 0.000 | $799.27 |
| 0421 | 0521 | WINDSOR-SEVERANCE FIRE | 8.535 | 0.000 | $567.07 |
| Total | - | - | 47.38 | 46.646 | $6,643.58 |
The estimate of tax is based on the prior year mill levy and the 2025 projected assessment rates. Mill levies and tax estimates will be updated yearly on December 22nd for the current year. Additional information can be found at https://assessor.weld.gov



