Account: R1246697

April 1, 2026

Account Parcel Account Type Tax Year Buildings Actual Value Local Govt Assessed Value School Assessed Value
R1246697 080709402007 Residential 2026 2 955,687 59,730 67,370

Legal
WIN WE L7 BLK2 WINDSOR ESTATES

Subdivision Block Lot Land Economic Area
WINDSOR ESTATES SUB 2 7 WINDSOR ESTATES

Property Address Property City Section Township Range
908 PALOMINO WAY WINDSOR 09 06 67




Account Parcel Account Type Tax Year Buildings Actual Value Local Govt Assessed Value School Assessed Value
R1246697 080709402007 Residential 2026 2 955,687 59,730 67,370

Account Owner Name Address
R1246697 BIGLER LAWRENCE R 908 PALOMINO WAY WINDSOR, CO 805503137
R1246697 BIGLER MICHELLE L


Account Parcel Account Type Tax Year Buildings Actual Value Local Govt Assessed Value School Assessed Value
R1246697 080709402007 Residential 2026 2 955,687 59,730 67,370

Reception Rec Date Type Grantor Grantee Doc Fee Sale Date Sale Price
2393939 06-17-1994 WDN HILLSIDE COMMERCIAL GROUP INC 0.00 06-11-1994 0
2447578 NA SUB SUBDIVISION WINDSOR ESTATES 0.00 NA 0
2515574 10-14-1996 WD HILLSIDE COMMERCIAL GROUP INC BIGLER LAWRENCE R & MICHELLE L 6.10 10-11-1996 61,000



Account Parcel Account Type Tax Year Buildings Actual Value Local Govt Assessed Value School Assessed Value
R1246697 080709402007 Residential 2026 2 955,687 59,730 67,370

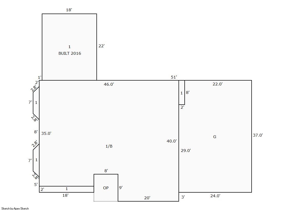
Building 1

AccountNo Building ID Occupancy
R1246697 1 Single Family Residential


ID Type NBHD Occupancy % Complete Bedrooms Baths
1 Residential 2W7001 Single Family Residential 100 5 3.00


ID Exterior Roof Cover Interior HVAC Perimeter Units Unit Type Make
1 Frame Stucco Composition Shingle Drywall Forced Air 235 0 NA NA


ID Square Ft Condo SF Total Basement SF Finished Basement SF Garage SF Carport SF Balcony SF Porch SF
1 2,162 0 1,678 1,678 872 0 0 72


Built As Details for Building 1
ID Built As Square Ft Year Built Stories Length Width
1.00 Ranch 1 Story 2,162 1997 1 0 0


Additional Details for Building 1
ID Detail Type Description Units
1 Add On Fireplace Gas 2.00
1 Basement Finished 1678.00
1 Basement Total Basement SF 1678.00
1 Fixture Full Bath 3.00
1 Garage Attached 872.00
1 Porch Slab Roof Ceil 72.00



Building 2

AccountNo Building ID Occupancy
R1246697 2 Equipment Building


ID Type NBHD Occupancy % Complete Bedrooms Baths
2 Out Building NA Equipment Building 100 0 0.00


ID Exterior Roof Cover Interior HVAC Perimeter Units Unit Type Make
2 NA NA NA None 124 0 NA NA


ID Square Ft Condo SF Total Basement SF Finished Basement SF Garage SF Carport SF Balcony SF Porch SF
2 897 0 0 0 0 0 0 0


Built As Details for Building 2
ID Built As Square Ft Year Built Stories Length Width
2.00 Equipment Building 897 2006 1 39 23


Additional Details for Building 2
ID Detail Type Description Units
2 Add On OB Open Shelter Lean To Steel 36.00





Account Parcel Account Type Tax Year Buildings Actual Value Local Govt Assessed Value School Assessed Value
R1246697 080709402007 Residential 2026 2 955,687 59,730 67,370

Type Code Description Actual Value Local Govt Assessed Value School Assessed Value Acres Land SqFt
Improvement 1212 SINGLE FAMILY RESIDENTIAL IMPROVEMENTS 750,687 46,920 52,920 0.000 0
Land 1112 SINGLE FAMILY RESIDENTIAL-LAND 205,000 12,810 14,450 2.256 98,271
Totals - - 955,687 59,730 67,370 2.256 98,271


Account Parcel Account Type Tax Year Buildings Actual Value Local Govt Assessed Value School Assessed Value
R1246697 080709402007 Residential 2026 2 955,687 59,730 67,370

Tax Area District ID District Name Local Govt
Mill Levy
School
Mill Levy
Estimated
Taxes
0421 0700 AIMS JUNIOR COLLEGE 6.313 0.000 $377.08
0421 1051 CLEARVIEW LIBRARY 3.546 0.000 $211.80
0421 0304 NORTH WELD COUNTY WATER (NWC) 0.000 0.000 $0.00
0421 0301 NORTHERN COLORADO WATER (NCW) 1.000 0.000 $59.73
0421 0204 SCHOOL DIST RE4-WINDSOR 0.000 46.646 $3,142.54
0421 0100 WELD COUNTY 15.956 0.000 $953.05
0421 0428 WINDSOR TOWN 12.030 0.000 $718.55
0421 0521 WINDSOR-SEVERANCE FIRE 8.535 0.000 $509.80
Total - - 47.38 46.646 $5,972.55


The estimate of tax is based on the prior year mill levy and the 2025 projected assessment rates. Mill levies and tax estimates will be updated yearly on December 22nd for the current year. Additional information can be found at https://assessor.weld.gov










Select Reports to Print: