Account: R1276802

April 5, 2026

Account Parcel Account Type Tax Year Buildings Actual Value Local Govt Assessed Value School Assessed Value
R1276802 146719101048 Residential 2026 1 584,614 36,540 41,210

Legal
ERI GV L48 BLK1 GRANDVIEW

Subdivision Block Lot Land Economic Area
GRANDVIEW FINAL PLAT 1 48 GRANDVIEW

Property Address Property City Section Township Range
858 DONNELLY PL ERIE 19 01 68




Account Parcel Account Type Tax Year Buildings Actual Value Local Govt Assessed Value School Assessed Value
R1276802 146719101048 Residential 2026 1 584,614 36,540 41,210

Account Owner Name Address
R1276802 KADHIM JOSEPH 858 DONNELLY PL ERIE, CO 805168482


Account Parcel Account Type Tax Year Buildings Actual Value Local Govt Assessed Value School Assessed Value
R1276802 146719101048 Residential 2026 1 584,614 36,540 41,210

Reception Rec Date Type Grantor Grantee Doc Fee Sale Date Sale Price
2903862 NA SUB SUBDIVISION GRANDVIEW 0.00 NA 0
3242170 12-07-2004 WD KB HOME COLORADO INC HALL SCOTT N 26.29 11-30-2004 262,900
3507804 10-01-2007 PTD HALL SCOTT N BANK OF NEW YORK 0.00 10-01-2007 0
3541337 03-13-2008 SWD BANK OF NEW YORK KADHIM JOSEPH 22.89 03-05-2008 228,900
4967919 06-26-2024 BN KADHIM JOSEPH KADHIM JOSEPH 0.00 06-15-2024 0



Account Parcel Account Type Tax Year Buildings Actual Value Local Govt Assessed Value School Assessed Value
R1276802 146719101048 Residential 2026 1 584,614 36,540 41,210

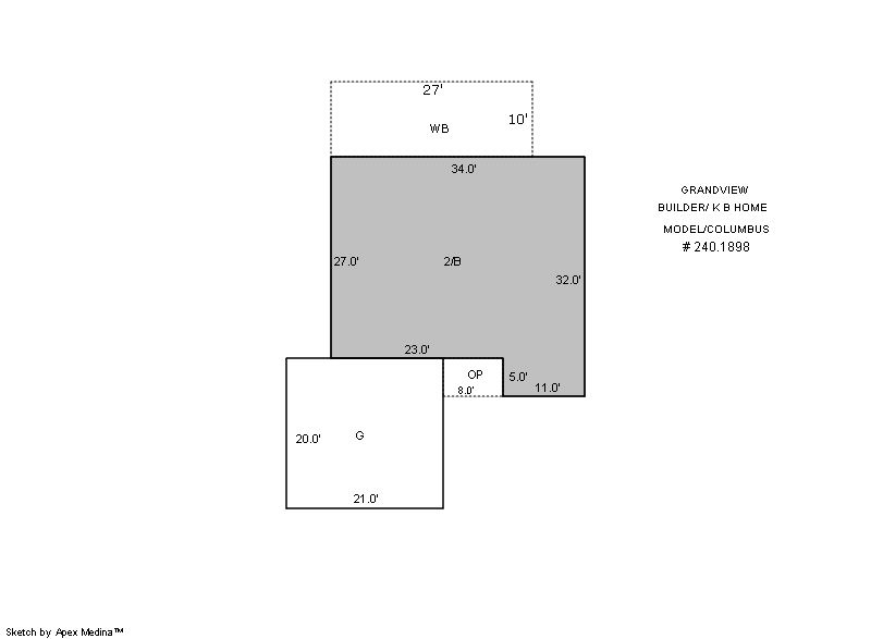
Building 1

AccountNo Building ID Occupancy
R1276802 1 Single Family Residential


ID Type NBHD Occupancy % Complete Bedrooms Baths
1 Residential 3E2010 Single Family Residential 100 4 3.00


ID Exterior Roof Cover Interior HVAC Perimeter Units Unit Type Make
1 Frame Hardboard Composition Shingle Drywall Forced Air 0 0 NA NA


ID Square Ft Condo SF Total Basement SF Finished Basement SF Garage SF Carport SF Balcony SF Porch SF
1 1,946 0 973 0 420 0 270 40


Built As Details for Building 1
ID Built As Square Ft Year Built Stories Length Width
1.00 2 Story 1,946 2004 2 0 0


Additional Details for Building 1
ID Detail Type Description Units
1 Add On Fireplace Gas 1.00
1 Balcony Wood Wood Fin 270.00
1 Basement Total Basement SF 973.00
1 Fixture Full Bath 2.00
1 Fixture Half Bath 1.00
1 Garage Attached 420.00
1 Porch Slab Roof Ceil 40.00
1 Rough In Rough In 1.00





Account Parcel Account Type Tax Year Buildings Actual Value Local Govt Assessed Value School Assessed Value
R1276802 146719101048 Residential 2026 1 584,614 36,540 41,210

Type Code Description Actual Value Local Govt Assessed Value School Assessed Value Acres Land SqFt
Improvement 1212 SINGLE FAMILY RESIDENTIAL IMPROVEMENTS 458,614 28,660 32,330 0.000 0
Land 1112 SINGLE FAMILY RESIDENTIAL-LAND 126,000 7,880 8,880 0.139 6,063
Totals - - 584,614 36,540 41,210 0.139 6,063


Account Parcel Account Type Tax Year Buildings Actual Value Local Govt Assessed Value School Assessed Value
R1276802 146719101048 Residential 2026 1 584,614 36,540 41,210

Tax Area District ID District Name Local Govt
Mill Levy
School
Mill Levy
Estimated
Taxes
3544 1204 BOULDER VALLEY CONSERVATION 0.000 0.000 $0.00
3544 0404 ERIE TOWN 13.237 0.000 $483.68
3544 1050 HIGH PLAINS LIBRARY 3.044 0.000 $111.23
3544 0512 MOUNTAIN VIEW FIRE PROTECTION DISTRICT 16.342 0.000 $597.14
3544 0301 NORTHERN COLORADO WATER (NCW) 1.000 0.000 $36.54
3544 1360 RTD 0.000 0.000 $0.00
3544 0213 SCHOOL DIST RE1J-LONGMONT 0.000 57.717 $2,378.52
3544 0100 WELD COUNTY 15.956 0.000 $583.03
Total - - 49.579 57.717 $4,190.13


The estimate of tax is based on the prior year mill levy and the 2025 projected assessment rates. Mill levies and tax estimates will be updated yearly on December 22nd for the current year. Additional information can be found at https://assessor.weld.gov










Select Reports to Print: