Account: R1307602

April 5, 2026

Account Parcel Account Type Tax Year Buildings Actual Value Local Govt Assessed Value School Assessed Value
R1307602 146719405027 Residential 2026 1 690,000 43,130 48,640

Legal
ERI GV L27 BLK5 GRANDVIEW

Subdivision Block Lot Land Economic Area
GRANDVIEW FINAL PLAT 5 27 GRANDVIEW

Property Address Property City Section Township Range
627 GRIMSON PL ERIE 19 01 68




Account Parcel Account Type Tax Year Buildings Actual Value Local Govt Assessed Value School Assessed Value
R1307602 146719405027 Residential 2026 1 690,000 43,130 48,640

Account Owner Name Address
R1307602 SPARKS PATRICIA 627 GRIMSON PL ERIE, CO 805168498
R1307602 SPARKS DREW


Account Parcel Account Type Tax Year Buildings Actual Value Local Govt Assessed Value School Assessed Value
R1307602 146719405027 Residential 2026 1 690,000 43,130 48,640

Reception Rec Date Type Grantor Grantee Doc Fee Sale Date Sale Price
2903862 NA SUB SUBDIVISION GRANDVIEW 0.00 NA 0
3298267 06-28-2005 WD KB HOME COLORADO INC GIBSON SHIRANI & 25.67 06-21-2005 256,700
4482378 04-19-2019 SWD GIBSON JOHN; GIBSON SHIRANI SKOBREV RACHEL POSEDENTI; SKOBREV ARTEM 48.40 04-17-2019 484,000
4628330 09-10-2020 WD SKOBREV RACHEL POSEDENTI; SKOBREV ARTEM BAILEY FAMILY TRUST 51.00 08-31-2020 510,000
5008852 01-31-2025 WD BAILEY FAMILY TRUST SPARKS PATRICIA; SPARKS DREW 70.00 01-29-2025 700,000



Account Parcel Account Type Tax Year Buildings Actual Value Local Govt Assessed Value School Assessed Value
R1307602 146719405027 Residential 2026 1 690,000 43,130 48,640

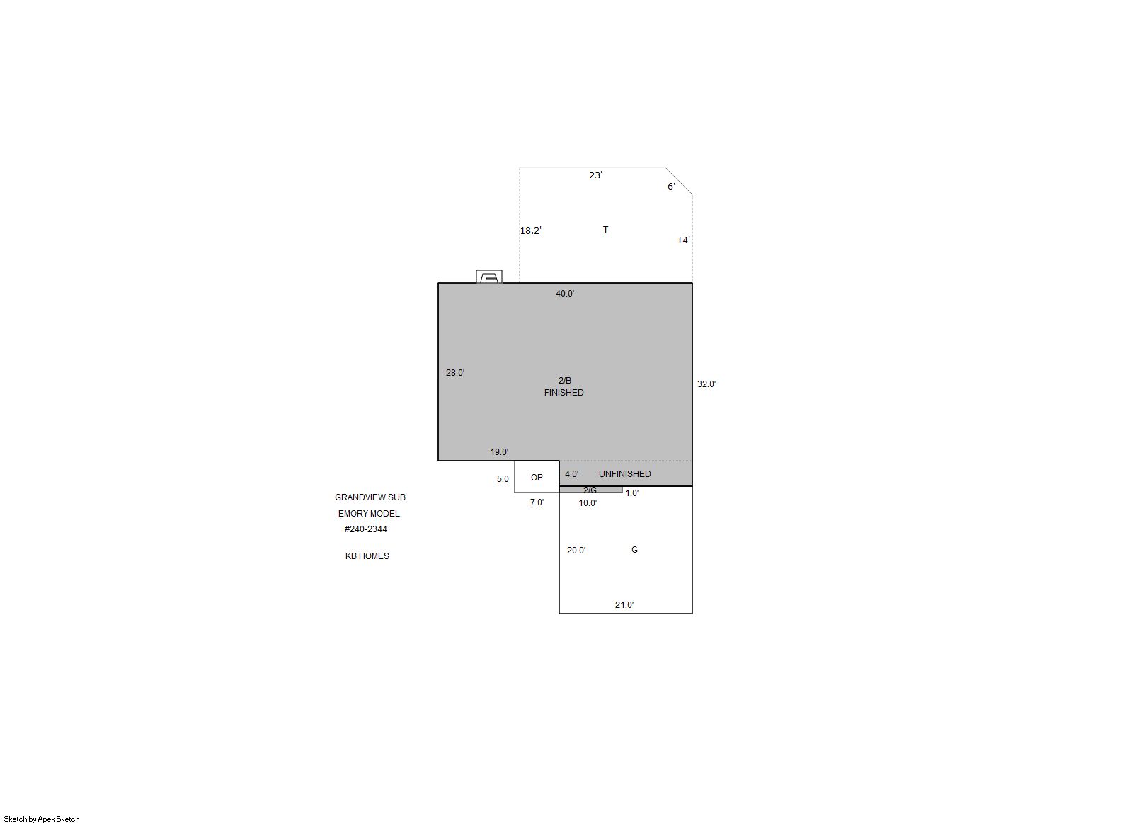
Building 1

AccountNo Building ID Occupancy
R1307602 1 Single Family Residential


ID Type NBHD Occupancy % Complete Bedrooms Baths
1 Residential 3E2010 Single Family Residential 100 4 4.00


ID Exterior Roof Cover Interior HVAC Perimeter Units Unit Type Make
1 Frame Hardboard Composition Shingle Drywall Central Air to Air 310 0 NA NA


ID Square Ft Condo SF Total Basement SF Finished Basement SF Garage SF Carport SF Balcony SF Porch SF
1 2,418 0 1,204 1,120 420 0 0 35


Built As Details for Building 1
ID Built As Square Ft Year Built Stories Length Width
1.00 2 Story 2,418 2005 2 0 0


Additional Details for Building 1
ID Detail Type Description Units
1 Add On Fireplace Gas 1.00
1 Basement Finished 1120.00
1 Basement Total Basement SF 1204.00
1 Fixture Full Bath 3.00
1 Fixture Half Bath 1.00
1 Fixture Wet Bar 1.00
1 Garage Attached 420.00
1 Porch Open Slab 488.00
1 Porch Slab Roof Ceil 35.00





Account Parcel Account Type Tax Year Buildings Actual Value Local Govt Assessed Value School Assessed Value
R1307602 146719405027 Residential 2026 1 690,000 43,130 48,640

Type Code Description Actual Value Local Govt Assessed Value School Assessed Value Acres Land SqFt
Improvement 1212 SINGLE FAMILY RESIDENTIAL IMPROVEMENTS 564,000 35,250 39,760 0.000 0
Land 1112 SINGLE FAMILY RESIDENTIAL-LAND 126,000 7,880 8,880 0.228 9,932
Totals - - 690,000 43,130 48,640 0.228 9,932


Account Parcel Account Type Tax Year Buildings Actual Value Local Govt Assessed Value School Assessed Value
R1307602 146719405027 Residential 2026 1 690,000 43,130 48,640

Tax Area District ID District Name Local Govt
Mill Levy
School
Mill Levy
Estimated
Taxes
3544 1204 BOULDER VALLEY CONSERVATION 0.000 0.000 $0.00
3544 0404 ERIE TOWN 13.237 0.000 $570.91
3544 1050 HIGH PLAINS LIBRARY 3.044 0.000 $131.29
3544 0512 MOUNTAIN VIEW FIRE PROTECTION DISTRICT 16.342 0.000 $704.83
3544 0301 NORTHERN COLORADO WATER (NCW) 1.000 0.000 $43.13
3544 1360 RTD 0.000 0.000 $0.00
3544 0213 SCHOOL DIST RE1J-LONGMONT 0.000 57.717 $2,807.35
3544 0100 WELD COUNTY 15.956 0.000 $688.18
Total - - 49.579 57.717 $4,945.70


The estimate of tax is based on the prior year mill levy and the 2025 projected assessment rates. Mill levies and tax estimates will be updated yearly on December 22nd for the current year. Additional information can be found at https://assessor.weld.gov










Select Reports to Print: