Account: R1308202

April 5, 2026

Account Parcel Account Type Tax Year Buildings Actual Value Local Govt Assessed Value School Assessed Value
R1308202 146719405033 Residential 2026 1 573,990 35,880 40,460

Legal
ERI GV L33 BLK5 GRANDVIEW

Subdivision Block Lot Land Economic Area
GRANDVIEW FINAL PLAT 5 33 GRANDVIEW

Property Address Property City Section Township Range
640 GRIMSON PL ERIE 19 01 68




Account Parcel Account Type Tax Year Buildings Actual Value Local Govt Assessed Value School Assessed Value
R1308202 146719405033 Residential 2026 1 573,990 35,880 40,460

Account Owner Name Address
R1308202 LAUREN DONTSOW REVOCABLE LIVING TRUST 640 GRIMSON PL ERIE, CO 805168498


Account Parcel Account Type Tax Year Buildings Actual Value Local Govt Assessed Value School Assessed Value
R1308202 146719405033 Residential 2026 1 573,990 35,880 40,460

Reception Rec Date Type Grantor Grantee Doc Fee Sale Date Sale Price
2903862 NA SUB SUBDIVISION GRANDVIEW 0.00 NA 0
3329402 10-06-2005 WD KB HOME COLORADO INC STARNES GARY L 22.41 09-27-2005 224,100
3367060 03-02-2006 QCN STARNES GARY L RIFE CINDERELLA L 0.00 02-18-2006 0
3394944 06-09-2006 QCN RIFE CINDERELLA L RIFE CINDERELLA L & 0.00 06-01-2006 0
3711531 08-12-2010 QCN STARNES GARY L STARNES GARY L 0.00 08-10-2010 0
3978137 11-14-2013 WDE STARNES GARY L DONTSOW RYAN 27.10 11-13-2013 271,000
4783890 12-09-2021 QCN DONTSOW RYAN DONTSOW LAUREN 0.00 12-07-2021 0
5013295 02-27-2025 QCN DONTSOW LAUREN LAUREN DONTSOW REVOCABLE LIVING TRUST 0.00 12-19-2024 0



Account Parcel Account Type Tax Year Buildings Actual Value Local Govt Assessed Value School Assessed Value
R1308202 146719405033 Residential 2026 1 573,990 35,880 40,460

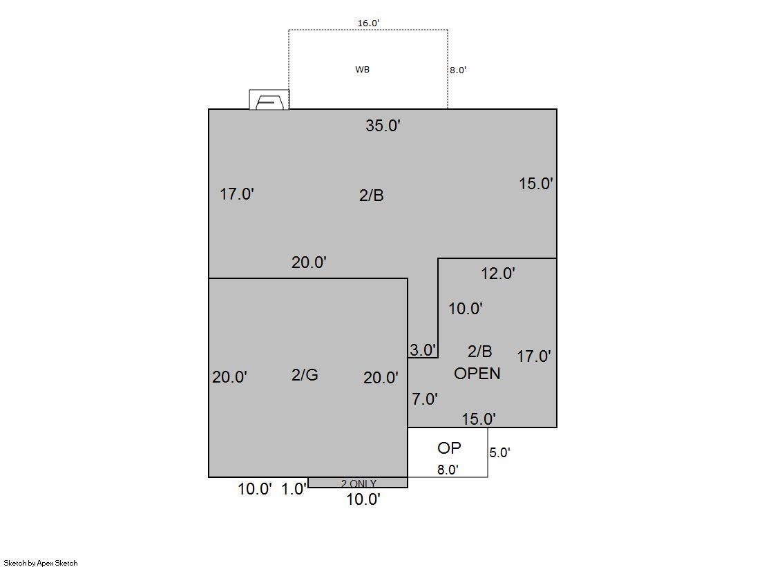
Building 1

AccountNo Building ID Occupancy
R1308202 1 Single Family Residential


ID Type NBHD Occupancy % Complete Bedrooms Baths
1 Residential 3E2010 Single Family Residential 100 4 3.00


ID Exterior Roof Cover Interior HVAC Perimeter Units Unit Type Make
1 Frame Hardboard Composition Shingle Drywall Central Air to Air 0 0 NA NA


ID Square Ft Condo SF Total Basement SF Finished Basement SF Garage SF Carport SF Balcony SF Porch SF
1 1,825 0 820 0 400 0 128 40


Built As Details for Building 1
ID Built As Square Ft Year Built Stories Length Width
1.00 2 Story 1,825 2005 2 0 0


Additional Details for Building 1
ID Detail Type Description Units
1 Add On Fireplace Gas 1.00
1 Balcony Wood Wood Fin 128.00
1 Basement Total Basement SF 820.00
1 Fixture Full Bath 2.00
1 Fixture Half Bath 1.00
1 Garage Built In 400.00
1 Porch Slab Roof Ceil 40.00
1 Rough In Rough In 1.00





Account Parcel Account Type Tax Year Buildings Actual Value Local Govt Assessed Value School Assessed Value
R1308202 146719405033 Residential 2026 1 573,990 35,880 40,460

Type Code Description Actual Value Local Govt Assessed Value School Assessed Value Acres Land SqFt
Improvement 1212 SINGLE FAMILY RESIDENTIAL IMPROVEMENTS 447,990 28,000 31,580 0.000 0
Land 1112 SINGLE FAMILY RESIDENTIAL-LAND 126,000 7,880 8,880 0.115 5,000
Totals - - 573,990 35,880 40,460 0.115 5,000


Account Parcel Account Type Tax Year Buildings Actual Value Local Govt Assessed Value School Assessed Value
R1308202 146719405033 Residential 2026 1 573,990 35,880 40,460

Tax Area District ID District Name Local Govt
Mill Levy
School
Mill Levy
Estimated
Taxes
3544 1204 BOULDER VALLEY CONSERVATION 0.000 0.000 $0.00
3544 0404 ERIE TOWN 13.237 0.000 $474.94
3544 1050 HIGH PLAINS LIBRARY 3.044 0.000 $109.22
3544 0512 MOUNTAIN VIEW FIRE PROTECTION DISTRICT 16.342 0.000 $586.35
3544 0301 NORTHERN COLORADO WATER (NCW) 1.000 0.000 $35.88
3544 1360 RTD 0.000 0.000 $0.00
3544 0213 SCHOOL DIST RE1J-LONGMONT 0.000 57.717 $2,335.23
3544 0100 WELD COUNTY 15.956 0.000 $572.50
Total - - 49.579 57.717 $4,114.12


The estimate of tax is based on the prior year mill levy and the 2025 projected assessment rates. Mill levies and tax estimates will be updated yearly on December 22nd for the current year. Additional information can be found at https://assessor.weld.gov










Select Reports to Print: