Account: R1311402

April 1, 2026

Account Parcel Account Type Tax Year Buildings Actual Value Local Govt Assessed Value School Assessed Value
R1311402 146719406016 Residential 2026 1 542,962 33,940 38,280

Legal
ERI GV L16 BLK6 GRANDVIEW

Subdivision Block Lot Land Economic Area
GRANDVIEW FINAL PLAT 6 16 GRANDVIEW

Property Address Property City Section Township Range
879 TURPIN WAY ERIE 19 01 68




Account Parcel Account Type Tax Year Buildings Actual Value Local Govt Assessed Value School Assessed Value
R1311402 146719406016 Residential 2026 1 542,962 33,940 38,280

Account Owner Name Address
R1311402 DAHARB DREW O 505 ZENITH AVE LAFAYETTE, CO 800263105
R1311402 DAHARB KIMBERLY H


Account Parcel Account Type Tax Year Buildings Actual Value Local Govt Assessed Value School Assessed Value
R1311402 146719406016 Residential 2026 1 542,962 33,940 38,280

Reception Rec Date Type Grantor Grantee Doc Fee Sale Date Sale Price
2903862 NA SUB SUBDIVISION GRANDVIEW 0.00 NA 0
3215730 09-02-2004 WD KB HOME COLORADO INC BIEGGER ANDREW & 19.97 08-30-2004 199,700
3647839 09-10-2009 WD BIEGGER ANDREW JONES THOMAS D 23.49 09-09-2009 234,900
4253665 11-15-2016 WD JONES THOMAS D; JONES ANNA V COOPER DAHARB DREW O; DAHARB KIMBERLY H 31.50 11-14-2016 315,000



Account Parcel Account Type Tax Year Buildings Actual Value Local Govt Assessed Value School Assessed Value
R1311402 146719406016 Residential 2026 1 542,962 33,940 38,280

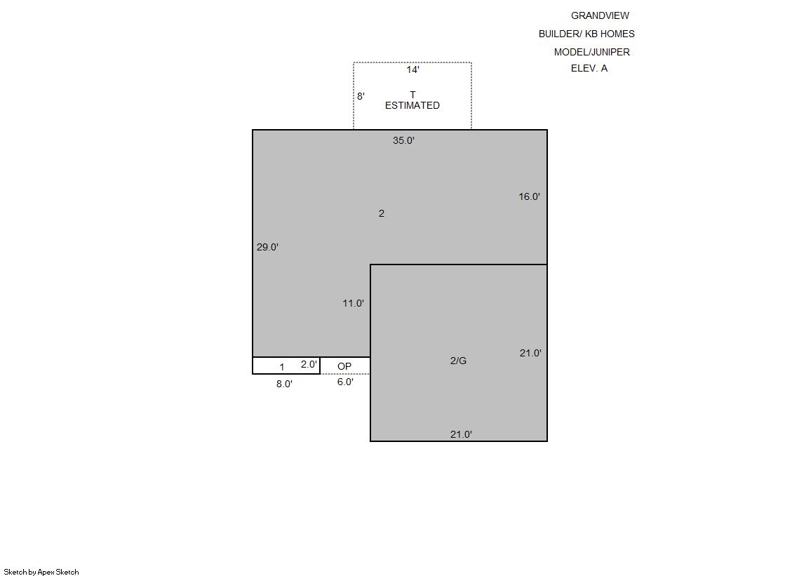
Building 1

AccountNo Building ID Occupancy
R1311402 1 Single Family Residential


ID Type NBHD Occupancy % Complete Bedrooms Baths
1 Residential 3E2010 Single Family Residential 100 3 3.00


ID Exterior Roof Cover Interior HVAC Perimeter Units Unit Type Make
1 Frame Hardboard Composition Shingle Drywall Central Air to Air 272 0 NA NA


ID Square Ft Condo SF Total Basement SF Finished Basement SF Garage SF Carport SF Balcony SF Porch SF
1 1,885 0 0 0 441 0 0 12


Built As Details for Building 1
ID Built As Square Ft Year Built Stories Length Width
1.00 2 Story 1,885 2004 2 0 0


Additional Details for Building 1
ID Detail Type Description Units
1 Add On Fireplace Gas 1.00
1 Fixture Full Bath 2.00
1 Fixture Half Bath 1.00
1 Garage Built In 441.00
1 Porch Open Slab 112.00
1 Porch Slab Roof Ceil 12.00





Account Parcel Account Type Tax Year Buildings Actual Value Local Govt Assessed Value School Assessed Value
R1311402 146719406016 Residential 2026 1 542,962 33,940 38,280

Type Code Description Actual Value Local Govt Assessed Value School Assessed Value Acres Land SqFt
Improvement 1212 SINGLE FAMILY RESIDENTIAL IMPROVEMENTS 416,962 26,060 29,400 0.000 0
Land 1112 SINGLE FAMILY RESIDENTIAL-LAND 126,000 7,880 8,880 0.115 5,000
Totals - - 542,962 33,940 38,280 0.115 5,000


Account Parcel Account Type Tax Year Buildings Actual Value Local Govt Assessed Value School Assessed Value
R1311402 146719406016 Residential 2026 1 542,962 33,940 38,280

Tax Area District ID District Name Local Govt
Mill Levy
School
Mill Levy
Estimated
Taxes
3544 1204 BOULDER VALLEY CONSERVATION 0.000 0.000 $0.00
3544 0404 ERIE TOWN 13.237 0.000 $449.26
3544 1050 HIGH PLAINS LIBRARY 3.044 0.000 $103.31
3544 0512 MOUNTAIN VIEW FIRE PROTECTION DISTRICT 16.342 0.000 $554.65
3544 0301 NORTHERN COLORADO WATER (NCW) 1.000 0.000 $33.94
3544 1360 RTD 0.000 0.000 $0.00
3544 0213 SCHOOL DIST RE1J-LONGMONT 0.000 57.717 $2,209.41
3544 0100 WELD COUNTY 15.956 0.000 $541.55
Total - - 49.579 57.717 $3,892.12


The estimate of tax is based on the prior year mill levy and the 2025 projected assessment rates. Mill levies and tax estimates will be updated yearly on December 22nd for the current year. Additional information can be found at https://assessor.weld.gov










Select Reports to Print: