Account: R1312202
April 4, 2026
| Account | Parcel | Account Type | Tax Year | Buildings | Actual Value | Local Govt Assessed Value | School Assessed Value |
|---|---|---|---|---|---|---|---|
| R1312202 | 146719406024 | Residential | 2026 | 1 | 522,197 | 32,640 | 36,810 |
| Legal |
|---|
| ERI GV L24 BLK6 GRANDVIEW |
| Subdivision | Block | Lot | Land Economic Area |
|---|---|---|---|
| GRANDVIEW FINAL PLAT | 6 | 24 | GRANDVIEW |
| Property Address | Property City | Section | Township | Range |
|---|---|---|---|---|
| 775 TURPIN WAY | ERIE | 19 | 01 | 68 |
| Account | Parcel | Account Type | Tax Year | Buildings | Actual Value | Local Govt Assessed Value | School Assessed Value |
|---|---|---|---|---|---|---|---|
| R1312202 | 146719406024 | Residential | 2026 | 1 | 522,197 | 32,640 | 36,810 |
| Account | Owner Name | Address |
|---|---|---|
| R1312202 | BEHNKE TRUST | 775 TURPIN WAY ERIE, CO 805168497 |
| Account | Parcel | Account Type | Tax Year | Buildings | Actual Value | Local Govt Assessed Value | School Assessed Value |
|---|---|---|---|---|---|---|---|
| R1312202 | 146719406024 | Residential | 2026 | 1 | 522,197 | 32,640 | 36,810 |
| Reception | Rec Date | Type | Grantor | Grantee | Doc Fee | Sale Date | Sale Price |
|---|---|---|---|---|---|---|---|
| 2903862 | NA | SUB | SUBDIVISION | GRANDVIEW | 0.00 | NA | 0 |
| 3266030 | 03-07-2005 | WD | KB HOME COLORADO INC | INTRATER BRADLEY | 21.27 | 02-28-2005 | 212,700 |
| 3639351 | 07-30-2009 | WD | INTRATER BRADLEY | PUCKETT BRENDAN A | 21.99 | 07-27-2009 | 219,900 |
| 4205846 | 05-24-2016 | WD | PUCKETT BRENDAN A; PUCKETT KELLY Q | BEHNKE JANE | 32.49 | 05-18-2016 | 324,900 |
| 5003503 | 01-02-2025 | DN | BEHNKE JANE | BEHNKE TRUST | 0.00 | 01-02-2024 | 0 |
*If the hyperlink for the reception number does not work, try a manual search in the Clerk and Recorder records. Use the Grantor or Grantee in your search.
| Account | Parcel | Account Type | Tax Year | Buildings | Actual Value | Local Govt Assessed Value | School Assessed Value |
|---|---|---|---|---|---|---|---|
| R1312202 | 146719406024 | Residential | 2026 | 1 | 522,197 | 32,640 | 36,810 |
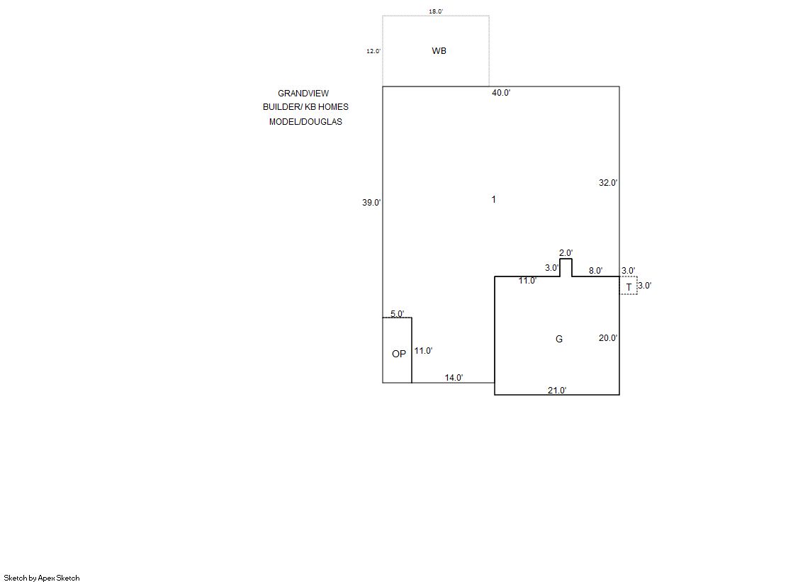
Building 1
| AccountNo | Building ID | Occupancy |
|---|---|---|
| R1312202 | 1 | Single Family Residential |
| ID | Type | NBHD | Occupancy | % Complete | Bedrooms | Baths |
|---|---|---|---|---|---|---|
| 1 | Residential | 3E2010 | Single Family Residential | 100 | 3 | 2.00 |
| ID | Exterior | Roof Cover | Interior | HVAC | Perimeter | Units | Unit Type | Make |
|---|---|---|---|---|---|---|---|---|
| 1 | Frame Hardboard | Composition Shingle | Drywall | Forced Air | 186 | 0 | NA | NA |
| ID | Square Ft | Condo SF | Total Basement SF | Finished Basement SF | Garage SF | Carport SF | Balcony SF | Porch SF |
|---|---|---|---|---|---|---|---|---|
| 1 | 1,561 | 0 | 0 | 0 | 426 | 0 | 216 | 55 |
| ID | Built As | Square Ft | Year Built | Stories | Length | Width |
|---|---|---|---|---|---|---|
| 1.00 | Ranch 1 Story | 1,561 | 2004 | 1 | 0 | 0 |
| ID | Detail Type | Description | Units |
|---|---|---|---|
| 1 | Add On | Fireplace Gas | 1.00 |
| 1 | Balcony | Wood Wood Fin | 216.00 |
| 1 | Fixture | Full Bath | 2.00 |
| 1 | Garage | Attached | 426.00 |
| 1 | Porch | Open Slab | 9.00 |
| 1 | Porch | Slab Roof Ceil | 55.00 |
| Account | Parcel | Account Type | Tax Year | Buildings | Actual Value | Local Govt Assessed Value | School Assessed Value |
|---|---|---|---|---|---|---|---|
| R1312202 | 146719406024 | Residential | 2026 | 1 | 522,197 | 32,640 | 36,810 |
| Type | Code | Description | Actual Value | Local Govt Assessed Value | School Assessed Value | Acres | Land SqFt |
|---|---|---|---|---|---|---|---|
| Improvement | 1212 | SINGLE FAMILY RESIDENTIAL IMPROVEMENTS | 396,197 | 24,760 | 27,930 | 0.000 | 0 |
| Land | 1112 | SINGLE FAMILY RESIDENTIAL-LAND | 126,000 | 7,880 | 8,880 | 0.115 | 5,000 |
| Totals | - | - | 522,197 | 32,640 | 36,810 | 0.115 | 5,000 |
Comparable sales for your Residential or Commercial property may be found using our SALES SEARCH TOOL
Values are updated annually on May 1st for Real Property and June 15th for Personal Property and Oil and Gas.
| Account | Parcel | Account Type | Tax Year | Buildings | Actual Value | Local Govt Assessed Value | School Assessed Value |
|---|---|---|---|---|---|---|---|
| R1312202 | 146719406024 | Residential | 2026 | 1 | 522,197 | 32,640 | 36,810 |
| Tax Area | District ID | District Name | Local Govt Mill Levy |
School Mill Levy |
Estimated Taxes |
|---|---|---|---|---|---|
| 3544 | 1204 | BOULDER VALLEY CONSERVATION | 0.000 | 0.000 | $0.00 |
| 3544 | 0404 | ERIE TOWN | 13.237 | 0.000 | $432.06 |
| 3544 | 1050 | HIGH PLAINS LIBRARY | 3.044 | 0.000 | $99.36 |
| 3544 | 0512 | MOUNTAIN VIEW FIRE PROTECTION DISTRICT | 16.342 | 0.000 | $533.40 |
| 3544 | 0301 | NORTHERN COLORADO WATER (NCW) | 1.000 | 0.000 | $32.64 |
| 3544 | 1360 | RTD | 0.000 | 0.000 | $0.00 |
| 3544 | 0213 | SCHOOL DIST RE1J-LONGMONT | 0.000 | 57.717 | $2,124.56 |
| 3544 | 0100 | WELD COUNTY | 15.956 | 0.000 | $520.80 |
| Total | - | - | 49.579 | 57.717 | $3,742.82 |
The estimate of tax is based on the prior year mill levy and the 2025 projected assessment rates. Mill levies and tax estimates will be updated yearly on December 22nd for the current year. Additional information can be found at https://assessor.weld.gov


