Account: R1321402

April 4, 2026

Account Parcel Account Type Tax Year Buildings Actual Value Local Govt Assessed Value School Assessed Value
R1321402 131325411012 Residential 2026 1 474,625 29,660 33,460

Legal
FRE CS L12 BLK6 COUNTRYSIDE

Subdivision Block Lot Land Economic Area
COUNTRYSIDE SUB 6 12 COUNTRYSIDE SUB

Property Address Property City Section Township Range
7154 HIGH ST FREDERICK 25 02 68




Account Parcel Account Type Tax Year Buildings Actual Value Local Govt Assessed Value School Assessed Value
R1321402 131325411012 Residential 2026 1 474,625 29,660 33,460

Account Owner Name Address
R1321402 BROWN DARREN G 7154 HIGH ST FREDERICK, CO 805045644
R1321402 BROWN PAUL M


Account Parcel Account Type Tax Year Buildings Actual Value Local Govt Assessed Value School Assessed Value
R1321402 131325411012 Residential 2026 1 474,625 29,660 33,460

Reception Rec Date Type Grantor Grantee Doc Fee Sale Date Sale Price
2885078 NA SUB SUBDIVISION COUNTRYSIDE 0.00 NA 0
2890805 10-10-2001 SWD CLEAR CREEK 48 LLC CENTEX HOMES 246.40 10-03-2001 2,464,000
3144198 01-13-2004 SWD CENTEX HOMES BROWN DARREN G & 21.69 12-29-2003 216,900



Account Parcel Account Type Tax Year Buildings Actual Value Local Govt Assessed Value School Assessed Value
R1321402 131325411012 Residential 2026 1 474,625 29,660 33,460

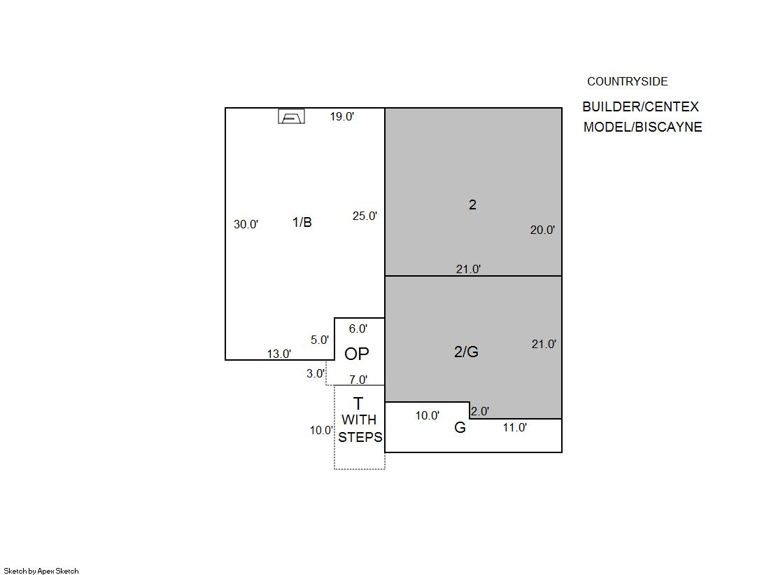
Building 1

AccountNo Building ID Occupancy
R1321402 1 Single Family Residential


ID Type NBHD Occupancy % Complete Bedrooms Baths
1 Residential 3K2024 Single Family Residential 100 3 3.00


ID Exterior Roof Cover Interior HVAC Perimeter Units Unit Type Make
1 Frame Hardboard Composition Shingle Drywall Forced Air 0 0 NA NA


ID Square Ft Condo SF Total Basement SF Finished Basement SF Garage SF Carport SF Balcony SF Porch SF
1 1,717 0 540 0 441 0 0 60


Built As Details for Building 1
ID Built As Square Ft Year Built Stories Length Width
1.00 2 Story 1,717 2002 2 0 0


Additional Details for Building 1
ID Detail Type Description Units
1 Add On Fireplace Gas 1.00
1 Basement Total Basement SF 540.00
1 Fixture Full Bath 2.00
1 Fixture Half Bath 1.00
1 Garage Attached 441.00
1 Porch Slab Roof Ceil 51.00
1 Porch Slab w/Steps 60.00





Account Parcel Account Type Tax Year Buildings Actual Value Local Govt Assessed Value School Assessed Value
R1321402 131325411012 Residential 2026 1 474,625 29,660 33,460

Type Code Description Actual Value Local Govt Assessed Value School Assessed Value Acres Land SqFt
Improvement 1212 SINGLE FAMILY RESIDENTIAL IMPROVEMENTS 354,625 22,160 25,000 0.000 0
Land 1112 SINGLE FAMILY RESIDENTIAL-LAND 120,000 7,500 8,460 0.187 8,125
Totals - - 474,625 29,660 33,460 0.187 8,125


Account Parcel Account Type Tax Year Buildings Actual Value Local Govt Assessed Value School Assessed Value
R1321402 131325411012 Residential 2026 1 474,625 29,660 33,460

Tax Area District ID District Name Local Govt
Mill Levy
School
Mill Levy
Estimated
Taxes
1459 0900 CARBON VALLEY REC 4.427 0.000 $131.30
1459 0408 FREDERICK TOWN 6.555 0.000 $194.42
1459 0507 FREDERICK-FIRESTONE FIRE 15.559 0.000 $461.48
1459 1050 HIGH PLAINS LIBRARY 3.044 0.000 $90.29
1459 0301 NORTHERN COLORADO WATER (NCW) 1.000 0.000 $29.66
1459 0213 SCHOOL DIST RE1J-LONGMONT 0.000 57.717 $1,931.21
1459 0620 ST VRAIN SANITATION 0.316 0.000 $9.37
1459 0100 WELD COUNTY 15.956 0.000 $473.25
Total - - 46.857 57.717 $3,320.99


The estimate of tax is based on the prior year mill levy and the 2025 projected assessment rates. Mill levies and tax estimates will be updated yearly on December 22nd for the current year. Additional information can be found at https://assessor.weld.gov










Select Reports to Print: