Account: R1363402

April 1, 2026

Account Parcel Account Type Tax Year Buildings Actual Value Local Govt Assessed Value School Assessed Value
R1363402 131104400002 Agricultural 2026 5 435,120 43,840 46,680

Legal
PT SE4 4-2-67 LOT B REC EXEMPT RE-3122 EXC W32.99' OF THE N1196.94' (2.48R2RES) 8727 24 CR WELD 000000000

Subdivision Block Lot Land Economic Area
CENTRAL ECON 4 RURAL

Property Address Property City Section Township Range
8727 COUNTY ROAD 24 WELD 04 02 67




Account Parcel Account Type Tax Year Buildings Actual Value Local Govt Assessed Value School Assessed Value
R1363402 131104400002 Agricultural 2026 5 435,120 43,840 46,680

Account Owner Name Address
R1363402 BOWMAN MATTHEW D 8727 COUNTY ROAD 24 FORT LUPTON, CO 806219709
R1363402 BOWMAN KIM R


Account Parcel Account Type Tax Year Buildings Actual Value Local Govt Assessed Value School Assessed Value
R1363402 131104400002 Agricultural 2026 5 435,120 43,840 46,680

Reception Rec Date Type Grantor Grantee Doc Fee Sale Date Sale Price
2893052 10-18-2001 RE RECORDED EXEMPTION RE-3122 0.00 NA 0
2893052 10-18-2001 RE RE-3122 RE-3122 0.00 10-18-2001 0
2900384 11-14-2001 QCN LUHMAN HAROLD W & LOUISE A LUHMAN HAROLD W & LOUISE A 0.00 10-12-2001 0
3087890 07-25-2003 QCN LUHMAN HAROLD W & LUHMAN HAROLD W & 0.00 07-24-2003 0
3445226 01-03-2007 PRDN LUHMAN HAROLD W & LUHMAN HAROLD W FAMILY TRUST & 0.00 12-27-2006 0
3445228 01-03-2007 PRDN LUHMAM HAROLD W LUHMAN HAROLD W FAMILY TRUST & 0.00 12-27-2006 0
3818326 01-17-2012 TRUN LUHMAN HAROLD W FAMILY TRUST LUHMAN WARREN HAROLD 0.00 01-13-2012 0
3818327 01-17-2012 TRUN LUHMAN HAROLD W FAMILY TRUST DATED DECEMBER 18 200 LUHMAN WARREN HAROLD 0.00 01-11-2012 0
3847487 05-21-2012 PRDN LUHMAN LOUISE A LUHMAN WARREN HAROLD 0.00 05-21-2012 0
3870014 08-30-2012 BSDNE SUTHERLAND GEORGIA ANN SUTHERLAND GEORGIA A FAMILY TRUST 0.00 08-24-2012 0
3870017 08-30-2012 BSDNE SUTHERLAND GEORGIA ANN SUTHERLAND GEORGIA A FAMILY TRUST 0.00 08-24-2012 0
3876378 09-26-2012 BSDN SUTHERLAND GEORGIA ANN SUTHERLAND GEORGIA A FAMILY TRUST 0.00 09-20-2012 0
3887268 11-08-2012 WDE LUHMAN WARREN HAROLD BOWMAN MATTHEW D 85.00 10-15-2012 850,000



Account Parcel Account Type Tax Year Buildings Actual Value Local Govt Assessed Value School Assessed Value
R1363402 131104400002 Agricultural 2026 5 435,120 43,840 46,680

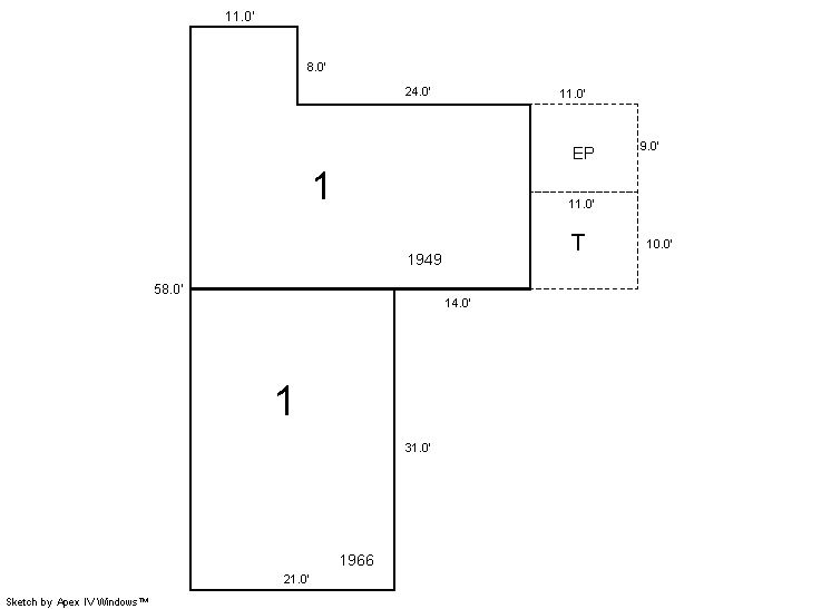
Building 1

AccountNo Building ID Occupancy
R1363402 1 Single Family Residential on Ag


ID Type NBHD Occupancy % Complete Bedrooms Baths
1 Residential 4R1016 Single Family Residential on Ag 100 3 2.00


ID Exterior Roof Cover Interior HVAC Perimeter Units Unit Type Make
1 Frame Masonry Veneer Composition Shingle Drywall Electric Baseboard 0 0 NA NA


ID Square Ft Condo SF Total Basement SF Finished Basement SF Garage SF Carport SF Balcony SF Porch SF
1 1,404 0 0 0 0 0 0 99


Built As Details for Building 1
ID Built As Square Ft Year Built Stories Length Width
1.00 Ranch 1 Story 1,404 1949 1 0 0


Additional Details for Building 1
ID Detail Type Description Units
1 Add On Fireplace Wood 1.00
1 Fixture Full Bath 2.00
1 Porch Encl Solid Wall 99.00
1 Porch Open Slab 110.00



Building 2

AccountNo Building ID Occupancy
R1363402 2 Shed - Utility


ID Type NBHD Occupancy % Complete Bedrooms Baths
2 Out Building NA Shed - Utility 100 0 0.00


ID Exterior Roof Cover Interior HVAC Perimeter Units Unit Type Make
2 NA NA NA None 92 0 NA NA


ID Square Ft Condo SF Total Basement SF Finished Basement SF Garage SF Carport SF Balcony SF Porch SF
2 520 0 0 0 0 0 0 0


Built As Details for Building 2
ID Built As Square Ft Year Built Stories Length Width
2.00 Shed - Utility 520 1959 0 26 20


Additional Details for Building 2
ID Detail Type Description Units
2 Add On OB Loft 520.00



Building 3

AccountNo Building ID Occupancy
R1363402 3 Shed - Utility


ID Type NBHD Occupancy % Complete Bedrooms Baths
3 Out Building NA Shed - Utility 100 0 0.00


ID Exterior Roof Cover Interior HVAC Perimeter Units Unit Type Make
3 NA NA NA None 96 0 NA NA


ID Square Ft Condo SF Total Basement SF Finished Basement SF Garage SF Carport SF Balcony SF Porch SF
3 540 0 0 0 0 0 0 0


Built As Details for Building 3
ID Built As Square Ft Year Built Stories Length Width
3.00 Shed - Utility 540 1951 0 30 18

No Additional Details for Building 3




Building 4

AccountNo Building ID Occupancy
R1363402 4 Shed - Utility


ID Type NBHD Occupancy % Complete Bedrooms Baths
4 Out Building NA Shed - Utility 100 0 0.00


ID Exterior Roof Cover Interior HVAC Perimeter Units Unit Type Make
4 NA NA NA None NA 0 NA NA


ID Square Ft Condo SF Total Basement SF Finished Basement SF Garage SF Carport SF Balcony SF Porch SF
4 2,400 0 0 0 0 0 0 0


Built As Details for Building 4
ID Built As Square Ft Year Built Stories Length Width
4.00 Shed - Utility 2,400 1959 1 0 0

No Additional Details for Building 4




Building 5

AccountNo Building ID Occupancy
R1363402 5 Shed - Hay


ID Type NBHD Occupancy % Complete Bedrooms Baths
5 Out Building NA Shed - Hay 100 0 0.00


ID Exterior Roof Cover Interior HVAC Perimeter Units Unit Type Make
5 NA NA NA None NA 0 NA NA


ID Square Ft Condo SF Total Basement SF Finished Basement SF Garage SF Carport SF Balcony SF Porch SF
5 5,000 0 0 0 0 0 0 0


Built As Details for Building 5
ID Built As Square Ft Year Built Stories Length Width
5.00 Shed - Hay 5,000 2013 1 100 50

No Additional Details for Building 5






Account Parcel Account Type Tax Year Buildings Actual Value Local Govt Assessed Value School Assessed Value
R1363402 131104400002 Agricultural 2026 5 435,120 43,840 46,680

Type Code Description Actual Value Local Govt Assessed Value School Assessed Value Acres Land SqFt
Improvement 4277 FARM/RANCH RESIDENCE-IMPS 354,898 22,180 25,020 0.000 0
Improvement 4279 FARM RANCH SUPPORT BLDGS 23,321 6,300 6,300 0.000 0
Land 4107 SPRINKLER IRRIGATED LAND 32,386 8,740 8,740 40.000 1,742,400
Land 4117 FLOOD IRRIGATED LAND-AGRICULTURAL 24,475 6,610 6,610 27.550 1,200,078
Land 4167 WASTE LAND 40 10 10 6.000 261,360
Totals - - 435,120 43,840 46,680 73.550 3,203,838


Account Parcel Account Type Tax Year Buildings Actual Value Local Govt Assessed Value School Assessed Value
R1363402 131104400002 Agricultural 2026 5 435,120 43,840 46,680

Tax Area District ID District Name Local Govt
Mill Levy
School
Mill Levy
Estimated
Taxes
2258 0700 AIMS JUNIOR COLLEGE 6.313 0.000 $276.76
2258 0305 CENTRAL WELD COUNTY WATER (CWC) 0.000 0.000 $0.00
2258 1050 HIGH PLAINS LIBRARY 3.044 0.000 $133.45
2258 1202 LONGMONT CONSERVATION 0.000 0.000 $0.00
2258 0301 NORTHERN COLORADO WATER (NCW) 1.000 0.000 $43.84
2258 0516 PLATTEVILLE-GILCREST FIRE 7.540 0.000 $330.55
2258 0201 SCHOOL DIST RE1-GILCREST 0.000 15.382 $718.03
2258 0100 WELD COUNTY 15.956 0.000 $699.51
Total - - 33.853 15.382 $2,202.15


The estimate of tax is based on the prior year mill levy and the 2025 projected assessment rates. Mill levies and tax estimates will be updated yearly on December 22nd for the current year. Additional information can be found at https://assessor.weld.gov










Select Reports to Print: