Account: R1378102
April 1, 2026
| Account | Parcel | Account Type | Tax Year | Buildings | Actual Value | Local Govt Assessed Value | School Assessed Value |
|---|---|---|---|---|---|---|---|
| R1378102 | 020127128006 | Residential | 2026 | 1 | 369,680 | 23,100 | 26,060 |
| Legal |
|---|
| L1 THRU 3 BLK16 AND HALF ADJ VAC ALLEYS AND HALF VAC 2ND ST CARR |
| Subdivision | Block | Lot | Land Economic Area |
|---|---|---|---|
| CARR TOWN | 16 | 1 | CARR RESIDENTIAL |
| Property Address | Property City | Section | Township | Range |
|---|---|---|---|---|
| 9614 GRAY AVE | WELD | 27 | 11 | 67 |
| Account | Parcel | Account Type | Tax Year | Buildings | Actual Value | Local Govt Assessed Value | School Assessed Value |
|---|---|---|---|---|---|---|---|
| R1378102 | 020127128006 | Residential | 2026 | 1 | 369,680 | 23,100 | 26,060 |
| Account | Owner Name | Address |
|---|---|---|
| R1378102 | ARMSTRONG DAVIN L | 9614 GRAY AVE CARR, CO 806129405 |
| Account | Parcel | Account Type | Tax Year | Buildings | Actual Value | Local Govt Assessed Value | School Assessed Value |
|---|---|---|---|---|---|---|---|
| R1378102 | 020127128006 | Residential | 2026 | 1 | 369,680 | 23,100 | 26,060 |
| Reception | Rec Date | Type | Grantor | Grantee | Doc Fee | Sale Date | Sale Price |
|---|---|---|---|---|---|---|---|
| 121148 | NA | SUB | SUBDIVISION | CARR | 0.00 | NA | 0 |
| 2892877 | 10-17-2001 | WD | S & J COMPANY | BLACK DONALD ALVIN & JOYCE DEANNE | 12.21 | 10-09-2001 | 122,100 |
| 3876151 | 09-26-2012 | PTDE | BLACK DONALD ALVIN | LONG BEACH MORTGAGE LOAN TRUST | 0.00 | 09-25-2012 | 0 |
| 3925304 | 04-17-2013 | QC | LONG BEACH MORTGAGE LOAN TRUST | GO AMERICA LLC | 2.80 | 03-14-2013 | 28,000 |
| 3940074 | 06-13-2013 | SWD | GO AMERICA LLC | LORENTZEN LARRY L | 4.65 | 05-28-2013 | 46,500 |
| 4040343 | 08-22-2014 | OTH | WELD CO VACATION RESOLUTION | WELD CO VACATION RESOLUTION | 0.00 | 08-22-2014 | 0 |
| 4154705 | 11-02-2015 | WD | LORENTZEN LARRY L | ARMSTRONG DAVIN L | 15.90 | 10-30-2015 | 159,000 |
*If the hyperlink for the reception number does not work, try a manual search in the Clerk and Recorder records. Use the Grantor or Grantee in your search.
| Account | Parcel | Account Type | Tax Year | Buildings | Actual Value | Local Govt Assessed Value | School Assessed Value |
|---|---|---|---|---|---|---|---|
| R1378102 | 020127128006 | Residential | 2026 | 1 | 369,680 | 23,100 | 26,060 |
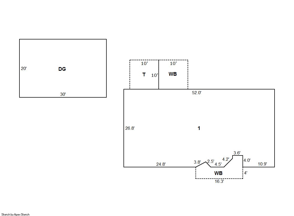
Building 1
| AccountNo | Building ID | Occupancy |
|---|---|---|
| R1378102 | 1 | Single Family Residential |
| ID | Type | NBHD | Occupancy | % Complete | Bedrooms | Baths |
|---|---|---|---|---|---|---|
| 1 | Residential | 7R1002 | Single Family Residential | 100 | 3 | 2.00 |
| ID | Exterior | Roof Cover | Interior | HVAC | Perimeter | Units | Unit Type | Make |
|---|---|---|---|---|---|---|---|---|
| 1 | Frame Hardboard | Composition Shingle | Drywall | Central Air to Air | 165 | 1 | NA | NA |
| ID | Square Ft | Condo SF | Total Basement SF | Finished Basement SF | Garage SF | Carport SF | Balcony SF | Porch SF |
|---|---|---|---|---|---|---|---|---|
| 1 | 1,372 | 0 | 0 | 0 | 600 | 0 | 188 | 100 |
| ID | Built As | Square Ft | Year Built | Stories | Length | Width |
|---|---|---|---|---|---|---|
| 1.00 | Modular 1 Story | 1,372 | 2001 | 1 | 52 | 28 |
| ID | Detail Type | Description | Units |
|---|---|---|---|
| 1 | Balcony | Wood Wood Fin | 188.00 |
| 1 | Fixture | Full Bath | 2.00 |
| 1 | Garage | Detached | 600.00 |
| 1 | Porch | Open Slab | 100.00 |
| Account | Parcel | Account Type | Tax Year | Buildings | Actual Value | Local Govt Assessed Value | School Assessed Value |
|---|---|---|---|---|---|---|---|
| R1378102 | 020127128006 | Residential | 2026 | 1 | 369,680 | 23,100 | 26,060 |
| Type | Code | Description | Actual Value | Local Govt Assessed Value | School Assessed Value | Acres | Land SqFt |
|---|---|---|---|---|---|---|---|
| Improvement | 1212 | SINGLE FAMILY RESIDENTIAL IMPROVEMENTS | 329,491 | 20,590 | 23,230 | 0.000 | 0 |
| Land | 1112 | SINGLE FAMILY RESIDENTIAL-LAND | 40,189 | 2,510 | 2,830 | 0.738 | 32,151 |
| Totals | - | - | 369,680 | 23,100 | 26,060 | 0.738 | 32,151 |
Comparable sales for your Residential or Commercial property may be found using our SALES SEARCH TOOL
Values are updated annually on May 1st for Real Property and June 15th for Personal Property and Oil and Gas.
| Account | Parcel | Account Type | Tax Year | Buildings | Actual Value | Local Govt Assessed Value | School Assessed Value |
|---|---|---|---|---|---|---|---|
| R1378102 | 020127128006 | Residential | 2026 | 1 | 369,680 | 23,100 | 26,060 |
| Tax Area | District ID | District Name | Local Govt Mill Levy |
School Mill Levy |
Estimated Taxes |
|---|---|---|---|---|---|
| 0915 | 0700 | AIMS JUNIOR COLLEGE | 6.313 | 0.000 | $145.83 |
| 0915 | 1050 | HIGH PLAINS LIBRARY | 3.044 | 0.000 | $70.32 |
| 0915 | 0514 | NUNN FIRE | 4.096 | 0.000 | $94.62 |
| 0915 | 0209 | SCHOOL DIST RE9-AULT | 0.000 | 34.176 | $890.63 |
| 0915 | 0100 | WELD COUNTY | 15.956 | 0.000 | $368.58 |
| 0915 | 1200 | WEST GREELEY CONSERVATION | 0.414 | 0.000 | $9.56 |
| Total | - | - | 29.823 | 34.176 | $1,579.54 |
The estimate of tax is based on the prior year mill levy and the 2025 projected assessment rates. Mill levies and tax estimates will be updated yearly on December 22nd for the current year. Additional information can be found at https://assessor.weld.gov


