Account: R1384986
April 5, 2026
| Account | Parcel | Account Type | Tax Year | Buildings | Actual Value | Local Govt Assessed Value | School Assessed Value |
|---|---|---|---|---|---|---|---|
| R1384986 | 080536102008 | Residential | 2026 | 1 | 261,797 | 16,360 | 18,460 |
| Legal |
|---|
| L37 ESPANOLA SUB 36-6-66 AND HALF VAC ALLEY ADJ TO LOT |
| Subdivision | Block | Lot | Land Economic Area |
|---|---|---|---|
| ESPANOLA SUB | 37 | ESPANOLA |
| Property Address | Property City | Section | Township | Range |
|---|---|---|---|---|
| 1504 N 26TH AVE | WELD | 36 | 06 | 66 |
| Account | Parcel | Account Type | Tax Year | Buildings | Actual Value | Local Govt Assessed Value | School Assessed Value |
|---|---|---|---|---|---|---|---|
| R1384986 | 080536102008 | Residential | 2026 | 1 | 261,797 | 16,360 | 18,460 |
| Account | Owner Name | Address |
|---|---|---|
| R1384986 | PLASENCIA-HERNANDEZ CARLOS | 238 61ST AVE GREELEY, CO 806349789 |
| R1384986 | PLASENCIA KARENT |
| Account | Parcel | Account Type | Tax Year | Buildings | Actual Value | Local Govt Assessed Value | School Assessed Value |
|---|---|---|---|---|---|---|---|
| R1384986 | 080536102008 | Residential | 2026 | 1 | 261,797 | 16,360 | 18,460 |
| Reception | Rec Date | Type | Grantor | Grantee | Doc Fee | Sale Date | Sale Price |
|---|---|---|---|---|---|---|---|
| 01940229 | 09-13-1983 | QCN | 0.00 | 01-01-1900 | 0 | ||
| 02405661 | 09-08-1994 | QCN | 0.00 | 08-31-1994 | 0 | ||
| 02405662 | 09-08-1994 | QCN | 0.00 | 08-31-1994 | 0 | ||
| 4573913 | 03-11-2020 | DTHC | SEDILLOS ROSALIE ANNE | FONTES DOLORES MANUEL; GOMEZ EVELYN | 0.00 | 01-16-2019 | 0 |
| 4573915 | 03-11-2020 | PRDN | FONTES ROSALIE ANNE | FONTES DOLORES MANUEL; GOMEZ EVELYN | 0.00 | 03-11-2020 | 0 |
| 4596798 | 06-08-2020 | DTHC | FONTES DOLORES MANUEL | GOMEZ EVELYN | 0.00 | 04-12-2020 | 0 |
| 4688847 | 03-03-2021 | WD | GOMEZ EVELYN | PLASENCIA-HERNANDEZ CARLOS; PLASENCIA KARENT | 21.00 | 03-01-2021 | 210,000 |
| 567919 | NA | SUB | SUBDIVISION | ESPANOLA | 0.00 | NA | 0 |
*If the hyperlink for the reception number does not work, try a manual search in the Clerk and Recorder records. Use the Grantor or Grantee in your search.
| Account | Parcel | Account Type | Tax Year | Buildings | Actual Value | Local Govt Assessed Value | School Assessed Value |
|---|---|---|---|---|---|---|---|
| R1384986 | 080536102008 | Residential | 2026 | 1 | 261,797 | 16,360 | 18,460 |
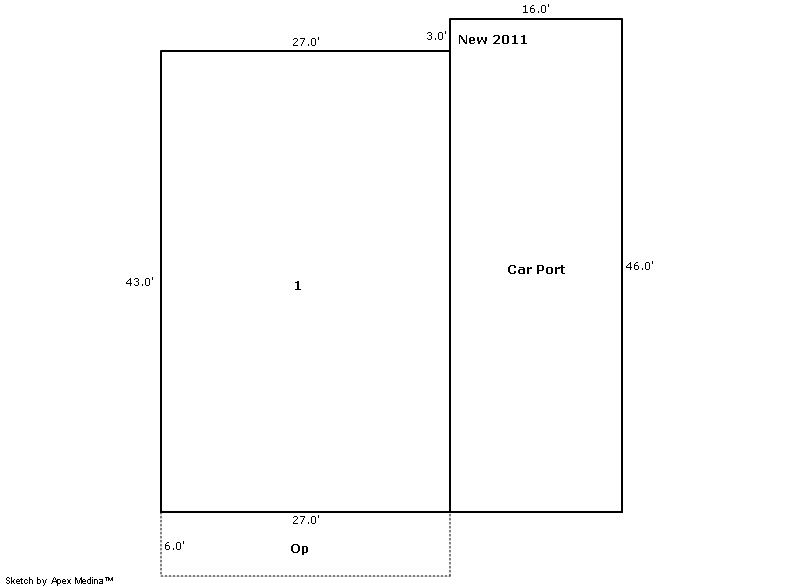
Building 1
| AccountNo | Building ID | Occupancy |
|---|---|---|
| R1384986 | 1 | Single Family Residential |
| ID | Type | NBHD | Occupancy | % Complete | Bedrooms | Baths |
|---|---|---|---|---|---|---|
| 1 | Residential | 6R1038 | Single Family Residential | 100 | 3 | 1.00 |
| ID | Exterior | Roof Cover | Interior | HVAC | Perimeter | Units | Unit Type | Make |
|---|---|---|---|---|---|---|---|---|
| 1 | Frame Masonry Veneer | Composition Shingle | Drywall | Forced Air | 0 | 0 | NA | NA |
| ID | Square Ft | Condo SF | Total Basement SF | Finished Basement SF | Garage SF | Carport SF | Balcony SF | Porch SF |
|---|---|---|---|---|---|---|---|---|
| 1 | 1,161 | 0 | 0 | 0 | 0 | 736 | 0 | 162 |
| ID | Built As | Square Ft | Year Built | Stories | Length | Width |
|---|---|---|---|---|---|---|
| 1.00 | Ranch 1 Story | 1,161 | 1900 | 1 | 0 | 0 |
| ID | Detail Type | Description | Units |
|---|---|---|---|
| 1 | Add On | Shed Frame | 242.00 |
| 1 | Carport | Carport | 736.00 |
| 1 | Fixture | Full Bath | 1.00 |
| 1 | Porch | Slab Roof Ceil | 162.00 |
| Account | Parcel | Account Type | Tax Year | Buildings | Actual Value | Local Govt Assessed Value | School Assessed Value |
|---|---|---|---|---|---|---|---|
| R1384986 | 080536102008 | Residential | 2026 | 1 | 261,797 | 16,360 | 18,460 |
| Type | Code | Description | Actual Value | Local Govt Assessed Value | School Assessed Value | Acres | Land SqFt |
|---|---|---|---|---|---|---|---|
| Improvement | 1212 | SINGLE FAMILY RESIDENTIAL IMPROVEMENTS | 224,797 | 14,050 | 15,850 | 0.000 | 0 |
| Land | 1112 | SINGLE FAMILY RESIDENTIAL-LAND | 37,000 | 2,310 | 2,610 | 0.098 | 4,250 |
| Totals | - | - | 261,797 | 16,360 | 18,460 | 0.098 | 4,250 |
Comparable sales for your Residential or Commercial property may be found using our SALES SEARCH TOOL
Values are updated annually on May 1st for Real Property and June 15th for Personal Property and Oil and Gas.
| Account | Parcel | Account Type | Tax Year | Buildings | Actual Value | Local Govt Assessed Value | School Assessed Value |
|---|---|---|---|---|---|---|---|
| R1384986 | 080536102008 | Residential | 2026 | 1 | 261,797 | 16,360 | 18,460 |
| Tax Area | District ID | District Name | Local Govt Mill Levy |
School Mill Levy |
Estimated Taxes |
|---|---|---|---|---|---|
| 0604 | 0700 | AIMS JUNIOR COLLEGE | 6.313 | 0.000 | $103.28 |
| 0604 | 1050 | HIGH PLAINS LIBRARY | 3.044 | 0.000 | $49.80 |
| 0604 | 0301 | NORTHERN COLORADO WATER (NCW) | 1.000 | 0.000 | $16.36 |
| 0604 | 0206 | SCHOOL DIST 6-GREELEY | 0.000 | 47.615 | $878.97 |
| 0604 | 0100 | WELD COUNTY | 15.956 | 0.000 | $261.04 |
| 0604 | 0519 | WESTERN HILLS FIRE | 10.085 | 0.000 | $164.99 |
| Total | - | - | 36.398 | 47.615 | $1,474.44 |
The estimate of tax is based on the prior year mill levy and the 2025 projected assessment rates. Mill levies and tax estimates will be updated yearly on December 22nd for the current year. Additional information can be found at https://assessor.weld.gov



