Account: R1415586
April 1, 2026
| Account | Parcel | Account Type | Tax Year | Buildings | Actual Value | Local Govt Assessed Value | School Assessed Value |
|---|---|---|---|---|---|---|---|
| R1415586 | 080716306006 | Commercial | 2026 | 1 | 522,364 | 141,040 | 141,040 |
| Legal |
|---|
| WIN 22738 L7 BLK7 |
| Subdivision | Block | Lot | Land Economic Area |
|---|---|---|---|
| WINDSOR TOWN | 7 | 7 | OLD TOWN MAIN |
| Property Address | Property City | Section | Township | Range |
|---|---|---|---|---|
| 616 MAIN ST | WINDSOR | 16 | 06 | 67 |
| Account | Parcel | Account Type | Tax Year | Buildings | Actual Value | Local Govt Assessed Value | School Assessed Value |
|---|---|---|---|---|---|---|---|
| R1415586 | 080716306006 | Commercial | 2026 | 1 | 522,364 | 141,040 | 141,040 |
| Account | Owner Name | Address |
|---|---|---|
| R1415586 | LORD STEPHEN E | 3215 GRAND CANYON ST FORT COLLINS, CO 805259090 |
| R1415586 | LORD VICTORIA R |
| Account | Parcel | Account Type | Tax Year | Buildings | Actual Value | Local Govt Assessed Value | School Assessed Value |
|---|---|---|---|---|---|---|---|
| R1415586 | 080716306006 | Commercial | 2026 | 1 | 522,364 | 141,040 | 141,040 |
| Reception | Rec Date | Type | Grantor | Grantee | Doc Fee | Sale Date | Sale Price |
|---|---|---|---|---|---|---|---|
| 11123 | NA | SUB | SUBDIVISION | WINDSOR | 0.00 | NA | 0 |
| 3196687 | 07-07-2004 | WD | FAGLER ADAM JR & DOROTHY JEAN | MCMILLAN FRANCIS JEAN | 20.10 | 06-25-2004 | 201,000 |
| 3356458 | 01-20-2006 | PTD | MCMILLAN FRANCIS JEAN | WELLS FARGO BANK NA | 0.00 | 01-20-2006 | 0 |
| 3365022 | 02-23-2006 | SWD | WELLS FARGO BANK NA | COTTONWOOD INVESTMENTS LLC | 20.50 | 02-17-2006 | 205,000 |
| 3365024 | 02-23-2006 | WD | COTTONWOOD INVESTMENTS LLC | LORD STEPHEN E & | 20.55 | 02-22-2006 | 205,500 |
*If the hyperlink for the reception number does not work, try a manual search in the Clerk and Recorder records. Use the Grantor or Grantee in your search.
| Account | Parcel | Account Type | Tax Year | Buildings | Actual Value | Local Govt Assessed Value | School Assessed Value |
|---|---|---|---|---|---|---|---|
| R1415586 | 080716306006 | Commercial | 2026 | 1 | 522,364 | 141,040 | 141,040 |
Building 1
| AccountNo | Building ID | Occupancy |
|---|---|---|
| R1415586 | 1 | Retail |
| ID | Type | NBHD | Occupancy | % Complete | Bedrooms | Baths |
|---|---|---|---|---|---|---|
| 1 | Residential | 2W2007 | Retail | 100 | 3 | 1.00 |
| ID | Exterior | Roof Cover | Interior | HVAC | Perimeter | Units | Unit Type | Make |
|---|---|---|---|---|---|---|---|---|
| 1 | Frame Hardboard | Composition Shingle | Drywall | Central Air to Air | 154 | 0 | NA | NA |
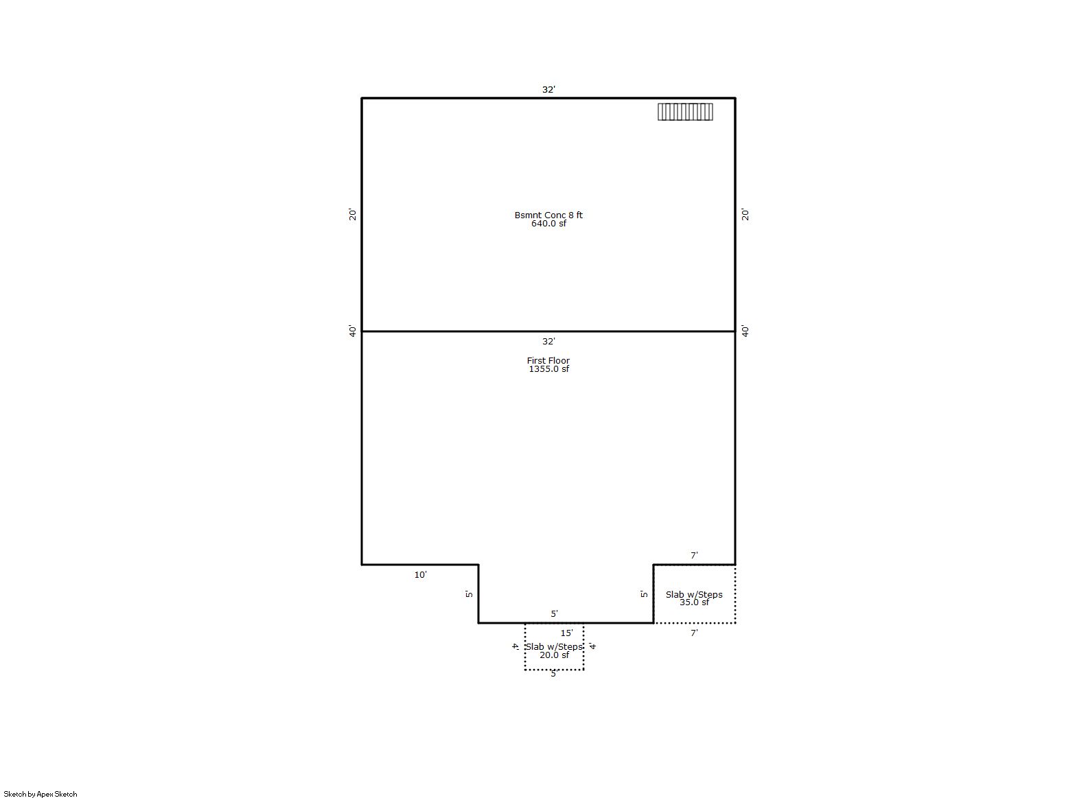
| ID | Square Ft | Condo SF | Total Basement SF | Finished Basement SF | Garage SF | Carport SF | Balcony SF | Porch SF |
|---|---|---|---|---|---|---|---|---|
| 1 | 1,355 | 0 | 640 | 144 | 400 | 0 | 0 | 55 |
| ID | Built As | Square Ft | Year Built | Stories | Length | Width |
|---|---|---|---|---|---|---|
| 1.00 | Ranch 1 Story | 1,355 | 1929 | 1 | 0 | 0 |
| ID | Detail Type | Description | Units |
|---|---|---|---|
| 1 | Add On | Fireplace Gas | 1.00 |
| 1 | Basement | Fair Finish | 144.00 |
| 1 | Basement | Total Basement SF | 640.00 |
| 1 | Fixture | Full Bath | 1.00 |
| 1 | Garage | Detached | 400.00 |
| 1 | Porch | Slab w/Steps | 55.00 |
| Account | Parcel | Account Type | Tax Year | Buildings | Actual Value | Local Govt Assessed Value | School Assessed Value |
|---|---|---|---|---|---|---|---|
| R1415586 | 080716306006 | Commercial | 2026 | 1 | 522,364 | 141,040 | 141,040 |
| Type | Code | Description | Actual Value | Local Govt Assessed Value | School Assessed Value | Acres | Land SqFt |
|---|---|---|---|---|---|---|---|
| Improvement | 2212 | MERCHANDISING-IMPROVEMENT | 408,364 | 110,260 | 110,260 | 0.000 | 0 |
| Land | 2112 | MERCHANDISING-LAND | 114,000 | 30,780 | 30,780 | 0.218 | 9,500 |
| Totals | - | - | 522,364 | 141,040 | 141,040 | 0.218 | 9,500 |
Comparable sales for your Residential or Commercial property may be found using our SALES SEARCH TOOL
Values are updated annually on May 1st for Real Property and June 15th for Personal Property and Oil and Gas.
| Account | Parcel | Account Type | Tax Year | Buildings | Actual Value | Local Govt Assessed Value | School Assessed Value |
|---|---|---|---|---|---|---|---|
| R1415586 | 080716306006 | Commercial | 2026 | 1 | 522,364 | 141,040 | 141,040 |
| Tax Area | District ID | District Name | Local Govt Mill Levy |
School Mill Levy |
Estimated Taxes |
|---|---|---|---|---|---|
| 4536 | 0700 | AIMS JUNIOR COLLEGE | 6.313 | 0.000 | $890.39 |
| 4536 | 1051 | CLEARVIEW LIBRARY | 3.546 | 0.000 | $500.13 |
| 4536 | 0301 | NORTHERN COLORADO WATER (NCW) | 1.000 | 0.000 | $141.04 |
| 4536 | 0204 | SCHOOL DIST RE4-WINDSOR | 0.000 | 46.646 | $6,578.95 |
| 4536 | 0100 | WELD COUNTY | 15.956 | 0.000 | $2,250.43 |
| 4536 | 0833 | WINDSOR DOWNTOWN DEVELOPMENT (WDDA) | 0.000 | 0.000 | $0.00 |
| 4536 | 0428 | WINDSOR TOWN | 12.030 | 0.000 | $1,696.71 |
| 4536 | 0521 | WINDSOR-SEVERANCE FIRE | 8.535 | 0.000 | $1,203.78 |
| Total | - | - | 47.38 | 46.646 | $13,261.43 |
The estimate of tax is based on the prior year mill levy and the 2025 projected assessment rates. Mill levies and tax estimates will be updated yearly on December 22nd for the current year. Additional information can be found at https://assessor.weld.gov


