Account: R1418002
April 1, 2026
| Account | Parcel | Account Type | Tax Year | Buildings | Actual Value | Local Govt Assessed Value | School Assessed Value |
|---|---|---|---|---|---|---|---|
| R1418002 | 105906409033 | Residential | 2026 | 1 | 676,425 | 42,280 | 47,690 |
| Legal |
|---|
| JOH 12RHR LOT 33 ROLLING HILLS RANCH PHASE 12 |
| Subdivision | Block | Lot | Land Economic Area |
|---|---|---|---|
| ROLLING HILLS RANCH PHASE 12 | 33 | ROLLING HILLS RANCH LARGE LOTS |
| Property Address | Property City | Section | Township | Range |
|---|---|---|---|---|
| 1913 GOLDENVUE DR | JOHNSTOWN | 06 | 04 | 67 |
| Account | Parcel | Account Type | Tax Year | Buildings | Actual Value | Local Govt Assessed Value | School Assessed Value |
|---|---|---|---|---|---|---|---|
| R1418002 | 105906409033 | Residential | 2026 | 1 | 676,425 | 42,280 | 47,690 |
| Account | Owner Name | Address |
|---|---|---|
| R1418002 | AGUILAR CHARLES R | 1913 GOLDENVUE DR JOHNSTOWN, CO 805348363 |
| R1418002 | AGUILAR ADRIENNE L |
| Account | Parcel | Account Type | Tax Year | Buildings | Actual Value | Local Govt Assessed Value | School Assessed Value |
|---|---|---|---|---|---|---|---|
| R1418002 | 105906409033 | Residential | 2026 | 1 | 676,425 | 42,280 | 47,690 |
| Reception | Rec Date | Type | Grantor | Grantee | Doc Fee | Sale Date | Sale Price |
|---|---|---|---|---|---|---|---|
| 2918258 | NA | SUB | SUBDIVISION | ROLLING HILLS RANCH PHASE 12 | 0.00 | NA | 0 |
| 3069974 | 06-05-2003 | WD | ROLLING HILLS RANCH LLC | BAESSLER CONSTRUCTION CO INC | 7.49 | 05-30-2003 | 74,900 |
| 3132061 | 12-04-2003 | WD | BAESSLER CONSTRUCTION COMPANY INC | GOODING COLBY & LORI L | 32.13 | 11-20-2003 | 321,300 |
| 3404320 | 07-20-2006 | WD | GOODING COLBY & | PARKS KENETH DALE & | 33.29 | 07-11-2006 | 332,900 |
| 3558912 | 06-05-2008 | QCN | PARKS KENETH DALE & | PARKS KENETH DALE | 0.00 | 05-29-2008 | 0 |
| 3558913 | 06-05-2008 | WD | PARKS KENETH DALE | BROWN GREGORY W & | 32.80 | 05-30-2008 | 328,000 |
| 4290809 | 04-03-2017 | AFFD | BROWN GREGORY W; BROWN DIANNE K | BROWN DIANNE K | 0.00 | 03-29-2017 | 0 |
| 4396877 | 05-07-2018 | WD | BROWN DIANNE K | AGUILAR CHARLES R; AGUILAR ADRIENNE L | 32.40 | 05-04-2018 | 324,000 |
*If the hyperlink for the reception number does not work, try a manual search in the Clerk and Recorder records. Use the Grantor or Grantee in your search.
| Account | Parcel | Account Type | Tax Year | Buildings | Actual Value | Local Govt Assessed Value | School Assessed Value |
|---|---|---|---|---|---|---|---|
| R1418002 | 105906409033 | Residential | 2026 | 1 | 676,425 | 42,280 | 47,690 |
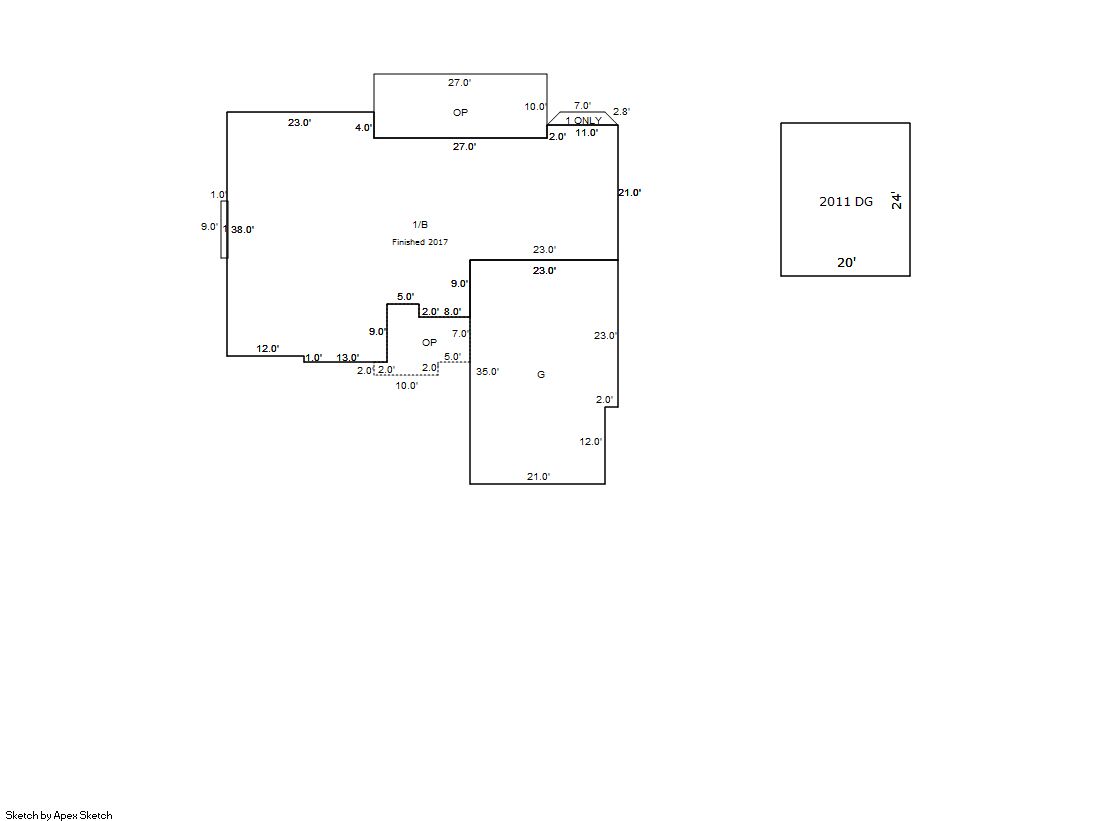
Building 1
| AccountNo | Building ID | Occupancy |
|---|---|---|
| R1418002 | 1 | Single Family Residential |
| ID | Type | NBHD | Occupancy | % Complete | Bedrooms | Baths |
|---|---|---|---|---|---|---|
| 1 | Residential | 0J0071 | Single Family Residential | 100 | 5 | 3.00 |
| ID | Exterior | Roof Cover | Interior | HVAC | Perimeter | Units | Unit Type | Make |
|---|---|---|---|---|---|---|---|---|
| 1 | Frame Stucco | Composition Shingle | Drywall | Central Air to Air | 252 | 0 | NA | NA |
| ID | Square Ft | Condo SF | Total Basement SF | Finished Basement SF | Garage SF | Carport SF | Balcony SF | Porch SF |
|---|---|---|---|---|---|---|---|---|
| 1 | 1,795 | 0 | 1,768 | 1,768 | 480 | 0 | 0 | 391 |
| ID | Built As | Square Ft | Year Built | Stories | Length | Width |
|---|---|---|---|---|---|---|
| 1.00 | Ranch 1 Story | 1,795 | 2003 | 1 | 0 | 0 |
| ID | Detail Type | Description | Units |
|---|---|---|---|
| 1 | Add On | Fireplace Gas | 1.00 |
| 1 | Basement | Finished | 1768.00 |
| 1 | Basement | Total Basement SF | 1768.00 |
| 1 | Fixture | Full Bath | 3.00 |
| 1 | Garage | Attached | 781.00 |
| 1 | Garage | Detached | 480.00 |
| 1 | Porch | Slab Roof Ceil | 391.00 |
| Account | Parcel | Account Type | Tax Year | Buildings | Actual Value | Local Govt Assessed Value | School Assessed Value |
|---|---|---|---|---|---|---|---|
| R1418002 | 105906409033 | Residential | 2026 | 1 | 676,425 | 42,280 | 47,690 |
| Type | Code | Description | Actual Value | Local Govt Assessed Value | School Assessed Value | Acres | Land SqFt |
|---|---|---|---|---|---|---|---|
| Improvement | 1212 | SINGLE FAMILY RESIDENTIAL IMPROVEMENTS | 526,425 | 32,900 | 37,110 | 0.000 | 0 |
| Land | 1112 | SINGLE FAMILY RESIDENTIAL-LAND | 150,000 | 9,380 | 10,580 | 0.432 | 18,826 |
| Totals | - | - | 676,425 | 42,280 | 47,690 | 0.432 | 18,826 |
Comparable sales for your Residential or Commercial property may be found using our SALES SEARCH TOOL
Values are updated annually on May 1st for Real Property and June 15th for Personal Property and Oil and Gas.
| Account | Parcel | Account Type | Tax Year | Buildings | Actual Value | Local Govt Assessed Value | School Assessed Value |
|---|---|---|---|---|---|---|---|
| R1418002 | 105906409033 | Residential | 2026 | 1 | 676,425 | 42,280 | 47,690 |
| Tax Area | District ID | District Name | Local Govt Mill Levy |
School Mill Levy |
Estimated Taxes |
|---|---|---|---|---|---|
| 0568 | 0700 | AIMS JUNIOR COLLEGE | 6.313 | 0.000 | $266.91 |
| 0568 | 0510 | FRONT RANGE FIRE RESCUE FIRE PROTECTION DISTRICT | 11.483 | 0.000 | $485.50 |
| 0568 | 0414 | JOHNSTOWN TOWN | 23.947 | 0.000 | $1,012.48 |
| 0568 | 0306 | LITTLE THOMPSON WATER (LTW) | 0.000 | 0.000 | $0.00 |
| 0568 | 0301 | NORTHERN COLORADO WATER (NCW) | 1.000 | 0.000 | $42.28 |
| 0568 | 0205 | SCHOOL DIST RE5J-JOHNSTOWN | 0.000 | 36.271 | $1,729.76 |
| 0568 | 0901 | THOMPSON RIVER REC | 3.594 | 0.000 | $151.95 |
| 0568 | 0100 | WELD COUNTY | 15.956 | 0.000 | $674.62 |
| Total | - | - | 62.293 | 36.271 | $4,363.51 |
The estimate of tax is based on the prior year mill levy and the 2025 projected assessment rates. Mill levies and tax estimates will be updated yearly on December 22nd for the current year. Additional information can be found at https://assessor.weld.gov


