Account: R1440602

April 5, 2026

Account Parcel Account Type Tax Year Buildings Actual Value Local Govt Assessed Value School Assessed Value
R1440602 095917116014 Residential 2026 1 460,404 28,780 32,460

Legal
GR 3HSH LOT 14 BLK5 HOMESTEAD HEIGHTS FG 3

Subdivision Block Lot Land Economic Area
HOMESTEAD HEIGHTS SUB FG#3 5 14 HOMESTEAD HEIGHTS

Property Address Property City Section Township Range
2317 72ND AVE GREELEY 17 05 66




Account Parcel Account Type Tax Year Buildings Actual Value Local Govt Assessed Value School Assessed Value
R1440602 095917116014 Residential 2026 1 460,404 28,780 32,460

Account Owner Name Address
R1440602 ADAMS MICHAEL P 2317 72ND AVE GREELEY, CO 806348676
R1440602 ADAMS TAMMYE J


Account Parcel Account Type Tax Year Buildings Actual Value Local Govt Assessed Value School Assessed Value
R1440602 095917116014 Residential 2026 1 460,404 28,780 32,460

Reception Rec Date Type Grantor Grantee Doc Fee Sale Date Sale Price
2925639 NA SUB SUBDIVISION HOMESTEAD HEIGHTS FG #3 0.00 NA 0
2926147 02-19-2002 WD SCHUSTER L J LLC PROGRESSIVE LIVING STRUCTURES INC 266.40 02-15-2002 2,664,000
3186695 06-04-2004 WD PROGRESSIVE LIVING STRUCTURES INC PLS HOMES INC 4.10 05-27-2004 41,000
3241076 12-03-2004 WD PLS HOMES INC ADAMS MICHAEL P & 21.50 12-02-2004 215,000



Account Parcel Account Type Tax Year Buildings Actual Value Local Govt Assessed Value School Assessed Value
R1440602 095917116014 Residential 2026 1 460,404 28,780 32,460

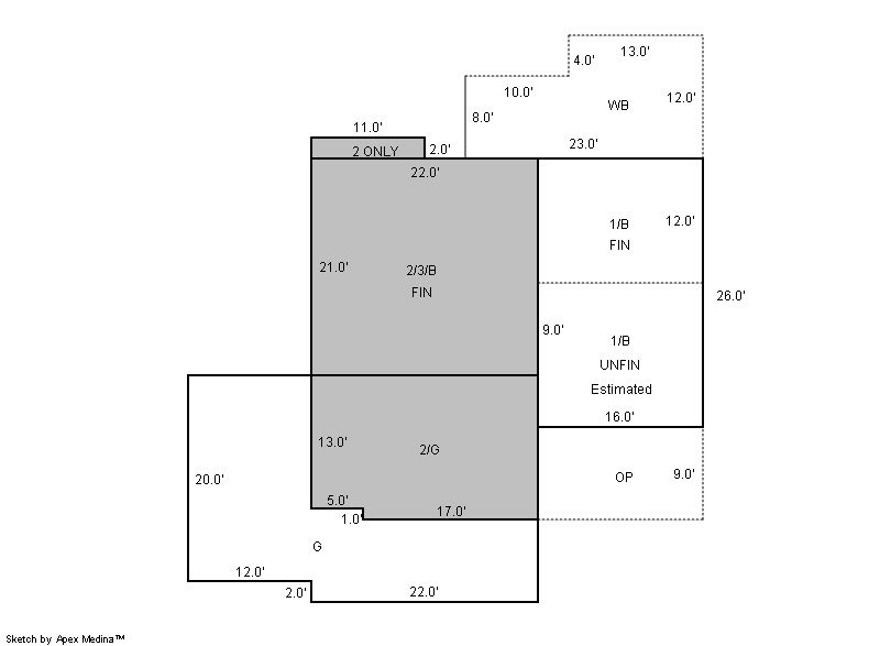
Building 1

AccountNo Building ID Occupancy
R1440602 1 Single Family Residential


ID Type NBHD Occupancy % Complete Bedrooms Baths
1 Residential 2G0007 Single Family Residential 100 4 4.00


ID Exterior Roof Cover Interior HVAC Perimeter Units Unit Type Make
1 Frame Hardboard Composition Shingle Drywall Central Air to Air 0 0 NA NA


ID Square Ft Condo SF Total Basement SF Finished Basement SF Garage SF Carport SF Balcony SF Porch SF
1 1,665 0 878 654 724 0 236 144


Built As Details for Building 1
ID Built As Square Ft Year Built Stories Length Width
1.00 Split Level 1,665 2004 1 0 0


Additional Details for Building 1
ID Detail Type Description Units
1 Add On Fireplace Gas 1.00
1 Balcony Wood Wood Fin 236.00
1 Basement Finished 654.00
1 Basement Total Basement SF 878.00
1 Fixture Full Bath 3.00
1 Fixture Half Bath 1.00
1 Garage Attached 724.00
1 Porch Slab Roof Ceil 144.00





Account Parcel Account Type Tax Year Buildings Actual Value Local Govt Assessed Value School Assessed Value
R1440602 095917116014 Residential 2026 1 460,404 28,780 32,460

Type Code Description Actual Value Local Govt Assessed Value School Assessed Value Acres Land SqFt
Improvement 1212 SINGLE FAMILY RESIDENTIAL IMPROVEMENTS 390,404 24,400 27,520 0.000 0
Land 1112 SINGLE FAMILY RESIDENTIAL-LAND 70,000 4,380 4,940 0.149 6,499
Totals - - 460,404 28,780 32,460 0.149 6,499


Account Parcel Account Type Tax Year Buildings Actual Value Local Govt Assessed Value School Assessed Value
R1440602 095917116014 Residential 2026 1 460,404 28,780 32,460

Tax Area District ID District Name Local Govt
Mill Levy
School
Mill Levy
Estimated
Taxes
0683 0700 AIMS JUNIOR COLLEGE 6.313 0.000 $181.69
0683 0411 GREELEY CITY 11.274 0.000 $324.47
0683 1050 HIGH PLAINS LIBRARY 3.044 0.000 $87.61
0683 0301 NORTHERN COLORADO WATER (NCW) 1.000 0.000 $28.78
0683 0206 SCHOOL DIST 6-GREELEY 0.000 47.615 $1,545.58
0683 0100 WELD COUNTY 15.956 0.000 $459.21
0683 1200 WEST GREELEY CONSERVATION 0.414 0.000 $11.91
Total - - 38.001 47.615 $2,639.25


The estimate of tax is based on the prior year mill levy and the 2025 projected assessment rates. Mill levies and tax estimates will be updated yearly on December 22nd for the current year. Additional information can be found at https://assessor.weld.gov










Select Reports to Print: