Account: R1443986

April 1, 2026

Account Parcel Account Type Tax Year Buildings Actual Value Local Govt Assessed Value School Assessed Value
R1443986 080720109008 Residential 2026 1 495,861 31,000 34,960

Legal
WIN 2WM-1 L1 WINDSORMERE VILLAGE 2ND ADD

Subdivision Block Lot Land Economic Area
WINDSORMERE VILLAGE 2ND ADD 1 WINDSOR WEST

Property Address Property City Section Township Range
401 10TH ST WINDSOR 20 06 67




Account Parcel Account Type Tax Year Buildings Actual Value Local Govt Assessed Value School Assessed Value
R1443986 080720109008 Residential 2026 1 495,861 31,000 34,960

Account Owner Name Address
R1443986 STROMBERGER ARLIN JOHN 401 10TH ST WINDSOR, CO 805504752


Account Parcel Account Type Tax Year Buildings Actual Value Local Govt Assessed Value School Assessed Value
R1443986 080720109008 Residential 2026 1 495,861 31,000 34,960

Reception Rec Date Type Grantor Grantee Doc Fee Sale Date Sale Price
01785666 03-28-1979 WDN 0.00 01-01-1900 0
1608600 NA SUB SUBDIVISION WINDSORMERE VILLAGE 2ND ADD 0.00 NA 0
2851001 05-23-2001 QCN TOBEY JOHN E & ETHEL M TOBEY JOHN E & TOBEY ETHEL M TRUST 0.00 05-16-2001 0
3043999 03-24-2003 DTHC TOBEY JOHN E TOBEY JOHN E (IN HEIRS OF) & 0.00 04-15-2001 0
3044001 03-24-2003 QCN TOBEY JOHN (IN HEIRS OF) & ETHEL M TOBEY ETHEL M & WITTMER CHARLENE T 0.00 03-03-2003 0
3044003 03-24-2003 QCN TOBEY ETHEL & WITTMER CHARLENE T TOBEY ETHEL M & RICK & WITTMER CHARLENE 0.00 03-03-2003 0
3320264 09-07-2005 WD TOBEY ETHEL M & STROMBERGER ARLIN JOHN 21.70 08-30-2005 217,000



Account Parcel Account Type Tax Year Buildings Actual Value Local Govt Assessed Value School Assessed Value
R1443986 080720109008 Residential 2026 1 495,861 31,000 34,960

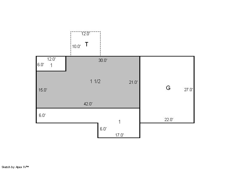
Building 1

AccountNo Building ID Occupancy
R1443986 1 Single Family Residential


ID Type NBHD Occupancy % Complete Bedrooms Baths
1 Residential 2W2007 Single Family Residential 100 3 2.00


ID Exterior Roof Cover Interior HVAC Perimeter Units Unit Type Make
1 Frame Hardboard Composition Shingle Drywall Central Air to Air 0 0 NA NA


ID Square Ft Condo SF Total Basement SF Finished Basement SF Garage SF Carport SF Balcony SF Porch SF
1 2,046 0 0 0 594 0 0 120


Built As Details for Building 1
ID Built As Square Ft Year Built Stories Length Width
1.00 1 1/2 Story Fin 2,046 1974 2 0 0


Additional Details for Building 1
ID Detail Type Description Units
1 Add On Shed Frame 120.00
1 Fixture Full Bath 2.00
1 Garage Attached 594.00
1 Porch Open Slab 120.00





Account Parcel Account Type Tax Year Buildings Actual Value Local Govt Assessed Value School Assessed Value
R1443986 080720109008 Residential 2026 1 495,861 31,000 34,960

Type Code Description Actual Value Local Govt Assessed Value School Assessed Value Acres Land SqFt
Improvement 1212 SINGLE FAMILY RESIDENTIAL IMPROVEMENTS 405,861 25,370 28,610 0.000 0
Land 1112 SINGLE FAMILY RESIDENTIAL-LAND 90,000 5,630 6,350 0.245 10,651
Totals - - 495,861 31,000 34,960 0.245 10,651


Account Parcel Account Type Tax Year Buildings Actual Value Local Govt Assessed Value School Assessed Value
R1443986 080720109008 Residential 2026 1 495,861 31,000 34,960

Tax Area District ID District Name Local Govt
Mill Levy
School
Mill Levy
Estimated
Taxes
0420 0700 AIMS JUNIOR COLLEGE 6.313 0.000 $195.70
0420 1051 CLEARVIEW LIBRARY 3.546 0.000 $109.93
0420 0301 NORTHERN COLORADO WATER (NCW) 1.000 0.000 $31.00
0420 0204 SCHOOL DIST RE4-WINDSOR 0.000 46.646 $1,630.74
0420 0100 WELD COUNTY 15.956 0.000 $494.64
0420 0428 WINDSOR TOWN 12.030 0.000 $372.93
0420 0521 WINDSOR-SEVERANCE FIRE 8.535 0.000 $264.59
Total - - 47.38 46.646 $3,099.52


The estimate of tax is based on the prior year mill levy and the 2025 projected assessment rates. Mill levies and tax estimates will be updated yearly on December 22nd for the current year. Additional information can be found at https://assessor.weld.gov










Select Reports to Print: