Account: R1447186
April 1, 2026
| Account | Parcel | Account Type | Tax Year | Buildings | Actual Value | Local Govt Assessed Value | School Assessed Value |
|---|---|---|---|---|---|---|---|
| R1447186 | 080720115012 | Residential | 2026 | 1 | 438,152 | 27,390 | 30,890 |
| Legal |
|---|
| WIN WW1-12 L12 BLK1 WINDSOR WEST |
| Subdivision | Block | Lot | Land Economic Area |
|---|---|---|---|
| WINDSOR WEST | 1 | 12 | WINDSOR WEST |
| Property Address | Property City | Section | Township | Range |
|---|---|---|---|---|
| 1115 COTTONWOOD DR | WINDSOR | 20 | 06 | 67 |
| Account | Parcel | Account Type | Tax Year | Buildings | Actual Value | Local Govt Assessed Value | School Assessed Value |
|---|---|---|---|---|---|---|---|
| R1447186 | 080720115012 | Residential | 2026 | 1 | 438,152 | 27,390 | 30,890 |
| Account | Owner Name | Address |
|---|---|---|
| R1447186 | LUTZ STEVEN | 1115 COTTONWOOD DR WINDSOR, CO 805504809 |
| R1447186 | LUTZ NORMA |
| Account | Parcel | Account Type | Tax Year | Buildings | Actual Value | Local Govt Assessed Value | School Assessed Value |
|---|---|---|---|---|---|---|---|
| R1447186 | 080720115012 | Residential | 2026 | 1 | 438,152 | 27,390 | 30,890 |
| Reception | Rec Date | Type | Grantor | Grantee | Doc Fee | Sale Date | Sale Price |
|---|---|---|---|---|---|---|---|
| 02060104 | 07-09-1986 | WDN | 0.00 | 01-01-1900 | 0 | ||
| 1628902 | NA | SUB | SUBDIVISION | WINDSOR WEST | 0.00 | NA | 0 |
| 2617456 | 06-04-1998 | WD | WATERS RICHARD L & VICTORIA L | MART JAMES LYNN & SANDRA KAY | 11.89 | 05-29-1998 | 118,900 |
| 3393260 | 06-02-2006 | QCN | MART JAMES LYNN & SANDRA KAY | MART JAMES LYNN | 0.00 | 05-25-2006 | 0 |
| 3661147 | 11-23-2009 | WD | MART JAMES LYNN | LUTZ STEVEN | 15.70 | 11-13-2009 | 157,000 |
| X0003381 | 07-09-1986 | WD | KUNZ NORMA J; KUNZ JOSEPH D | WATERS RICHARD L & VICTORIA L | 7.05 | 07-09-1986 | 70,500 |
*If the hyperlink for the reception number does not work, try a manual search in the Clerk and Recorder records. Use the Grantor or Grantee in your search.
| Account | Parcel | Account Type | Tax Year | Buildings | Actual Value | Local Govt Assessed Value | School Assessed Value |
|---|---|---|---|---|---|---|---|
| R1447186 | 080720115012 | Residential | 2026 | 1 | 438,152 | 27,390 | 30,890 |
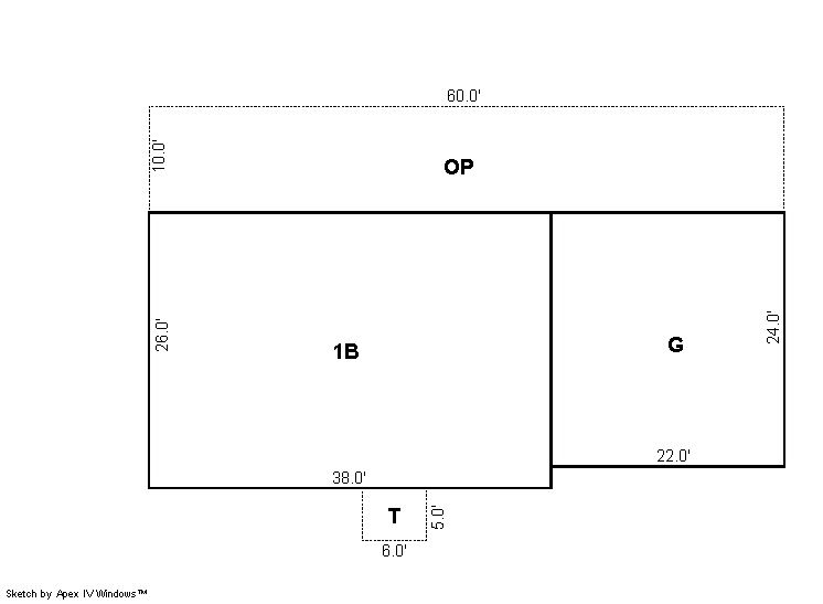
Building 1
| AccountNo | Building ID | Occupancy |
|---|---|---|
| R1447186 | 1 | Single Family Residential |
| ID | Type | NBHD | Occupancy | % Complete | Bedrooms | Baths |
|---|---|---|---|---|---|---|
| 1 | Residential | 2W1003 | Single Family Residential | 100 | 3 | 2.00 |
| ID | Exterior | Roof Cover | Interior | HVAC | Perimeter | Units | Unit Type | Make |
|---|---|---|---|---|---|---|---|---|
| 1 | Frame Masonry Veneer | Composition Shingle | Drywall | Central Air to Air | 0 | 0 | NA | NA |
| ID | Square Ft | Condo SF | Total Basement SF | Finished Basement SF | Garage SF | Carport SF | Balcony SF | Porch SF |
|---|---|---|---|---|---|---|---|---|
| 1 | 988 | 0 | 988 | 890 | 528 | 0 | 0 | 600 |
| ID | Built As | Square Ft | Year Built | Stories | Length | Width |
|---|---|---|---|---|---|---|
| 1.00 | Ranch 1 Story | 988 | 1976 | 1 | 0 | 0 |
| ID | Detail Type | Description | Units |
|---|---|---|---|
| 1 | Add On | Flue Only | 1.00 |
| 1 | Basement | Finished | 890.00 |
| 1 | Basement | Total Basement SF | 988.00 |
| 1 | Fixture | Full Bath | 2.00 |
| 1 | Garage | Attached | 528.00 |
| 1 | Porch | Open Slab | 30.00 |
| 1 | Porch | Slab Roof Ceil | 600.00 |
| Account | Parcel | Account Type | Tax Year | Buildings | Actual Value | Local Govt Assessed Value | School Assessed Value |
|---|---|---|---|---|---|---|---|
| R1447186 | 080720115012 | Residential | 2026 | 1 | 438,152 | 27,390 | 30,890 |
| Type | Code | Description | Actual Value | Local Govt Assessed Value | School Assessed Value | Acres | Land SqFt |
|---|---|---|---|---|---|---|---|
| Improvement | 1212 | SINGLE FAMILY RESIDENTIAL IMPROVEMENTS | 348,152 | 21,760 | 24,540 | 0.000 | 0 |
| Land | 1112 | SINGLE FAMILY RESIDENTIAL-LAND | 90,000 | 5,630 | 6,350 | 0.176 | 7,665 |
| Totals | - | - | 438,152 | 27,390 | 30,890 | 0.176 | 7,665 |
Comparable sales for your Residential or Commercial property may be found using our SALES SEARCH TOOL
Values are updated annually on May 1st for Real Property and June 15th for Personal Property and Oil and Gas.
| Account | Parcel | Account Type | Tax Year | Buildings | Actual Value | Local Govt Assessed Value | School Assessed Value |
|---|---|---|---|---|---|---|---|
| R1447186 | 080720115012 | Residential | 2026 | 1 | 438,152 | 27,390 | 30,890 |
| Tax Area | District ID | District Name | Local Govt Mill Levy |
School Mill Levy |
Estimated Taxes |
|---|---|---|---|---|---|
| 0420 | 0700 | AIMS JUNIOR COLLEGE | 6.313 | 0.000 | $172.91 |
| 0420 | 1051 | CLEARVIEW LIBRARY | 3.546 | 0.000 | $97.12 |
| 0420 | 0301 | NORTHERN COLORADO WATER (NCW) | 1.000 | 0.000 | $27.39 |
| 0420 | 0204 | SCHOOL DIST RE4-WINDSOR | 0.000 | 46.646 | $1,440.89 |
| 0420 | 0100 | WELD COUNTY | 15.956 | 0.000 | $437.03 |
| 0420 | 0428 | WINDSOR TOWN | 12.030 | 0.000 | $329.50 |
| 0420 | 0521 | WINDSOR-SEVERANCE FIRE | 8.535 | 0.000 | $233.77 |
| Total | - | - | 47.38 | 46.646 | $2,738.63 |
The estimate of tax is based on the prior year mill levy and the 2025 projected assessment rates. Mill levies and tax estimates will be updated yearly on December 22nd for the current year. Additional information can be found at https://assessor.weld.gov



