Account: R1450486

April 1, 2026

Account Parcel Account Type Tax Year Buildings Actual Value Local Govt Assessed Value School Assessed Value
R1450486 080720116015 Residential 2026 1 445,421 27,840 31,410

Legal
WIN WW2-15 L15 BLK2 WINDSOR WEST

Subdivision Block Lot Land Economic Area
WINDSOR WEST 2 15 WINDSOR WEST

Property Address Property City Section Township Range
1001 COTTONWOOD DR WINDSOR 20 06 67




Account Parcel Account Type Tax Year Buildings Actual Value Local Govt Assessed Value School Assessed Value
R1450486 080720116015 Residential 2026 1 445,421 27,840 31,410

Account Owner Name Address
R1450486 ROGANNROB TRUST 1001 COTTONWOOD DR WINDSOR, CO 805504803


Account Parcel Account Type Tax Year Buildings Actual Value Local Govt Assessed Value School Assessed Value
R1450486 080720116015 Residential 2026 1 445,421 27,840 31,410

Reception Rec Date Type Grantor Grantee Doc Fee Sale Date Sale Price
01659711 05-05-1975 WDN 0.00 01-01-1900 0
1628902 NA SUB SUBDIVISION WINDSOR WEST 0.00 NA 0
2091888 03-16-1987 WD DITTMAN MELVIN E & EVELYN E BELL CECIL W & MARLIS 6.50 03-13-1987 65,000
2660485 12-15-1998 WD BELL CECIL W & MARLIS ARPAN RANDELL G & TERRY L 13.70 12-14-1998 137,000
2974375 08-02-2002 WD ARPAN RANDELL G & TERRY L FRIESEN DALE G & PAMELA J 18.95 07-31-2002 189,500
3876175 09-26-2012 PTD FRIESEN DALE G WELLS FARGO BANK NA 0.00 09-26-2012 0
3880286 10-11-2012 SWDN WELLS FARGO BANK NA SECRETARY OF HOUSING & URBAN DEV 0.00 09-20-2012 0
3901008 01-07-2013 SWD SECRETARY OF HOUSING AND URBAN DEV ROBERSON ROGER LEE JR 0.00 01-04-2013 166,300
4931252 11-16-2023 SWDN ROBERSON ROGER LEE JR; ROBERSON ANNETTE LOUISE ROGANNROB TRUST 0.00 11-14-2023 0



Account Parcel Account Type Tax Year Buildings Actual Value Local Govt Assessed Value School Assessed Value
R1450486 080720116015 Residential 2026 1 445,421 27,840 31,410

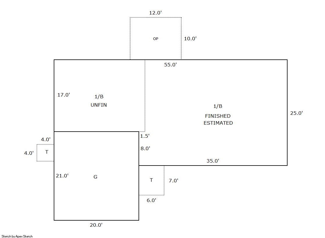
Building 1

AccountNo Building ID Occupancy
R1450486 1 Single Family Residential


ID Type NBHD Occupancy % Complete Bedrooms Baths
1 Residential 2W1003 Single Family Residential 100 4 3.00


ID Exterior Roof Cover Interior HVAC Perimeter Units Unit Type Make
1 Frame Masonry Veneer Composition Shingle Drywall Central Air to Air 160 0 NA NA


ID Square Ft Condo SF Total Basement SF Finished Basement SF Garage SF Carport SF Balcony SF Porch SF
1 1,215 0 1,215 850 420 0 0 58


Built As Details for Building 1
ID Built As Square Ft Year Built Stories Length Width
1.00 Ranch 1 Story 1,215 1975 1 0 0


Additional Details for Building 1
ID Detail Type Description Units
1 Add On Shed Frame 120.00
1 Basement Finished 850.00
1 Basement Total Basement SF 1215.00
1 Fixture Full Bath 2.00
1 Fixture Half Bath 1.00
1 Garage Attached 420.00
1 Porch Open Slab 58.00
1 Porch Slab Roof Ceil 120.00





Account Parcel Account Type Tax Year Buildings Actual Value Local Govt Assessed Value School Assessed Value
R1450486 080720116015 Residential 2026 1 445,421 27,840 31,410

Type Code Description Actual Value Local Govt Assessed Value School Assessed Value Acres Land SqFt
Improvement 1212 SINGLE FAMILY RESIDENTIAL IMPROVEMENTS 355,421 22,210 25,060 0.000 0
Land 1112 SINGLE FAMILY RESIDENTIAL-LAND 90,000 5,630 6,350 0.208 9,065
Totals - - 445,421 27,840 31,410 0.208 9,065


Account Parcel Account Type Tax Year Buildings Actual Value Local Govt Assessed Value School Assessed Value
R1450486 080720116015 Residential 2026 1 445,421 27,840 31,410

Tax Area District ID District Name Local Govt
Mill Levy
School
Mill Levy
Estimated
Taxes
0420 0700 AIMS JUNIOR COLLEGE 6.313 0.000 $175.75
0420 1051 CLEARVIEW LIBRARY 3.546 0.000 $98.72
0420 0301 NORTHERN COLORADO WATER (NCW) 1.000 0.000 $27.84
0420 0204 SCHOOL DIST RE4-WINDSOR 0.000 46.646 $1,465.15
0420 0100 WELD COUNTY 15.956 0.000 $444.22
0420 0428 WINDSOR TOWN 12.030 0.000 $334.92
0420 0521 WINDSOR-SEVERANCE FIRE 8.535 0.000 $237.61
Total - - 47.38 46.646 $2,784.21


The estimate of tax is based on the prior year mill levy and the 2025 projected assessment rates. Mill levies and tax estimates will be updated yearly on December 22nd for the current year. Additional information can be found at https://assessor.weld.gov










Select Reports to Print: