Account: R1454186

April 1, 2026

Account Parcel Account Type Tax Year Buildings Actual Value Local Govt Assessed Value School Assessed Value
R1454186 080720118002 Residential 2026 1 414,931 25,940 29,260

Legal
WIN WW4-2 L2 BLK4 WINDSOR WEST

Subdivision Block Lot Land Economic Area
WINDSOR VILLAGE 5TH ANNEX 4 2 WINDSOR WEST

Property Address Property City Section Township Range
1022 COTTONWOOD DR WINDSOR 20 06 67




Account Parcel Account Type Tax Year Buildings Actual Value Local Govt Assessed Value School Assessed Value
R1454186 080720118002 Residential 2026 1 414,931 25,940 29,260

Account Owner Name Address
R1454186 GLASSIER ERIN 1022 COTTONWOOD DR WINDSOR, CO 805504806


Account Parcel Account Type Tax Year Buildings Actual Value Local Govt Assessed Value School Assessed Value
R1454186 080720118002 Residential 2026 1 414,931 25,940 29,260

Reception Rec Date Type Grantor Grantee Doc Fee Sale Date Sale Price
01677381 12-22-1975 WDN 0.00 01-01-1900 0
1628902 NA SUB SUBDIVISION WINDSOR WEST 0.00 NA 0
3706483 07-20-2010 AFFD CHIPMAN CHARLES HENRY CHIPMAN VERA M 0.00 07-21-2010 0
4836621 06-21-2022 DTHC CHIPMAN VERA M CHIPMAN VERA M (HEIRS OF) 0.00 03-27-2022 0
4854702 09-13-2022 PRDE CHIPMAN VERA M (HEIRS OF) GLASSIER ERIN 40.00 09-09-2022 400,000



Account Parcel Account Type Tax Year Buildings Actual Value Local Govt Assessed Value School Assessed Value
R1454186 080720118002 Residential 2026 1 414,931 25,940 29,260

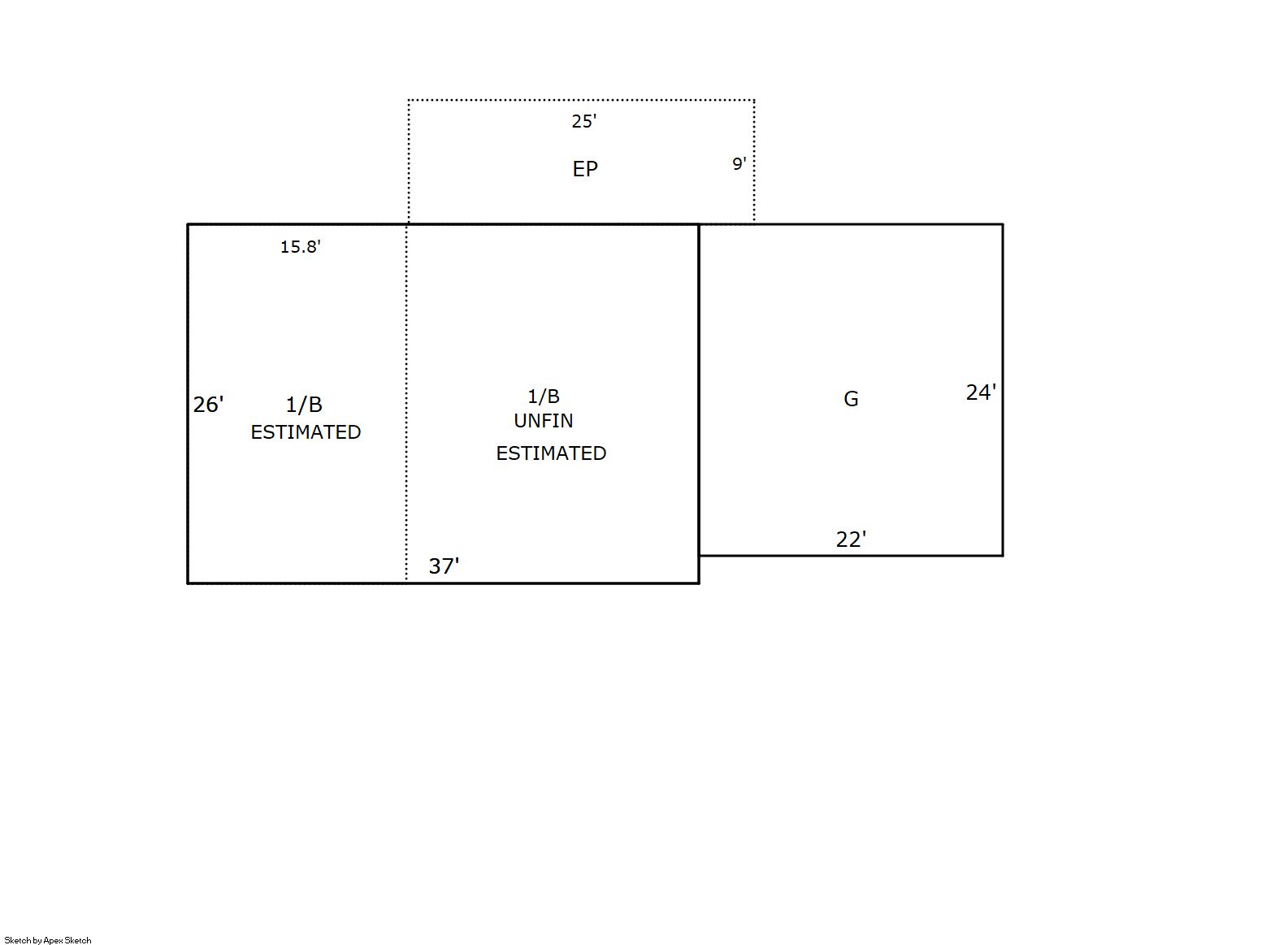
Building 1

AccountNo Building ID Occupancy
R1454186 1 Single Family Residential


ID Type NBHD Occupancy % Complete Bedrooms Baths
1 Residential 2W1003 Single Family Residential 100 3 1.00


ID Exterior Roof Cover Interior HVAC Perimeter Units Unit Type Make
1 Frame Vinyl Composition Shingle Drywall Central Air to Air 126 0 NA NA


ID Square Ft Condo SF Total Basement SF Finished Basement SF Garage SF Carport SF Balcony SF Porch SF
1 962 0 962 411 528 0 0 225


Built As Details for Building 1
ID Built As Square Ft Year Built Stories Length Width
1.00 Ranch 1 Story 962 1975 1 0 0


Additional Details for Building 1
ID Detail Type Description Units
1 Basement Finished 411.00
1 Basement Total Basement SF 962.00
1 Fixture Full Bath 1.00
1 Garage Attached 528.00
1 Porch Encl Solid Wall 225.00
1 Rough In Rough In 1.00





Account Parcel Account Type Tax Year Buildings Actual Value Local Govt Assessed Value School Assessed Value
R1454186 080720118002 Residential 2026 1 414,931 25,940 29,260

Type Code Description Actual Value Local Govt Assessed Value School Assessed Value Acres Land SqFt
Improvement 1212 SINGLE FAMILY RESIDENTIAL IMPROVEMENTS 324,931 20,310 22,910 0.000 0
Land 1112 SINGLE FAMILY RESIDENTIAL-LAND 90,000 5,630 6,350 0.166 7,238
Totals - - 414,931 25,940 29,260 0.166 7,238


Account Parcel Account Type Tax Year Buildings Actual Value Local Govt Assessed Value School Assessed Value
R1454186 080720118002 Residential 2026 1 414,931 25,940 29,260

Tax Area District ID District Name Local Govt
Mill Levy
School
Mill Levy
Estimated
Taxes
0420 0700 AIMS JUNIOR COLLEGE 6.313 0.000 $163.76
0420 1051 CLEARVIEW LIBRARY 3.546 0.000 $91.98
0420 0301 NORTHERN COLORADO WATER (NCW) 1.000 0.000 $25.94
0420 0204 SCHOOL DIST RE4-WINDSOR 0.000 46.646 $1,364.86
0420 0100 WELD COUNTY 15.956 0.000 $413.90
0420 0428 WINDSOR TOWN 12.030 0.000 $312.06
0420 0521 WINDSOR-SEVERANCE FIRE 8.535 0.000 $221.40
Total - - 47.38 46.646 $2,593.90


The estimate of tax is based on the prior year mill levy and the 2025 projected assessment rates. Mill levies and tax estimates will be updated yearly on December 22nd for the current year. Additional information can be found at https://assessor.weld.gov










Select Reports to Print: