Account: R1498586

April 2, 2026

Account Parcel Account Type Tax Year Buildings Actual Value Local Govt Assessed Value School Assessed Value
R1498586 080721103006 Residential 2026 1 358,674 22,420 25,290

Legal
WIN 22820 W40' L8 BLK14

Subdivision Block Lot Land Economic Area
WINDSOR TOWN 14 8 OLD TOWN MAIN

Property Address Property City Section Township Range
17 MAIN ST WINDSOR 21 06 67




Account Parcel Account Type Tax Year Buildings Actual Value Local Govt Assessed Value School Assessed Value
R1498586 080721103006 Residential 2026 1 358,674 22,420 25,290

Account Owner Name Address
R1498586 SHULL MIA 17 MAIN ST WINDSOR, CO 805505011


Account Parcel Account Type Tax Year Buildings Actual Value Local Govt Assessed Value School Assessed Value
R1498586 080721103006 Residential 2026 1 358,674 22,420 25,290

Reception Rec Date Type Grantor Grantee Doc Fee Sale Date Sale Price
01924143 04-20-1983 WDN 0.00 01-01-1900 0
11123 NA SUB SUBDIVISION WINDSOR 0.00 NA 0
2159411 10-24-1988 WD SCHMIDT TIMOTHY R & JOLENE IHFE DOLORES D 3.50 10-17-1988 35,000
2237338 01-02-1991 WD IHFE DOLORES D JACOBY DAVID 4.55 12-27-1990 45,500
2371849 02-01-1994 WD JACOBY DAVID SCHWENT TROY EDWARD & MARLA JO 6.40 01-27-1994 64,000
2497401 06-20-1996 WD SCHWENT TROY EDWARD & MARLA JOY PRITCHARD HIRAM R & SANDRA E 8.82 06-14-1996 88,200
2916727 01-15-2002 WD PRITCHARD HIRAM R & SANDRA E FOLBRECHT ROBERT W & JOYCE A DUROL-FOLBR 12.65 01-10-2002 126,500
3291616 06-03-2005 WD FOLBRECHT ROBERT W & SYSUM JONATHAN G 13.99 05-19-2005 139,900
3439309 12-04-2006 WD SYSUM JONATHAN G FERRARA JARREL & 13.90 11-30-2006 139,000
3458575 02-28-2007 QCN FERRARA JARREL & FERRARA PROPERTIES LLC 0.00 02-16-2007 0
4018190 05-23-2014 WD FERRARA PROPERTIES LLC BARNTHOUSE CHRISTOPHER 16.84 05-23-2014 168,400
4278228 02-14-2017 WD BARNTHOUSE CHRISTOPHER; BARNTHOUSE TAYLOR ROADCAP JOHN; ROADCAP PATRICIA M 21.00 02-10-2017 210,000
4601847 06-24-2020 SWDN ROADCAP JOHN; ROADCAP PATRICIA M 17 MAIN LLC 0.00 06-22-2020 0
4920516 09-13-2023 WD 17 MAIN LLC SHULL MIA 38.00 09-11-2023 380,000
5078967 01-23-2026 BN SHULL MIA SHULL MIA 0.00 01-16-2026 0
X0003574 04-20-1983 CON SCHMIDT TIMOTHY R & JOLENE IHFE DOLORES D 2.50 04-20-1983 25,000



Account Parcel Account Type Tax Year Buildings Actual Value Local Govt Assessed Value School Assessed Value
R1498586 080721103006 Residential 2026 1 358,674 22,420 25,290

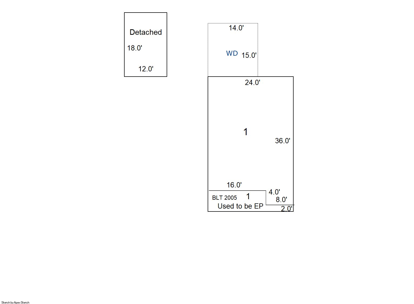
Building 1

AccountNo Building ID Occupancy
R1498586 1 Single Family Residential


ID Type NBHD Occupancy % Complete Bedrooms Baths
1 Residential 2W2007 Single Family Residential 100 2 1.00


ID Exterior Roof Cover Interior HVAC Perimeter Units Unit Type Make
1 Frame Aluminum Composition Shingle Drywall Central Air to Air 124 0 NA NA


ID Square Ft Condo SF Total Basement SF Finished Basement SF Garage SF Carport SF Balcony SF Porch SF
1 912 0 0 0 216 0 0 210


Built As Details for Building 1
ID Built As Square Ft Year Built Stories Length Width
1.00 Ranch 1 Story 912 1924 1 0 0


Additional Details for Building 1
ID Detail Type Description Units
1 Fixture Full Bath 1.00
1 Garage Detached 216.00
1 Porch Wood Deck 210.00





Account Parcel Account Type Tax Year Buildings Actual Value Local Govt Assessed Value School Assessed Value
R1498586 080721103006 Residential 2026 1 358,674 22,420 25,290

Type Code Description Actual Value Local Govt Assessed Value School Assessed Value Acres Land SqFt
Improvement 1212 SINGLE FAMILY RESIDENTIAL IMPROVEMENTS 290,754 18,170 20,500 0.000 0
Land 1112 SINGLE FAMILY RESIDENTIAL-LAND 67,920 4,250 4,790 0.130 5,660
Totals - - 358,674 22,420 25,290 0.130 5,660


Account Parcel Account Type Tax Year Buildings Actual Value Local Govt Assessed Value School Assessed Value
R1498586 080721103006 Residential 2026 1 358,674 22,420 25,290

Tax Area District ID District Name Local Govt
Mill Levy
School
Mill Levy
Estimated
Taxes
0420 0700 AIMS JUNIOR COLLEGE 6.313 0.000 $141.54
0420 1051 CLEARVIEW LIBRARY 3.546 0.000 $79.50
0420 0301 NORTHERN COLORADO WATER (NCW) 1.000 0.000 $22.42
0420 0204 SCHOOL DIST RE4-WINDSOR 0.000 46.646 $1,179.68
0420 0100 WELD COUNTY 15.956 0.000 $357.73
0420 0428 WINDSOR TOWN 12.030 0.000 $269.71
0420 0521 WINDSOR-SEVERANCE FIRE 8.535 0.000 $191.35
Total - - 47.38 46.646 $2,241.94


The estimate of tax is based on the prior year mill levy and the 2025 projected assessment rates. Mill levies and tax estimates will be updated yearly on December 22nd for the current year. Additional information can be found at https://assessor.weld.gov










Select Reports to Print: