Account: R1501186

April 1, 2026

Account Parcel Account Type Tax Year Buildings Actual Value Local Govt Assessed Value School Assessed Value
R1501186 080721107013 Residential 2026 1 367,803 22,990 25,930

Legal
WIN 23054 L10 BLK15

Subdivision Block Lot Land Economic Area
WINDSOR TOWN 15 10 ORIGINAL TOWN WINDSOR

Property Address Property City Section Township Range
19 WALNUT ST WINDSOR 21 06 67




Account Parcel Account Type Tax Year Buildings Actual Value Local Govt Assessed Value School Assessed Value
R1501186 080721107013 Residential 2026 1 367,803 22,990 25,930

Account Owner Name Address
R1501186 COLELLA MATTHEW 19 WALNUT ST WINDSOR, CO 805505135


Account Parcel Account Type Tax Year Buildings Actual Value Local Govt Assessed Value School Assessed Value
R1501186 080721107013 Residential 2026 1 367,803 22,990 25,930

Reception Rec Date Type Grantor Grantee Doc Fee Sale Date Sale Price
01797922 07-26-1979 RITL 0.00 01-01-1900 0
02142875 05-31-1988 QCN 0.00 08-03-1983 0
11123 NA SUB SUBDIVISION WINDSOR 0.00 NA 0
2182956 06-16-1989 WD SCHUENEMEYER B H & LOIS M DERRERA KATHLEEN K 2.40 06-16-1989 24,000
2569504 09-18-1997 WD DERRERA KATHLEEN K GILLARD JOSHUA DAVID&JENNIFER 8.50 09-12-1997 85,000
2704263 07-06-1999 WD GILLARD JOSHUA DAVID&JENNIFER SCOULAR ROBERT F 11.20 06-23-1999 112,000
2837230 04-02-2001 QCN SCOULAR ROBERT F SCOULAR ROBERT F & 0.00 08-18-2000 0
2930344 03-05-2002 WD SCOULAR ROBERT F & SCHIFFNER SCOTT G & STEPHANIE M 14.63 02-22-2002 146,300
3182364 05-21-2004 PTD SCHIFFNER SCOTT G & WELLS FARGO HOME MORTGAGE INC 0.00 05-21-2004 0
3217394 09-09-2004 SWD WELLS FARGO HOME MORTGAGE INC DM HOLDINGS LLC 15.50 08-13-2004 155,000
4050832 10-02-2014 WD DM HOLDINGS LLC HARTZELL KENDRA; HARTZELL BRANDON 17.25 10-01-2014 172,500
4514930 08-15-2019 WD HARTZELL KENDRA; HARTZELL BRANDON COLELLA MATTHEW 26.10 08-13-2019 261,000



Account Parcel Account Type Tax Year Buildings Actual Value Local Govt Assessed Value School Assessed Value
R1501186 080721107013 Residential 2026 1 367,803 22,990 25,930

Building 1

AccountNo Building ID Occupancy
R1501186 1 Single Family Residential


ID Type NBHD Occupancy % Complete Bedrooms Baths
1 Residential 2W2007 Single Family Residential 100 2 1.00


ID Exterior Roof Cover Interior HVAC Perimeter Units Unit Type Make
1 Frame Vinyl Composition Shingle Drywall Forced Air 142 0 NA NA


ID Square Ft Condo SF Total Basement SF Finished Basement SF Garage SF Carport SF Balcony SF Porch SF
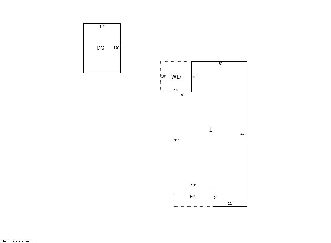
1 990 0 0 0 192 0 0 100


Built As Details for Building 1
ID Built As Square Ft Year Built Stories Length Width
1.00 Ranch 1 Story 990 1909 1 0 0


Additional Details for Building 1
ID Detail Type Description Units
1 Fixture Full Bath 1.00
1 Garage Detached 192.00
1 Porch Encl Solid Wall 78.00
1 Porch Wood Deck 100.00





Account Parcel Account Type Tax Year Buildings Actual Value Local Govt Assessed Value School Assessed Value
R1501186 080721107013 Residential 2026 1 367,803 22,990 25,930

Type Code Description Actual Value Local Govt Assessed Value School Assessed Value Acres Land SqFt
Improvement 1212 SINGLE FAMILY RESIDENTIAL IMPROVEMENTS 291,803 18,240 20,570 0.000 0
Land 1112 SINGLE FAMILY RESIDENTIAL-LAND 76,000 4,750 5,360 0.218 9,500
Totals - - 367,803 22,990 25,930 0.218 9,500


Account Parcel Account Type Tax Year Buildings Actual Value Local Govt Assessed Value School Assessed Value
R1501186 080721107013 Residential 2026 1 367,803 22,990 25,930

Tax Area District ID District Name Local Govt
Mill Levy
School
Mill Levy
Estimated
Taxes
0420 0700 AIMS JUNIOR COLLEGE 6.313 0.000 $145.14
0420 1051 CLEARVIEW LIBRARY 3.546 0.000 $81.52
0420 0301 NORTHERN COLORADO WATER (NCW) 1.000 0.000 $22.99
0420 0204 SCHOOL DIST RE4-WINDSOR 0.000 46.646 $1,209.53
0420 0100 WELD COUNTY 15.956 0.000 $366.83
0420 0428 WINDSOR TOWN 12.030 0.000 $276.57
0420 0521 WINDSOR-SEVERANCE FIRE 8.535 0.000 $196.22
Total - - 47.38 46.646 $2,298.80


The estimate of tax is based on the prior year mill levy and the 2025 projected assessment rates. Mill levies and tax estimates will be updated yearly on December 22nd for the current year. Additional information can be found at https://assessor.weld.gov










Select Reports to Print: