Account: R1501586

April 1, 2026

Account Parcel Account Type Tax Year Buildings Actual Value Local Govt Assessed Value School Assessed Value
R1501586 080721107017 Residential 2026 1 362,651 22,670 25,570

Legal
WIN 23059-A S2 L15 BLK15

Subdivision Block Lot Land Economic Area
WINDSOR TOWN 15 15 ORIGINAL TOWN WINDSOR

Property Address Property City Section Township Range
325 1ST ST WINDSOR 21 06 67




Account Parcel Account Type Tax Year Buildings Actual Value Local Govt Assessed Value School Assessed Value
R1501586 080721107017 Residential 2026 1 362,651 22,670 25,570

Account Owner Name Address
R1501586 DAILEY LAURA A 325 1ST ST WINDSOR, CO 805505205


Account Parcel Account Type Tax Year Buildings Actual Value Local Govt Assessed Value School Assessed Value
R1501586 080721107017 Residential 2026 1 362,651 22,670 25,570

Reception Rec Date Type Grantor Grantee Doc Fee Sale Date Sale Price
01705225 12-06-1976 WDN 0.00 01-01-1900 0
11123 NA SUB SUBDIVISION WINDSOR 0.00 NA 0
4006116 04-01-2014 WD IRWIN KATHARINE J DAVIS DAVID 16.50 03-31-2014 165,000
4282459 03-02-2017 WD DAVIS DAVID; DAVIS NATALIE BIRAI DANIEL; BIRAI LYDIE T 22.40 02-28-2017 224,000
4641441 10-16-2020 SWD BIRAI DANIEL; BIRAI LYDIE T DAILEY LAURA A 29.90 10-13-2020 299,000



Account Parcel Account Type Tax Year Buildings Actual Value Local Govt Assessed Value School Assessed Value
R1501586 080721107017 Residential 2026 1 362,651 22,670 25,570

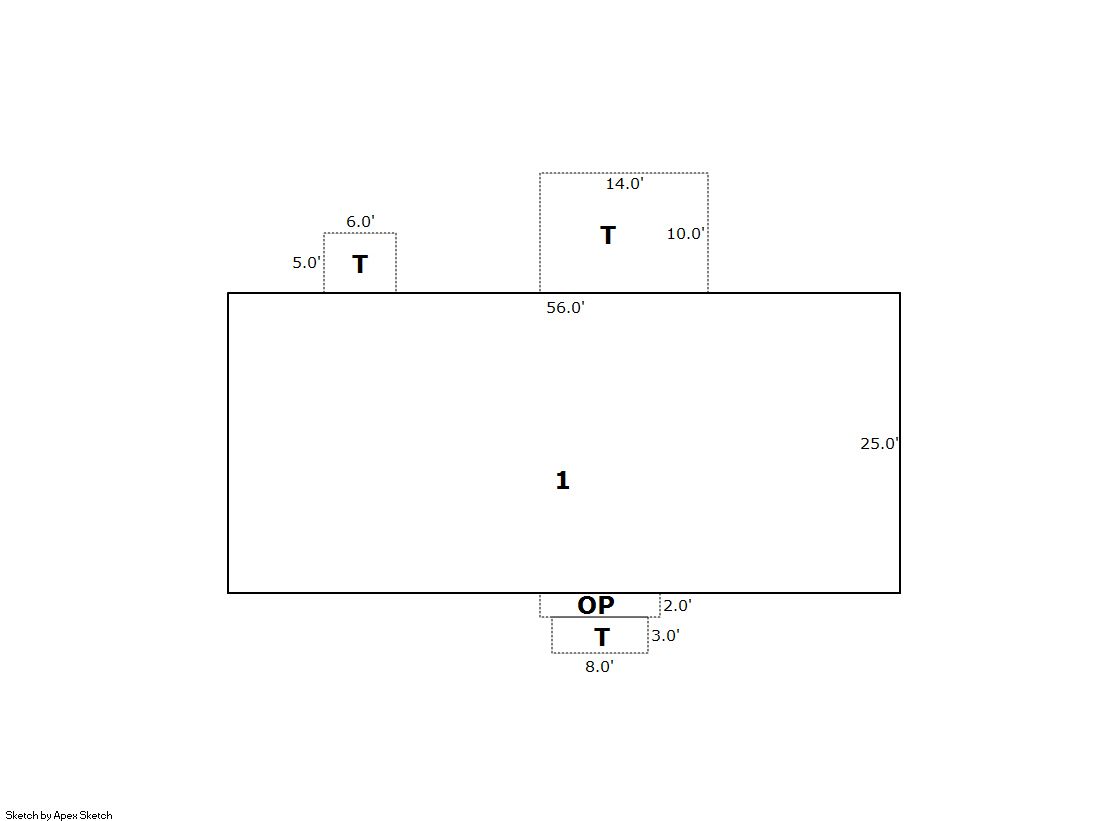
Building 1

AccountNo Building ID Occupancy
R1501586 1 Single Family Residential


ID Type NBHD Occupancy % Complete Bedrooms Baths
1 Residential 2W2007 Single Family Residential 100 3 1.00


ID Exterior Roof Cover Interior HVAC Perimeter Units Unit Type Make
1 Frame Hardboard Composition Shingle Drywall Forced Air 0 0 NA NA


ID Square Ft Condo SF Total Basement SF Finished Basement SF Garage SF Carport SF Balcony SF Porch SF
1 1,400 0 0 0 0 0 0 20


Built As Details for Building 1
ID Built As Square Ft Year Built Stories Length Width
1.00 Ranch 1 Story 1,400 1974 1 0 0


Additional Details for Building 1
ID Detail Type Description Units
1 Add On Fireplace Wood 1.00
1 Fixture Full Bath 1.00
1 Porch Open Slab 194.00
1 Porch Slab Roof Ceil 20.00





Account Parcel Account Type Tax Year Buildings Actual Value Local Govt Assessed Value School Assessed Value
R1501586 080721107017 Residential 2026 1 362,651 22,670 25,570

Type Code Description Actual Value Local Govt Assessed Value School Assessed Value Acres Land SqFt
Improvement 1212 SINGLE FAMILY RESIDENTIAL IMPROVEMENTS 324,651 20,290 22,890 0.000 0
Land 1112 SINGLE FAMILY RESIDENTIAL-LAND 38,000 2,380 2,680 0.109 4,750
Totals - - 362,651 22,670 25,570 0.109 4,750


Account Parcel Account Type Tax Year Buildings Actual Value Local Govt Assessed Value School Assessed Value
R1501586 080721107017 Residential 2026 1 362,651 22,670 25,570

Tax Area District ID District Name Local Govt
Mill Levy
School
Mill Levy
Estimated
Taxes
0420 0700 AIMS JUNIOR COLLEGE 6.313 0.000 $143.12
0420 1051 CLEARVIEW LIBRARY 3.546 0.000 $80.39
0420 0301 NORTHERN COLORADO WATER (NCW) 1.000 0.000 $22.67
0420 0204 SCHOOL DIST RE4-WINDSOR 0.000 46.646 $1,192.74
0420 0100 WELD COUNTY 15.956 0.000 $361.72
0420 0428 WINDSOR TOWN 12.030 0.000 $272.72
0420 0521 WINDSOR-SEVERANCE FIRE 8.535 0.000 $193.49
Total - - 47.38 46.646 $2,266.84


The estimate of tax is based on the prior year mill levy and the 2025 projected assessment rates. Mill levies and tax estimates will be updated yearly on December 22nd for the current year. Additional information can be found at https://assessor.weld.gov










Select Reports to Print: