Account: R1511602
April 1, 2026
| Account | Parcel | Account Type | Tax Year | Buildings | Actual Value | Local Govt Assessed Value | School Assessed Value |
|---|---|---|---|---|---|---|---|
| R1511602 | 120927300037 | Agricultural | 2026 | 4 | 482,442 | 35,020 | 38,690 |
| Legal |
|---|
| PT E2SW4 27-3-67 LOT A REC EXEMPT RE-3088 |
| Subdivision | Block | Lot | Land Economic Area |
|---|---|---|---|
| NW ECON 4 RURAL |
| Property Address | Property City | Section | Township | Range |
|---|---|---|---|---|
| 9285 COUNTY ROAD 28 | WELD | 27 | 03 | 67 |
| Account | Parcel | Account Type | Tax Year | Buildings | Actual Value | Local Govt Assessed Value | School Assessed Value |
|---|---|---|---|---|---|---|---|
| R1511602 | 120927300037 | Agricultural | 2026 | 4 | 482,442 | 35,020 | 38,690 |
| Account | Owner Name | Address |
|---|---|---|
| R1511602 | WILSON BRUCE B | 2108 CALAIS DR LONGMONT, CO 805041720 |
| R1511602 | WILSON ROBERTA M |
| Account | Parcel | Account Type | Tax Year | Buildings | Actual Value | Local Govt Assessed Value | School Assessed Value |
|---|---|---|---|---|---|---|---|
| R1511602 | 120927300037 | Agricultural | 2026 | 4 | 482,442 | 35,020 | 38,690 |
| Reception | Rec Date | Type | Grantor | Grantee | Doc Fee | Sale Date | Sale Price |
|---|---|---|---|---|---|---|---|
| 2914857 | 01-07-2002 | RE | RECORDED EXEMPTION | RE-3088 | 0.00 | NA | 0 |
| 2914857 | 01-07-2002 | RE | RE-3088 | RE-3088 | 0.00 | 01-07-2002 | 0 |
| 3957766 | 08-20-2013 | QCN | WILSON BRUCE B | WILSON BRUCE B | 0.00 | 08-20-2013 | 0 |
*If the hyperlink for the reception number does not work, try a manual search in the Clerk and Recorder records. Use the Grantor or Grantee in your search.
| Account | Parcel | Account Type | Tax Year | Buildings | Actual Value | Local Govt Assessed Value | School Assessed Value |
|---|---|---|---|---|---|---|---|
| R1511602 | 120927300037 | Agricultural | 2026 | 4 | 482,442 | 35,020 | 38,690 |
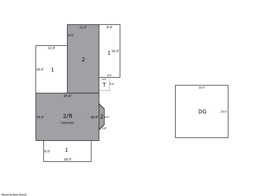
Building 2
| AccountNo | Building ID | Occupancy |
|---|---|---|
| R1511602 | 2 | Single Family Residential on Ag |
| ID | Type | NBHD | Occupancy | % Complete | Bedrooms | Baths |
|---|---|---|---|---|---|---|
| 2 | Residential | 4R1013 | Single Family Residential on Ag | 100 | 3 | 3.00 |
| ID | Exterior | Roof Cover | Interior | HVAC | Perimeter | Units | Unit Type | Make |
|---|---|---|---|---|---|---|---|---|
| 2 | Frame Masonry Veneer | Composition Shingle | Drywall | Central Air to Air | 307 | 0 | NA | NA |
| ID | Square Ft | Condo SF | Total Basement SF | Finished Basement SF | Garage SF | Carport SF | Balcony SF | Porch SF |
|---|---|---|---|---|---|---|---|---|
| 2 | 2,040 | 0 | 432 | 432 | 400 | 0 | 0 | 20 |
| ID | Built As | Square Ft | Year Built | Stories | Length | Width |
|---|---|---|---|---|---|---|
| 2.00 | 2 Story | 2,040 | 1920 | 1 | 0 | 0 |
| ID | Detail Type | Description | Units |
|---|---|---|---|
| 2 | Add On | Fireplace Gas | 1.00 |
| 2 | Add On | Flue Only | 1.00 |
| 2 | Basement | Finished | 432.00 |
| 2 | Basement | Total Basement SF | 432.00 |
| 2 | Fixture | Full Bath | 2.00 |
| 2 | Fixture | Half Bath | 1.00 |
| 2 | Garage | Detached | 400.00 |
| 2 | Porch | Open Slab | 20.00 |
Building 5
| AccountNo | Building ID | Occupancy |
|---|---|---|
| R1511602 | 5 | Shed - Utility |
| ID | Type | NBHD | Occupancy | % Complete | Bedrooms | Baths |
|---|---|---|---|---|---|---|
| 5 | Out Building | NA | Shed - Utility | 100 | 0 | 0.00 |
| ID | Exterior | Roof Cover | Interior | HVAC | Perimeter | Units | Unit Type | Make |
|---|---|---|---|---|---|---|---|---|
| 5 | NA | NA | NA | None | 108 | 0 | NA | NA |
| ID | Square Ft | Condo SF | Total Basement SF | Finished Basement SF | Garage SF | Carport SF | Balcony SF | Porch SF |
|---|---|---|---|---|---|---|---|---|
| 5 | 336 | 0 | 0 | 0 | 0 | 0 | 0 | 0 |
| ID | Built As | Square Ft | Year Built | Stories | Length | Width |
|---|---|---|---|---|---|---|
| 5.00 | Shed - Utility | 336 | 1998 | 1 | 28 | 12 |
No Additional Details for Building 5
Building 6
| AccountNo | Building ID | Occupancy |
|---|---|---|
| R1511602 | 6 | Shed - Utility |
| ID | Type | NBHD | Occupancy | % Complete | Bedrooms | Baths |
|---|---|---|---|---|---|---|
| 6 | Out Building | NA | Shed - Utility | 100 | 0 | 0.00 |
| ID | Exterior | Roof Cover | Interior | HVAC | Perimeter | Units | Unit Type | Make |
|---|---|---|---|---|---|---|---|---|
| 6 | NA | NA | NA | None | 140 | 0 | NA | NA |
| ID | Square Ft | Condo SF | Total Basement SF | Finished Basement SF | Garage SF | Carport SF | Balcony SF | Porch SF |
|---|---|---|---|---|---|---|---|---|
| 6 | 1,000 | 0 | 0 | 0 | 0 | 0 | 0 | 0 |
| ID | Built As | Square Ft | Year Built | Stories | Length | Width |
|---|---|---|---|---|---|---|
| 6.00 | Shed - Utility | 1,000 | 1997 | 1 | 40 | 25 |
No Additional Details for Building 6
Building 7
| AccountNo | Building ID | Occupancy |
|---|---|---|
| R1511602 | 7 | Stable |
| ID | Type | NBHD | Occupancy | % Complete | Bedrooms | Baths |
|---|---|---|---|---|---|---|
| 7 | Out Building | NA | Stable | 100 | 0 | 0.00 |
| ID | Exterior | Roof Cover | Interior | HVAC | Perimeter | Units | Unit Type | Make |
|---|---|---|---|---|---|---|---|---|
| 7 | NA | NA | NA | None | 136 | 0 | NA | NA |
| ID | Square Ft | Condo SF | Total Basement SF | Finished Basement SF | Garage SF | Carport SF | Balcony SF | Porch SF |
|---|---|---|---|---|---|---|---|---|
| 7 | 1,152 | 0 | 0 | 0 | 0 | 0 | 0 | 0 |
| ID | Built As | Square Ft | Year Built | Stories | Length | Width |
|---|---|---|---|---|---|---|
| 7.00 | Stable | 1,152 | 2005 | 1 | 36 | 32 |
| ID | Detail Type | Description | Units |
|---|---|---|---|
| 7 | Add On | OB Open Shelter Lean To Steel | 432.00 |
| Account | Parcel | Account Type | Tax Year | Buildings | Actual Value | Local Govt Assessed Value | School Assessed Value |
|---|---|---|---|---|---|---|---|
| R1511602 | 120927300037 | Agricultural | 2026 | 4 | 482,442 | 35,020 | 38,690 |
| Type | Code | Description | Actual Value | Local Govt Assessed Value | School Assessed Value | Acres | Land SqFt |
|---|---|---|---|---|---|---|---|
| Improvement | 4277 | FARM/RANCH RESIDENCE-IMPS | 458,963 | 28,690 | 32,360 | 0.000 | 0 |
| Improvement | 4279 | FARM RANCH SUPPORT BLDGS | 21,647 | 5,840 | 5,840 | 0.000 | 0 |
| Land | 4107 | SPRINKLER IRRIGATED LAND | 1,832 | 490 | 490 | 2.910 | 126,760 |
| Totals | - | - | 482,442 | 35,020 | 38,690 | 2.910 | 126,760 |
Comparable sales for your Residential or Commercial property may be found using our SALES SEARCH TOOL
Values are updated annually on May 1st for Real Property and June 15th for Personal Property and Oil and Gas.
| Account | Parcel | Account Type | Tax Year | Buildings | Actual Value | Local Govt Assessed Value | School Assessed Value |
|---|---|---|---|---|---|---|---|
| R1511602 | 120927300037 | Agricultural | 2026 | 4 | 482,442 | 35,020 | 38,690 |
| Tax Area | District ID | District Name | Local Govt Mill Levy |
School Mill Levy |
Estimated Taxes |
|---|---|---|---|---|---|
| 4566 | 0700 | AIMS JUNIOR COLLEGE | 6.313 | 0.000 | $221.08 |
| 4566 | 1050 | HIGH PLAINS LIBRARY | 3.044 | 0.000 | $106.60 |
| 4566 | 0301 | NORTHERN COLORADO WATER (NCW) | 1.000 | 0.000 | $35.02 |
| 4566 | 1201 | PLATTE VALLEY CONSERVATION | 0.000 | 0.000 | $0.00 |
| 4566 | 0516 | PLATTEVILLE-GILCREST FIRE | 7.540 | 0.000 | $264.05 |
| 4566 | 0201 | SCHOOL DIST RE1-GILCREST | 0.000 | 15.382 | $595.13 |
| 4566 | 0100 | WELD COUNTY | 15.956 | 0.000 | $558.78 |
| Total | - | - | 33.853 | 15.382 | $1,780.66 |
The estimate of tax is based on the prior year mill levy and the 2025 projected assessment rates. Mill levies and tax estimates will be updated yearly on December 22nd for the current year. Additional information can be found at https://assessor.weld.gov


