Account: R1514286

April 1, 2026

Account Parcel Account Type Tax Year Buildings Actual Value Local Govt Assessed Value School Assessed Value
R1514286 080721202008 Residential 2026 2 544,408 34,030 38,380

Legal
WIN 22848 L7-9-11 BLK11

Subdivision Block Lot Land Economic Area
WINDSOR TOWN 11 7 ORIGINAL TOWN WINDSOR

Property Address Property City Section Township Range
308 WALNUT ST WINDSOR 21 06 67




Account Parcel Account Type Tax Year Buildings Actual Value Local Govt Assessed Value School Assessed Value
R1514286 080721202008 Residential 2026 2 544,408 34,030 38,380

Account Owner Name Address
R1514286 BOYD JASON A 308 WALNUT ST WINDSOR, CO 805505142
R1514286 BOYD KAILA M


Account Parcel Account Type Tax Year Buildings Actual Value Local Govt Assessed Value School Assessed Value
R1514286 080721202008 Residential 2026 2 544,408 34,030 38,380

Reception Rec Date Type Grantor Grantee Doc Fee Sale Date Sale Price
02141353 05-16-1988 CONN 0.00 05-12-1988 0
02352296 09-28-1993 QCN 0.00 09-13-1993 0
11123 NA SUB SUBDIVISION WINDSOR 0.00 NA 0
2363397 12-09-1993 WD ANESHANSEL TERRI L NKA LAYTON LARRY H & PEGGY A 9.10 12-07-1993 91,000
3829365 03-05-2012 WD LAYTON LARRY H BETHEL AMERICAN LUTHERAN CHURCH WINDSOR 22.50 03-02-2012 225,000
4199161 04-28-2016 WD BETHEL AMERICAN LUTHERAN CHURCH OF WIN BOYD JASON A; BOYD KAILA M 31.50 04-28-2016 315,000



Account Parcel Account Type Tax Year Buildings Actual Value Local Govt Assessed Value School Assessed Value
R1514286 080721202008 Residential 2026 2 544,408 34,030 38,380

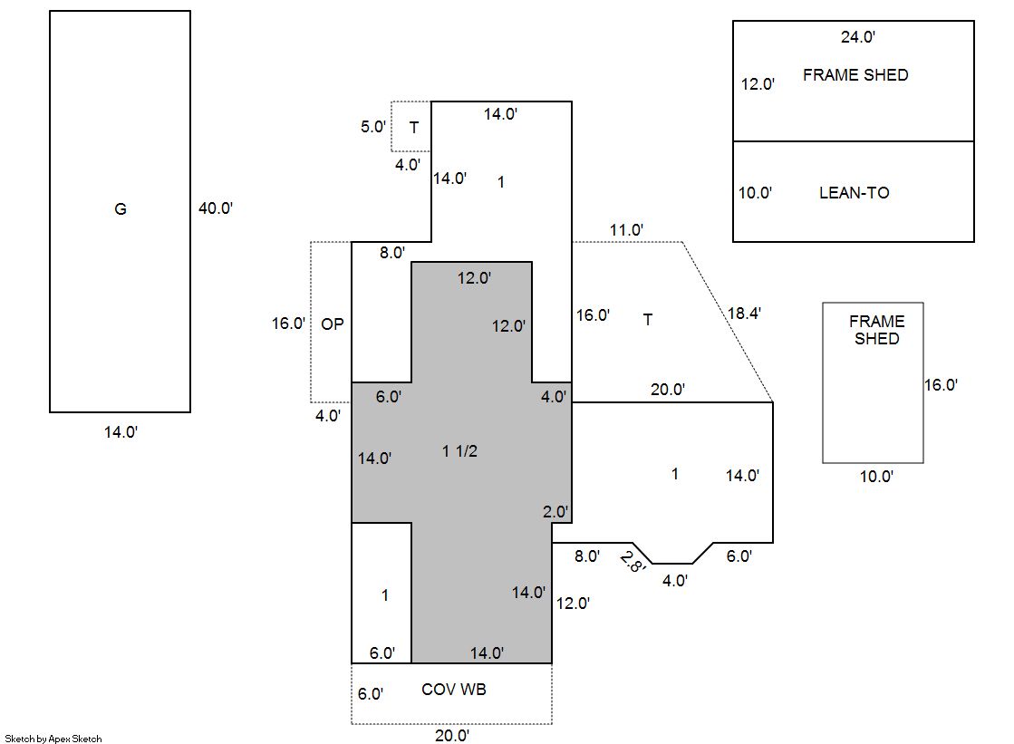
Building 1

AccountNo Building ID Occupancy
R1514286 1 Single Family Residential


ID Type NBHD Occupancy % Complete Bedrooms Baths
1 Residential 2W2007 Single Family Residential 100 3 3.00


ID Exterior Roof Cover Interior HVAC Perimeter Units Unit Type Make
1 Frame Vinyl Composition Shingle Drywall Central Air to Air 322 0 NA NA


ID Square Ft Condo SF Total Basement SF Finished Basement SF Garage SF Carport SF Balcony SF Porch SF
1 2,036 0 0 0 560 0 120 268


Built As Details for Building 1
ID Built As Square Ft Year Built Stories Length Width
1.00 1 1/2 Story Fin 2,036 1904 2 0 0


Additional Details for Building 1
ID Detail Type Description Units
1 Add On OB Open Shelter Lean To Wood 240.00
1 Add On Shed Frame 448.00
1 Balcony Cover Wood Balc 120.00
1 Fixture Full Bath 2.00
1 Fixture Half Bath 1.00
1 Garage Detached 560.00
1 Porch Open Slab 268.00
1 Porch Slab Roof 64.00



Building 2

AccountNo Building ID Occupancy
R1514286 2 Equipment Building


ID Type NBHD Occupancy % Complete Bedrooms Baths
2 Out Building NA Equipment Building 100 0 0.00


ID Exterior Roof Cover Interior HVAC Perimeter Units Unit Type Make
2 NA NA NA None 128 0 NA NA


ID Square Ft Condo SF Total Basement SF Finished Basement SF Garage SF Carport SF Balcony SF Porch SF
2 960 0 0 0 0 0 0 0


Built As Details for Building 2
ID Built As Square Ft Year Built Stories Length Width
2.00 Equipment Building 960 1999 1 40 24

No Additional Details for Building 2






Account Parcel Account Type Tax Year Buildings Actual Value Local Govt Assessed Value School Assessed Value
R1514286 080721202008 Residential 2026 2 544,408 34,030 38,380

Type Code Description Actual Value Local Govt Assessed Value School Assessed Value Acres Land SqFt
Improvement 1212 SINGLE FAMILY RESIDENTIAL IMPROVEMENTS 430,408 26,900 30,340 0.000 0
Land 1112 SINGLE FAMILY RESIDENTIAL-LAND 114,000 7,130 8,040 0.327 14,250
Totals - - 544,408 34,030 38,380 0.327 14,250


Account Parcel Account Type Tax Year Buildings Actual Value Local Govt Assessed Value School Assessed Value
R1514286 080721202008 Residential 2026 2 544,408 34,030 38,380

Tax Area District ID District Name Local Govt
Mill Levy
School
Mill Levy
Estimated
Taxes
0420 0700 AIMS JUNIOR COLLEGE 6.313 0.000 $214.83
0420 1051 CLEARVIEW LIBRARY 3.546 0.000 $120.67
0420 0301 NORTHERN COLORADO WATER (NCW) 1.000 0.000 $34.03
0420 0204 SCHOOL DIST RE4-WINDSOR 0.000 46.646 $1,790.27
0420 0100 WELD COUNTY 15.956 0.000 $542.98
0420 0428 WINDSOR TOWN 12.030 0.000 $409.38
0420 0521 WINDSOR-SEVERANCE FIRE 8.535 0.000 $290.45
Total - - 47.38 46.646 $3,402.61


The estimate of tax is based on the prior year mill levy and the 2025 projected assessment rates. Mill levies and tax estimates will be updated yearly on December 22nd for the current year. Additional information can be found at https://assessor.weld.gov










Select Reports to Print: