Account: R1514686
November 8, 2025
| Account | Parcel | Account Type | Tax Year | Buildings | Actual Value | Local Govt Assessed Value | School Assessed Value |
|---|---|---|---|---|---|---|---|
| R1514686 | 080721203001 | Commercial | 2025 | 2 | 1,103,100 | 224,990 | 227,800 |
| Legal |
|---|
| WIN 22877 L32 BLK10 |
| Subdivision | Block | Lot | Land Economic Area |
|---|---|---|---|
| WINDSOR TOWN | 10 | 32 | WINDSOR CBD COMMERCIAL |
| Property Address | Property City | Section | Township | Range |
|---|---|---|---|---|
| 431 MAIN ST | WINDSOR | 21 | 06 | 67 |
| Account | Parcel | Account Type | Tax Year | Buildings | Actual Value | Local Govt Assessed Value | School Assessed Value |
|---|---|---|---|---|---|---|---|
| R1514686 | 080721203001 | Commercial | 2025 | 2 | 1,103,100 | 224,990 | 227,800 |
| Account | Owner Name | Address |
|---|---|---|
| R1514686 | HIGA LLC | 211 5TH ST WINDSOR, CO 805505149 |
| Account | Parcel | Account Type | Tax Year | Buildings | Actual Value | Local Govt Assessed Value | School Assessed Value |
|---|---|---|---|---|---|---|---|
| R1514686 | 080721203001 | Commercial | 2025 | 2 | 1,103,100 | 224,990 | 227,800 |
| Reception | Rec Date | Type | Grantor | Grantee | Doc Fee | Sale Date | Sale Price |
|---|---|---|---|---|---|---|---|
| 01872547 | 10-22-1981 | QCN | 0.00 | 01-01-1900 | 0 | ||
| 11123 | NA | SUB | SUBDIVISION | WINDSOR | 0.00 | NA | 0 |
| 2476766 | 02-16-1996 | WD | JANSEN MARIAN P | SMITH TIMOTHY L & ELIZABETH L | 16.00 | 02-15-1996 | 160,000 |
| 2482787 | 03-27-1996 | QCN | SMITH TIMOTHY L & ELIZABETH L | TYCEN LLC | 0.00 | 03-25-1996 | 0 |
| 2578827 | 11-12-1997 | WD | TYCEN LLC | RASMUSSEN VERN C & | 23.75 | 11-06-1997 | 237,500 |
| 3642231 | 08-12-2009 | QCN | RASMUSSEN VERN C | RASMUSSEN VERN C | 0.00 | 08-07-2009 | 0 |
| 3717801 | 09-13-2010 | DTHC | CUMPSTEN LINDA LOUISE | CUMPSTEN LINDA LOUISE | 0.00 | 09-06-2010 | 0 |
| 3852898 | 06-15-2012 | QCN | RASMUSEN VERN C | L&V LLC | 0.00 | 06-14-2012 | 0 |
| 4060732 | 11-12-2014 | QCN | L & V LLC | RASMUSSEN VERN C | 0.00 | 11-10-2014 | 0 |
| 4065184 | 12-01-2014 | WD | RASMUSSEN VERN C | HIGA LLC | 59.50 | 11-28-2014 | 595,000 |
| 4254713 | 11-18-2016 | SURV | SURVEY | SURVEY | 0.00 | 11-18-2016 | 0 |
*If the hyperlink for the reception number does not work, try a manual search in the Clerk and Recorder records. Use the Grantor or Grantee in your search.
| Account | Parcel | Account Type | Tax Year | Buildings | Actual Value | Local Govt Assessed Value | School Assessed Value |
|---|---|---|---|---|---|---|---|
| R1514686 | 080721203001 | Commercial | 2025 | 2 | 1,103,100 | 224,990 | 227,800 |
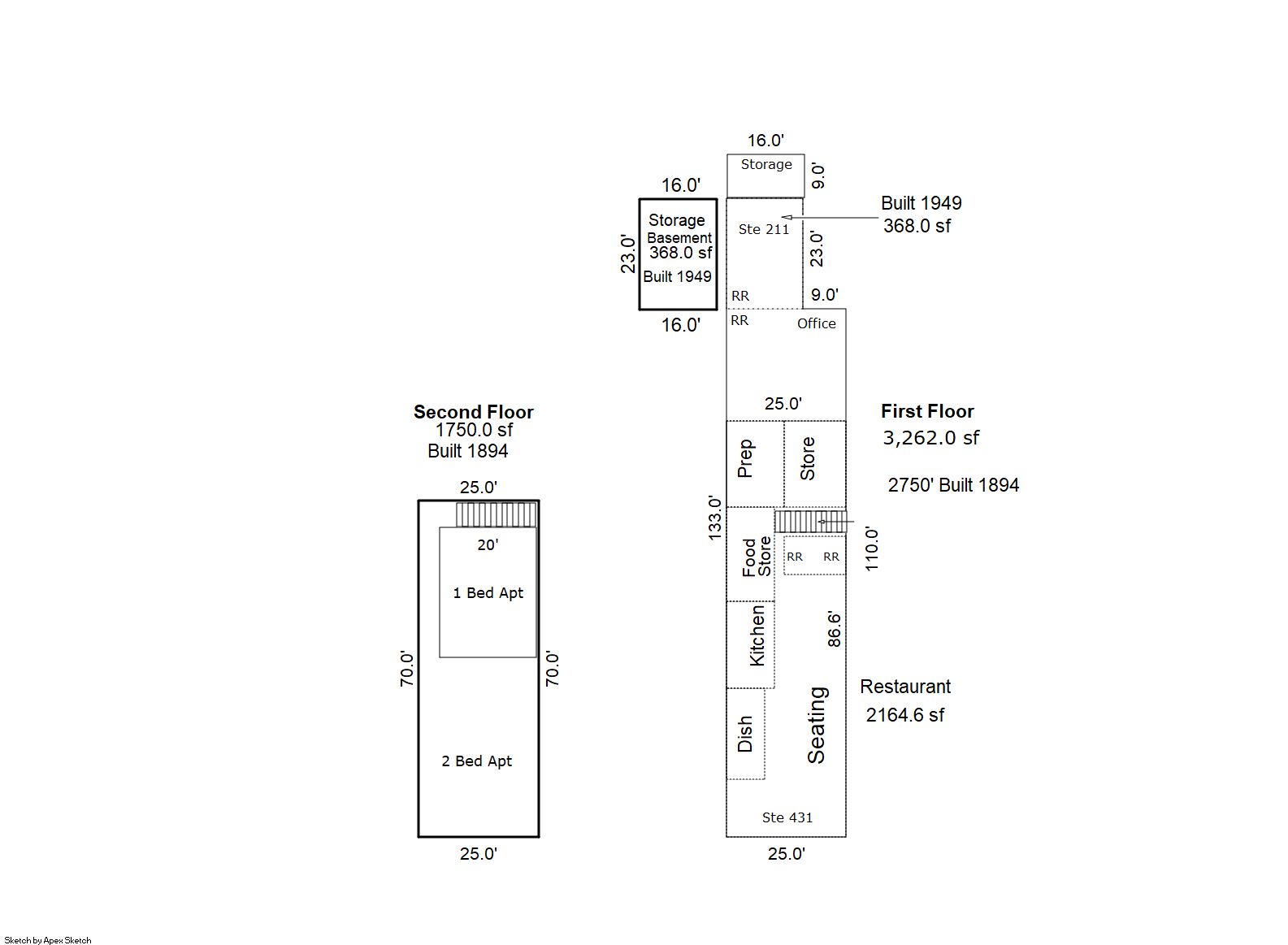
Building 1
| AccountNo | Building ID | Occupancy |
|---|---|---|
| R1514686 | 1 | Restaurant |
| ID | Type | NBHD | Occupancy | % Complete | Bedrooms | Baths |
|---|---|---|---|---|---|---|
| 1 | Commercial | 2919 | Restaurant | 100 | 0 | 0.00 |
| ID | Exterior | Roof Cover | Interior | HVAC | Perimeter | Units | Unit Type | Make |
|---|---|---|---|---|---|---|---|---|
| 1 | NA | NA | NA | Forced Air | 556 | 0 | NA | NA |
| ID | Square Ft | Condo SF | Total Basement SF | Finished Basement SF | Garage SF | Carport SF | Balcony SF | Porch SF |
|---|---|---|---|---|---|---|---|---|
| 1 | 5,012 | 0 | 0 | 0 | 0 | 0 | 0 | 0 |
| ID | Built As | Square Ft | Year Built | Stories | Length | Width |
|---|---|---|---|---|---|---|
| 1.00 | Multiple - Residential | 1,750 | 1894 | 2 | 0 | 0 |
| 1.00 | Retail Store | 3,262 | 1894 | 2 | 0 | 0 |
| ID | Detail Type | Description | Units |
|---|---|---|---|
| 1 | Add On | Concrete Slab Average | 144.00 |
| 1 | Basement | Storage | 368.00 |
Building 2
| AccountNo | Building ID | Occupancy |
|---|---|---|
| R1514686 | 2 | Retail |
| ID | Type | NBHD | Occupancy | % Complete | Bedrooms | Baths |
|---|---|---|---|---|---|---|
| 2 | Commercial | 2919 | Retail | 100 | 0 | 0.00 |
| ID | Exterior | Roof Cover | Interior | HVAC | Perimeter | Units | Unit Type | Make |
|---|---|---|---|---|---|---|---|---|
| 2 | NA | NA | NA | Forced Air | 78 | 0 | NA | NA |
| ID | Square Ft | Condo SF | Total Basement SF | Finished Basement SF | Garage SF | Carport SF | Balcony SF | Porch SF |
|---|---|---|---|---|---|---|---|---|
| 2 | 380 | 0 | 0 | 0 | 0 | 0 | 0 | 0 |
| ID | Built As | Square Ft | Year Built | Stories | Length | Width |
|---|---|---|---|---|---|---|
| 2.00 | Storage Warehouse | 380 | 1986 | 1 | 0 | 0 |
| ID | Detail Type | Description | Units |
|---|---|---|---|
| 2 | Add On | Com Canopies Wood Low | 57.00 |
| Account | Parcel | Account Type | Tax Year | Buildings | Actual Value | Local Govt Assessed Value | School Assessed Value |
|---|---|---|---|---|---|---|---|
| R1514686 | 080721203001 | Commercial | 2025 | 2 | 1,103,100 | 224,990 | 227,800 |
| Type | Code | Description | Actual Value | Local Govt Assessed Value | School Assessed Value | Acres | Land SqFt |
|---|---|---|---|---|---|---|---|
| Improvement | 1220 | MULTI-UNITS(4-8)-IMPRVMTS | 332,885 | 20,810 | 23,470 | 0.000 | 0 |
| Improvement | 2212 | MERCHANDISING-IMPROVEMENT | 95,000 | 25,650 | 25,650 | 0.000 | 0 |
| Improvement | 2230 | SPECIAL PURPOSE-IMPROVEMENTS | 618,215 | 166,920 | 166,920 | 0.000 | 0 |
| Land | 1120 | MULTI-UNITS(4-8)-LAND | 18,240 | 1,140 | 1,290 | 0.035 | 1,520 |
| Land | 2112 | MERCHANDISING-LAND | 38,760 | 10,470 | 10,470 | 0.074 | 3,230 |
| Totals | - | - | 1,103,100 | 224,990 | 227,800 | 0.109 | 4,750 |
Comparable sales for your Residential or Commercial property may be found using our SALES SEARCH TOOL
Values are updated annually on May 1st for Real Property and June 15th for Personal Property and Oil and Gas.
| Account | Parcel | Account Type | Tax Year | Buildings | Actual Value | Local Govt Assessed Value | School Assessed Value |
|---|---|---|---|---|---|---|---|
| R1514686 | 080721203001 | Commercial | 2025 | 2 | 1,103,100 | 224,990 | 227,800 |
| Tax Area | District ID | District Name | Local Govt Mill Levy |
School Mill Levy |
Estimated Taxes |
|---|---|---|---|---|---|
| 4536 | 0700 | AIMS JUNIOR COLLEGE | 6.305 | 0.000 | $1,418.56 |
| 4536 | 1051 | CLEARVIEW LIBRARY | 3.546 | 0.000 | $797.81 |
| 4536 | 0301 | NORTHERN COLORADO WATER (NCW) | 1.000 | 0.000 | $224.99 |
| 4536 | 0204 | SCHOOL DIST RE4-WINDSOR | 0.000 | 48.319 | $11,007.07 |
| 4536 | 0100 | WELD COUNTY | 15.956 | 0.000 | $3,589.94 |
| 4536 | 0833 | WINDSOR DOWNTOWN DEVELOPMENT (WDDA) | 0.000 | 0.000 | $0.00 |
| 4536 | 0428 | WINDSOR TOWN | 12.030 | 0.000 | $2,706.63 |
| 4536 | 0521 | WINDSOR-SEVERANCE FIRE | 8.250 | 0.000 | $1,856.17 |
| Total | - | - | 47.087 | 48.319 | $21,601.17 |
The estimate of tax is based on the prior year mill levy and the 2025 assessment rates. Mill levies and tax estimates will be updated yearly on December 22nd for the current year. Additional information can be found at https://assessor.weld.gov


