Account: R1518786

April 1, 2026

Account Parcel Account Type Tax Year Buildings Actual Value Local Govt Assessed Value School Assessed Value
R1518786 080721205004 Residential 2026 1 441,725 27,610 31,140

Legal
WIN 22904 L13 BLK8

Subdivision Block Lot Land Economic Area
WINDSOR TOWN 8 13 ORIGINAL TOWN WINDSOR

Property Address Property City Section Township Range
624 WALNUT ST WINDSOR 21 06 67




Account Parcel Account Type Tax Year Buildings Actual Value Local Govt Assessed Value School Assessed Value
R1518786 080721205004 Residential 2026 1 441,725 27,610 31,140

Account Owner Name Address
R1518786 SWEENEY-MCKIEL MARGARET ELIZABETH 624 WALNUT ST WINDSOR, CO 805505148


Account Parcel Account Type Tax Year Buildings Actual Value Local Govt Assessed Value School Assessed Value
R1518786 080721205004 Residential 2026 1 441,725 27,610 31,140

Reception Rec Date Type Grantor Grantee Doc Fee Sale Date Sale Price
01760164 07-14-1978 WDN 0.00 01-01-1900 0
11123 NA SUB SUBDIVISION WINDSOR 0.00 NA 0
2116387 10-02-1987 WD HEIN DEAN T & KAREN A THOMAS HAROLD WAYNE & MARIA TH 5.72 09-30-1987 57,200
2553211 06-16-1997 WD THOMAS HAROLD WAYNE & MARIA TH SHEPARDSON JOHN A JR & DEBORAH 10.90 06-13-1997 109,000
2646959 10-15-1998 WD SHEPARDSON JOHN A JR & DEBORAH LAWTON DAVID & MEREDITH L 11.66 09-30-1998 116,600
3752906 02-28-2011 PTD LAWTON DAVID HOMESALES INC 0.00 02-25-2011 0
3754764 03-08-2011 SWD HOMESALES INC FRANKENBERGER LEE E 11.55 03-01-2011 115,500
4732189 07-02-2021 WD FRANKENBERGER LAURA; FRANKENBERGER LEE E LACEY TARA LEIGH 45.50 06-22-2021 455,000
5041963 07-18-2025 WD LACEY TARA LEIGH SWEENEY-MCKIEL MARGARET ELIZABETH 53.50 07-17-2025 535,000



Account Parcel Account Type Tax Year Buildings Actual Value Local Govt Assessed Value School Assessed Value
R1518786 080721205004 Residential 2026 1 441,725 27,610 31,140

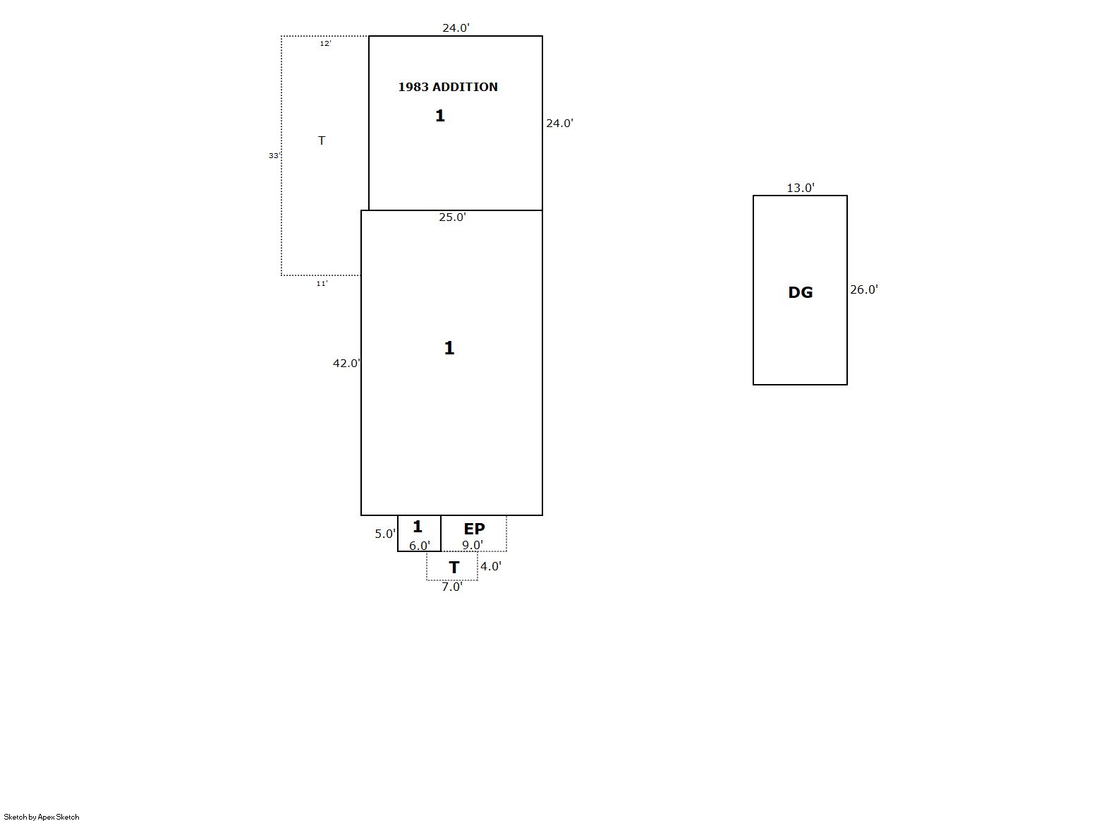
Building 1

AccountNo Building ID Occupancy
R1518786 1 Single Family Residential


ID Type NBHD Occupancy % Complete Bedrooms Baths
1 Residential 2W2007 Single Family Residential 100 3 2.00


ID Exterior Roof Cover Interior HVAC Perimeter Units Unit Type Make
1 Frame Hardboard Composition Shingle Drywall Central Air to Air 252 0 NA NA


ID Square Ft Condo SF Total Basement SF Finished Basement SF Garage SF Carport SF Balcony SF Porch SF
1 1,656 0 0 0 338 0 0 45


Built As Details for Building 1
ID Built As Square Ft Year Built Stories Length Width
1.00 Ranch 1 Story 1,656 1919 1 0 0


Additional Details for Building 1
ID Detail Type Description Units
1 Add On Flue Only 1.00
1 Fixture Full Bath 2.00
1 Garage Detached 338.00
1 Porch Encl Solid Wall 45.00
1 Porch Open Slab 415.00





Account Parcel Account Type Tax Year Buildings Actual Value Local Govt Assessed Value School Assessed Value
R1518786 080721205004 Residential 2026 1 441,725 27,610 31,140

Type Code Description Actual Value Local Govt Assessed Value School Assessed Value Acres Land SqFt
Improvement 1212 SINGLE FAMILY RESIDENTIAL IMPROVEMENTS 365,725 22,860 25,780 0.000 0
Land 1112 SINGLE FAMILY RESIDENTIAL-LAND 76,000 4,750 5,360 0.218 9,500
Totals - - 441,725 27,610 31,140 0.218 9,500


Account Parcel Account Type Tax Year Buildings Actual Value Local Govt Assessed Value School Assessed Value
R1518786 080721205004 Residential 2026 1 441,725 27,610 31,140

Tax Area District ID District Name Local Govt
Mill Levy
School
Mill Levy
Estimated
Taxes
0420 0700 AIMS JUNIOR COLLEGE 6.313 0.000 $174.30
0420 1051 CLEARVIEW LIBRARY 3.546 0.000 $97.91
0420 0301 NORTHERN COLORADO WATER (NCW) 1.000 0.000 $27.61
0420 0204 SCHOOL DIST RE4-WINDSOR 0.000 46.646 $1,452.56
0420 0100 WELD COUNTY 15.956 0.000 $440.55
0420 0428 WINDSOR TOWN 12.030 0.000 $332.15
0420 0521 WINDSOR-SEVERANCE FIRE 8.535 0.000 $235.65
Total - - 47.38 46.646 $2,760.72


The estimate of tax is based on the prior year mill levy and the 2025 projected assessment rates. Mill levies and tax estimates will be updated yearly on December 22nd for the current year. Additional information can be found at https://assessor.weld.gov










Select Reports to Print: