Account: R1527502

April 1, 2026

Account Parcel Account Type Tax Year Buildings Actual Value Local Govt Assessed Value School Assessed Value
R1527502 146925106012 Residential 2026 1 384,919 24,060 27,140

Legal
L3-4-5-6 BLK13 WATTENBERG

Subdivision Block Lot Land Economic Area
WATTENBERG 13 3 WATTENBERG

Property Address Property City Section Township Range
1905 MARY AVE WELD 25 01 67




Account Parcel Account Type Tax Year Buildings Actual Value Local Govt Assessed Value School Assessed Value
R1527502 146925106012 Residential 2026 1 384,919 24,060 27,140

Account Owner Name Address
R1527502 ADAME KIMBERLY A 8259 W 69TH WAY ARVADA, CO 800041809


Account Parcel Account Type Tax Year Buildings Actual Value Local Govt Assessed Value School Assessed Value
R1527502 146925106012 Residential 2026 1 384,919 24,060 27,140

Reception Rec Date Type Grantor Grantee Doc Fee Sale Date Sale Price
144927 NA SUB SUBDIVISION WATTENBERG 0.00 NA 0
3025278 01-20-2003 QCN ADAME KIMBERLY AKA ADAME KIMBERLY ANN ADAME KIMBERLY 0.00 01-09-2003 0
3339186 11-10-2005 QCN ADAME KIMBERLY ADAME ANITA 0.00 10-24-2005 0
3417801 09-06-2006 BN ADAME ANITA ADAME ANITA (BN) 0.00 08-25-2006 0
3979370 11-20-2013 DTHC ADAME ANITA GALICIA ADAME KIMBERLY 0.00 12-18-2012 0
3979371 11-20-2013 AFFD ADAME ANITA ADAME ANITA 0.00 10-24-2013 0



Account Parcel Account Type Tax Year Buildings Actual Value Local Govt Assessed Value School Assessed Value
R1527502 146925106012 Residential 2026 1 384,919 24,060 27,140

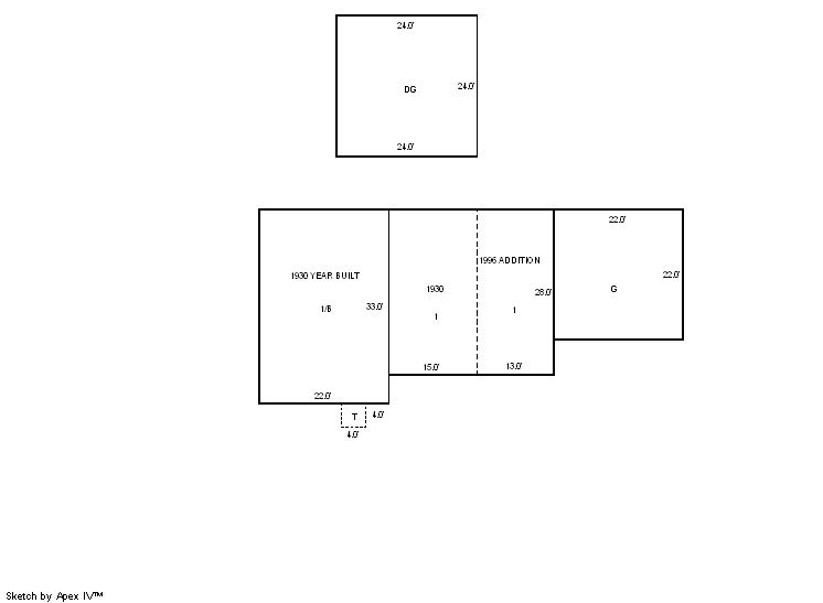
Building 1

AccountNo Building ID Occupancy
R1527502 1 Single Family Residential


ID Type NBHD Occupancy % Complete Bedrooms Baths
1 Residential 4R0008 Single Family Residential 100 2 1.00


ID Exterior Roof Cover Interior HVAC Perimeter Units Unit Type Make
1 Frame Stucco Composition Shingle Drywall Central Air to Air 0 0 NA NA


ID Square Ft Condo SF Total Basement SF Finished Basement SF Garage SF Carport SF Balcony SF Porch SF
1 1,510 0 726 0 576 0 0 16


Built As Details for Building 1
ID Built As Square Ft Year Built Stories Length Width
1.00 Ranch 1 Story 1,510 1930 1 0 0


Additional Details for Building 1
ID Detail Type Description Units
1 Add On Shed Frame 360.00
1 Basement Total Basement SF 726.00
1 Fixture Full Bath 1.00
1 Garage Attached 484.00
1 Garage Detached 576.00
1 Porch Open Slab 16.00
1 Rough In Rough In 1.00





Account Parcel Account Type Tax Year Buildings Actual Value Local Govt Assessed Value School Assessed Value
R1527502 146925106012 Residential 2026 1 384,919 24,060 27,140

Type Code Description Actual Value Local Govt Assessed Value School Assessed Value Acres Land SqFt
Improvement 1212 SINGLE FAMILY RESIDENTIAL IMPROVEMENTS 294,919 18,430 20,790 0.000 0
Land 1112 SINGLE FAMILY RESIDENTIAL-LAND 90,000 5,630 6,350 0.290 12,500
Totals - - 384,919 24,060 27,140 0.290 12,500


Account Parcel Account Type Tax Year Buildings Actual Value Local Govt Assessed Value School Assessed Value
R1527502 146925106012 Residential 2026 1 384,919 24,060 27,140

Tax Area District ID District Name Local Govt
Mill Levy
School
Mill Levy
Estimated
Taxes
2502 0700 AIMS JUNIOR COLLEGE 6.313 0.000 $151.89
2502 0302 CENTRAL COLORADO WATER (CCW) 0.980 0.000 $23.58
2502 0309 CENTRAL COLORADO WATER SUBDISTRICT (CCS) 1.462 0.000 $35.18
2502 0503 GREATER BRIGHTON FIRE 17.504 0.000 $421.15
2502 1050 HIGH PLAINS LIBRARY 3.044 0.000 $73.24
2502 0208 SCHOOL DIST RE8-FORT LUPTON AND DACONO 0.000 18.198 $493.89
2502 0100 WELD COUNTY 15.956 0.000 $383.90
2502 1209 WEST ADAMS CONSERVATION 0.000 0.000 $0.00
Total - - 45.259 18.198 $1,582.83


The estimate of tax is based on the prior year mill levy and the 2025 projected assessment rates. Mill levies and tax estimates will be updated yearly on December 22nd for the current year. Additional information can be found at https://assessor.weld.gov










Select Reports to Print: