Account: R1529986
April 1, 2026
| Account | Parcel | Account Type | Tax Year | Buildings | Actual Value | Local Govt Assessed Value | School Assessed Value |
|---|---|---|---|---|---|---|---|
| R1529986 | 080721214005 | Residential | 2026 | 1 | 413,634 | 25,850 | 29,160 |
| Legal |
|---|
| WIN 23117 L9 BLK23 |
| Subdivision | Block | Lot | Land Economic Area |
|---|---|---|---|
| WINDSOR TOWN | 23 | 9 | ORIGINAL TOWN WINDSOR |
| Property Address | Property City | Section | Township | Range |
|---|---|---|---|---|
| 516 LOCUST ST | WINDSOR | 21 | 06 | 67 |
| Account | Parcel | Account Type | Tax Year | Buildings | Actual Value | Local Govt Assessed Value | School Assessed Value |
|---|---|---|---|---|---|---|---|
| R1529986 | 080721214005 | Residential | 2026 | 1 | 413,634 | 25,850 | 29,160 |
| Account | Owner Name | Address |
|---|---|---|
| R1529986 | PERALTA GILBERT | 516 LOCUST ST WINDSOR, CO 805505264 |
| Account | Parcel | Account Type | Tax Year | Buildings | Actual Value | Local Govt Assessed Value | School Assessed Value |
|---|---|---|---|---|---|---|---|
| R1529986 | 080721214005 | Residential | 2026 | 1 | 413,634 | 25,850 | 29,160 |
| Reception | Rec Date | Type | Grantor | Grantee | Doc Fee | Sale Date | Sale Price |
|---|---|---|---|---|---|---|---|
| 01792376 | 06-01-1979 | QCN | 0.00 | 01-01-1900 | 0 | ||
| 02200138 | 12-13-1989 | QCN | 0.00 | 12-13-1989 | 0 | ||
| 2212543 | 05-02-1990 | WD | LUTZ MICHAEL D & PATRICIA G | LIND ROBERT & DONNA K | 2.70 | 05-01-1990 | 27,000 |
| 2825227 | 02-12-2001 | WD | LIND ROBERT & DONNA K | PERALTA GILBERT | 15.50 | 02-08-2001 | 155,000 |
| 3512184 | 10-19-2007 | QCN | PERALTA GILBERT | PERALTA GILBERT & | 0.00 | 10-19-2007 | 0 |
| 3556366 | 05-27-2008 | QCN | PERALTA GILBERT & | PERALTA GILBERT | 0.00 | 05-01-2008 | 0 |
| 76922 | NA | SUB | SUBDIVISION | WINDSOR 2ND FG | 0.00 | NA | 0 |
*If the hyperlink for the reception number does not work, try a manual search in the Clerk and Recorder records. Use the Grantor or Grantee in your search.
| Account | Parcel | Account Type | Tax Year | Buildings | Actual Value | Local Govt Assessed Value | School Assessed Value |
|---|---|---|---|---|---|---|---|
| R1529986 | 080721214005 | Residential | 2026 | 1 | 413,634 | 25,850 | 29,160 |
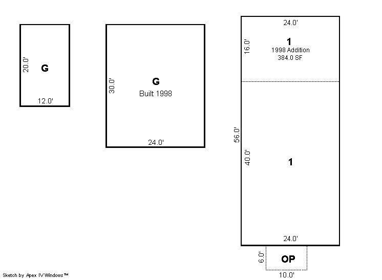
Building 1
| AccountNo | Building ID | Occupancy |
|---|---|---|
| R1529986 | 1 | Single Family Residential |
| ID | Type | NBHD | Occupancy | % Complete | Bedrooms | Baths |
|---|---|---|---|---|---|---|
| 1 | Residential | 2W2007 | Single Family Residential | 100 | 2 | 2.00 |
| ID | Exterior | Roof Cover | Interior | HVAC | Perimeter | Units | Unit Type | Make |
|---|---|---|---|---|---|---|---|---|
| 1 | Frame Hardboard | Composition Shingle | Drywall | Floor/Wall Furnace | 0 | 0 | NA | NA |
| ID | Square Ft | Condo SF | Total Basement SF | Finished Basement SF | Garage SF | Carport SF | Balcony SF | Porch SF |
|---|---|---|---|---|---|---|---|---|
| 1 | 1,344 | 0 | 0 | 0 | 960 | 0 | 0 | 60 |
| ID | Built As | Square Ft | Year Built | Stories | Length | Width |
|---|---|---|---|---|---|---|
| 1.00 | Ranch 1 Story | 1,344 | 1910 | 1 | 0 | 0 |
| ID | Detail Type | Description | Units |
|---|---|---|---|
| 1 | Fixture | Full Bath | 2.00 |
| 1 | Fixture | Half Bath | 1.00 |
| 1 | Garage | Detached | 960.00 |
| 1 | Porch | Cvrd Wood Deck | 60.00 |
| Account | Parcel | Account Type | Tax Year | Buildings | Actual Value | Local Govt Assessed Value | School Assessed Value |
|---|---|---|---|---|---|---|---|
| R1529986 | 080721214005 | Residential | 2026 | 1 | 413,634 | 25,850 | 29,160 |
| Type | Code | Description | Actual Value | Local Govt Assessed Value | School Assessed Value | Acres | Land SqFt |
|---|---|---|---|---|---|---|---|
| Improvement | 1212 | SINGLE FAMILY RESIDENTIAL IMPROVEMENTS | 345,634 | 21,600 | 24,370 | 0.000 | 0 |
| Land | 1112 | SINGLE FAMILY RESIDENTIAL-LAND | 68,000 | 4,250 | 4,790 | 0.195 | 8,500 |
| Totals | - | - | 413,634 | 25,850 | 29,160 | 0.195 | 8,500 |
Comparable sales for your Residential or Commercial property may be found using our SALES SEARCH TOOL
Values are updated annually on May 1st for Real Property and June 15th for Personal Property and Oil and Gas.
| Account | Parcel | Account Type | Tax Year | Buildings | Actual Value | Local Govt Assessed Value | School Assessed Value |
|---|---|---|---|---|---|---|---|
| R1529986 | 080721214005 | Residential | 2026 | 1 | 413,634 | 25,850 | 29,160 |
| Tax Area | District ID | District Name | Local Govt Mill Levy |
School Mill Levy |
Estimated Taxes |
|---|---|---|---|---|---|
| 0420 | 0700 | AIMS JUNIOR COLLEGE | 6.313 | 0.000 | $163.19 |
| 0420 | 1051 | CLEARVIEW LIBRARY | 3.546 | 0.000 | $91.66 |
| 0420 | 0301 | NORTHERN COLORADO WATER (NCW) | 1.000 | 0.000 | $25.85 |
| 0420 | 0204 | SCHOOL DIST RE4-WINDSOR | 0.000 | 46.646 | $1,360.20 |
| 0420 | 0100 | WELD COUNTY | 15.956 | 0.000 | $412.46 |
| 0420 | 0428 | WINDSOR TOWN | 12.030 | 0.000 | $310.98 |
| 0420 | 0521 | WINDSOR-SEVERANCE FIRE | 8.535 | 0.000 | $220.63 |
| Total | - | - | 47.38 | 46.646 | $2,584.97 |
The estimate of tax is based on the prior year mill levy and the 2025 projected assessment rates. Mill levies and tax estimates will be updated yearly on December 22nd for the current year. Additional information can be found at https://assessor.weld.gov



