Account: R1530986

April 1, 2026

Account Parcel Account Type Tax Year Buildings Actual Value Local Govt Assessed Value School Assessed Value
R1530986 080721214017 Residential 2026 1 373,267 23,330 26,310

Legal
WIN 23120 L12 BLK23

Subdivision Block Lot Land Economic Area
WINDSOR TOWN 23 12 ORIGINAL TOWN WINDSOR

Property Address Property City Section Township Range
523 ELM ST WINDSOR 21 06 67




Account Parcel Account Type Tax Year Buildings Actual Value Local Govt Assessed Value School Assessed Value
R1530986 080721214017 Residential 2026 1 373,267 23,330 26,310

Account Owner Name Address
R1530986 MIDDLETON JACK C 523 ELM ST WINDSOR, CO 805505249
R1530986 MIDDLETON LOLA M


Account Parcel Account Type Tax Year Buildings Actual Value Local Govt Assessed Value School Assessed Value
R1530986 080721214017 Residential 2026 1 373,267 23,330 26,310

Reception Rec Date Type Grantor Grantee Doc Fee Sale Date Sale Price
4938988 01-09-2024 BN MIDDLETON JACK C MIDDLETON JACK C 0.00 12-28-2023 0
76922 NA SUB SUBDIVISION WINDSOR 2ND FG 0.00 NA 0



Account Parcel Account Type Tax Year Buildings Actual Value Local Govt Assessed Value School Assessed Value
R1530986 080721214017 Residential 2026 1 373,267 23,330 26,310

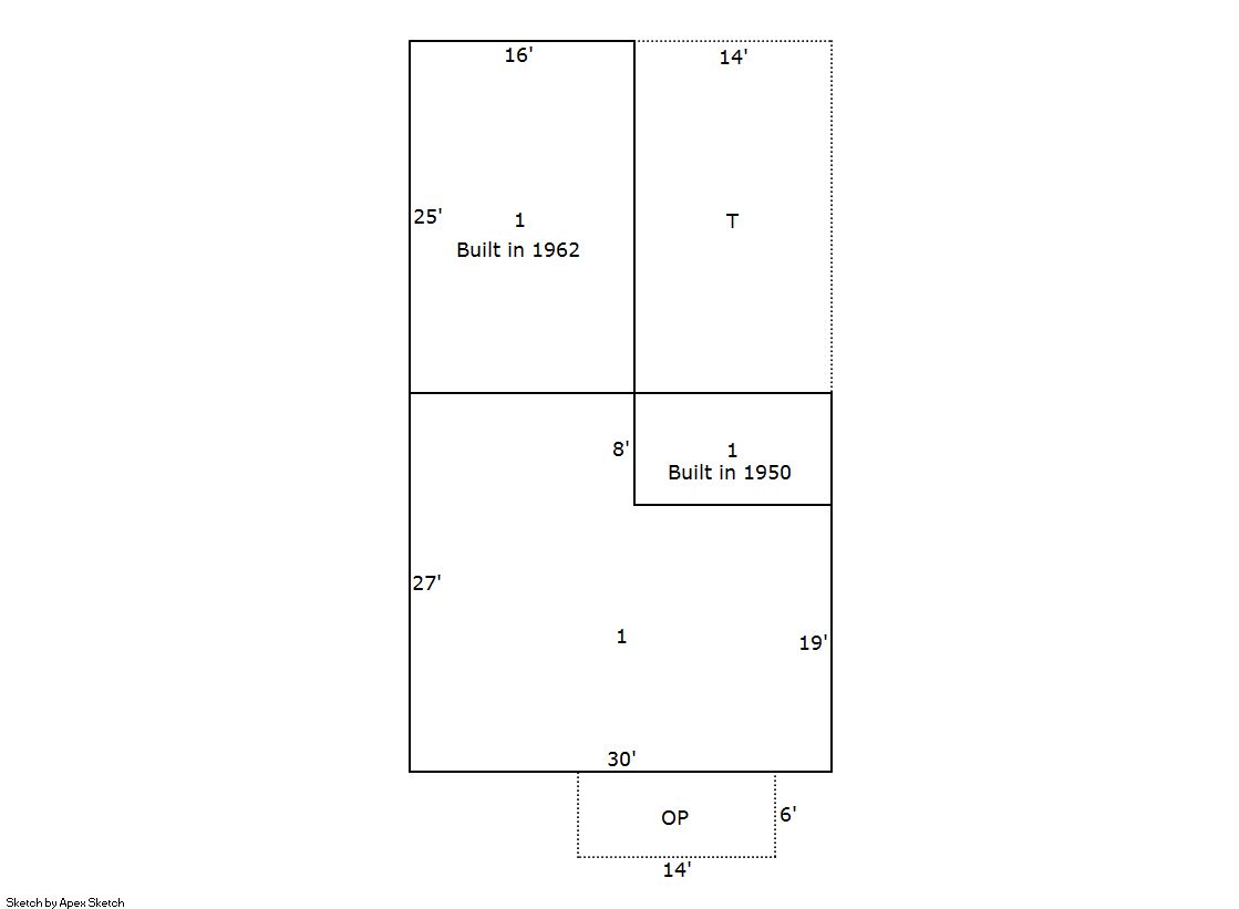
Building 1

AccountNo Building ID Occupancy
R1530986 1 Single Family Residential


ID Type NBHD Occupancy % Complete Bedrooms Baths
1 Residential 2W2007 Single Family Residential 100 3 1.00


ID Exterior Roof Cover Interior HVAC Perimeter Units Unit Type Make
1 Frame Hardboard Composition Shingle Drywall Hot Water Baseboard 240 0 NA NA


ID Square Ft Condo SF Total Basement SF Finished Basement SF Garage SF Carport SF Balcony SF Porch SF
1 1,210 0 0 0 200 0 0 350


Built As Details for Building 1
ID Built As Square Ft Year Built Stories Length Width
1.00 Ranch 1 Story 1,210 1900 1 0 0


Additional Details for Building 1
ID Detail Type Description Units
1 Fixture Full Bath 1.00
1 Garage Detached 200.00
1 Porch Open Slab 350.00
1 Porch Slab Roof Ceil 84.00





Account Parcel Account Type Tax Year Buildings Actual Value Local Govt Assessed Value School Assessed Value
R1530986 080721214017 Residential 2026 1 373,267 23,330 26,310

Type Code Description Actual Value Local Govt Assessed Value School Assessed Value Acres Land SqFt
Improvement 1212 SINGLE FAMILY RESIDENTIAL IMPROVEMENTS 305,267 19,080 21,520 0.000 0
Land 1112 SINGLE FAMILY RESIDENTIAL-LAND 68,000 4,250 4,790 0.195 8,500
Totals - - 373,267 23,330 26,310 0.195 8,500


Account Parcel Account Type Tax Year Buildings Actual Value Local Govt Assessed Value School Assessed Value
R1530986 080721214017 Residential 2026 1 373,267 23,330 26,310

Tax Area District ID District Name Local Govt
Mill Levy
School
Mill Levy
Estimated
Taxes
0420 0700 AIMS JUNIOR COLLEGE 6.313 0.000 $147.28
0420 1051 CLEARVIEW LIBRARY 3.546 0.000 $82.73
0420 0301 NORTHERN COLORADO WATER (NCW) 1.000 0.000 $23.33
0420 0204 SCHOOL DIST RE4-WINDSOR 0.000 46.646 $1,227.26
0420 0100 WELD COUNTY 15.956 0.000 $372.25
0420 0428 WINDSOR TOWN 12.030 0.000 $280.66
0420 0521 WINDSOR-SEVERANCE FIRE 8.535 0.000 $199.12
Total - - 47.38 46.646 $2,332.63


The estimate of tax is based on the prior year mill levy and the 2025 projected assessment rates. Mill levies and tax estimates will be updated yearly on December 22nd for the current year. Additional information can be found at https://assessor.weld.gov










Select Reports to Print: