Account: R1548886

April 1, 2026

Account Parcel Account Type Tax Year Buildings Actual Value Local Govt Assessed Value School Assessed Value
R1548886 080721228005 Residential 2026 1 497,020 31,060 35,040

Legal
WIN 1WD1-5 L5 BLK1 WINDSOR DEV 1ST SUB

Subdivision Block Lot Land Economic Area
WINDSOR DEVELOPMENT 1ST SUB 1 5 ORIGINAL TOWN WINDSOR

Property Address Property City Section Township Range
501 CHESTNUT ST WINDSOR 21 06 67




Account Parcel Account Type Tax Year Buildings Actual Value Local Govt Assessed Value School Assessed Value
R1548886 080721228005 Residential 2026 1 497,020 31,060 35,040

Account Owner Name Address
R1548886 RILEY CRAIG S 501 CHESTNUT ST WINDSOR, CO 805505332
R1548886 RILEY VICKIE G


Account Parcel Account Type Tax Year Buildings Actual Value Local Govt Assessed Value School Assessed Value
R1548886 080721228005 Residential 2026 1 497,020 31,060 35,040

Reception Rec Date Type Grantor Grantee Doc Fee Sale Date Sale Price
01950424 12-19-1983 QCN 0.00 01-01-1900 0
1719405 NA SUB SUBDIVISION WINDSOR DEVELOPMENT 1ST 0.00 NA 0
2205105 02-12-1990 WD BESEL DONALD L DBA WINDSOR DE FIRST SECURITY BANK OF WINDSOR 9.00 02-12-1990 90,000
2238150 01-10-1991 WD FIRST SECURITY BANK OF WINDSOR PHILLIPS RONALD L & DIXIE L 9.00 12-05-1990 90,000
2688286 04-20-1999 WD PHILLIPS RONALD L & DIXIE L DAVIS LONNIE G & KATHY L 14.20 04-16-1999 142,000
2775777 06-20-2000 WD DAVIS LONNIE G & KATHY L O KANE CHARLES J & BARBARA V 15.59 06-16-2000 155,900
3328103 10-03-2005 WD O KANE CHARLES J & BARBARA V STOLZ P SIMONE 20.15 09-30-2005 201,500
3511159 10-15-2007 QCN STOLZ P SIMONE BROWN PAULE SIMONE 0.00 10-03-2007 0
3657538 11-03-2009 WD BROWN PAULE SIMONE RILEY CRAIG S 21.20 10-30-2009 212,000
3698289 06-09-2010 SWDN RILEY CRAIG S RILEY CRAIG S 0.00 05-21-2010 0



Account Parcel Account Type Tax Year Buildings Actual Value Local Govt Assessed Value School Assessed Value
R1548886 080721228005 Residential 2026 1 497,020 31,060 35,040

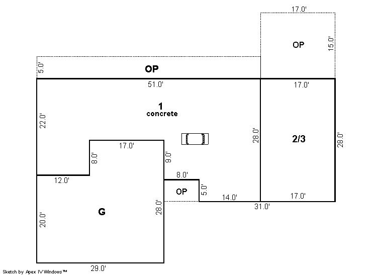
Building 1

AccountNo Building ID Occupancy
R1548886 1 Single Family Residential


ID Type NBHD Occupancy % Complete Bedrooms Baths
1 Residential 2W2007 Single Family Residential 100 3 3.00


ID Exterior Roof Cover Interior HVAC Perimeter Units Unit Type Make
1 Frame Masonry Veneer Wood Shake Drywall Central Air to Air 0 0 NA NA


ID Square Ft Condo SF Total Basement SF Finished Basement SF Garage SF Carport SF Balcony SF Porch SF
1 2,030 0 0 0 716 0 0 550


Built As Details for Building 1
ID Built As Square Ft Year Built Stories Length Width
1.00 Split Level 2,030 1978 1 0 0


Additional Details for Building 1
ID Detail Type Description Units
1 Add On Fireplace Wood 1.00
1 Add On Suspended Heaters 1.00
1 Fixture Full Bath 3.00
1 Garage Attached 716.00
1 Porch Slab Roof Ceil 550.00





Account Parcel Account Type Tax Year Buildings Actual Value Local Govt Assessed Value School Assessed Value
R1548886 080721228005 Residential 2026 1 497,020 31,060 35,040

Type Code Description Actual Value Local Govt Assessed Value School Assessed Value Acres Land SqFt
Improvement 1212 SINGLE FAMILY RESIDENTIAL IMPROVEMENTS 429,012 26,810 30,250 0.000 0
Land 1112 SINGLE FAMILY RESIDENTIAL-LAND 68,008 4,250 4,790 0.195 8,501
Totals - - 497,020 31,060 35,040 0.195 8,501


Account Parcel Account Type Tax Year Buildings Actual Value Local Govt Assessed Value School Assessed Value
R1548886 080721228005 Residential 2026 1 497,020 31,060 35,040

Tax Area District ID District Name Local Govt
Mill Levy
School
Mill Levy
Estimated
Taxes
0420 0700 AIMS JUNIOR COLLEGE 6.313 0.000 $196.08
0420 1051 CLEARVIEW LIBRARY 3.546 0.000 $110.14
0420 0301 NORTHERN COLORADO WATER (NCW) 1.000 0.000 $31.06
0420 0204 SCHOOL DIST RE4-WINDSOR 0.000 46.646 $1,634.48
0420 0100 WELD COUNTY 15.956 0.000 $495.59
0420 0428 WINDSOR TOWN 12.030 0.000 $373.65
0420 0521 WINDSOR-SEVERANCE FIRE 8.535 0.000 $265.10
Total - - 47.38 46.646 $3,106.10


The estimate of tax is based on the prior year mill levy and the 2025 projected assessment rates. Mill levies and tax estimates will be updated yearly on December 22nd for the current year. Additional information can be found at https://assessor.weld.gov










Select Reports to Print: