Account: R1559886

April 1, 2026

Account Parcel Account Type Tax Year Buildings Actual Value Local Govt Assessed Value School Assessed Value
R1559886 080721403001 Residential 2026 1 380,618 23,790 26,840

Legal
WIN 1WV3-64 L64 BLK3 WINDSOR VILLAGE 1ST FILING

Subdivision Block Lot Land Economic Area
WINDSOR VILLAGE 1ST FG 3 64 CORNERSTONE

Property Address Property City Section Township Range
1 ROCHESTER DR WINDSOR 21 06 67




Account Parcel Account Type Tax Year Buildings Actual Value Local Govt Assessed Value School Assessed Value
R1559886 080721403001 Residential 2026 1 380,618 23,790 26,840

Account Owner Name Address
R1559886 PUENTE AGUSTIN G 1 ROCHESTER DR WINDSOR, CO 805505517
R1559886 PUENTE JUANITA (HEIRS OF)


Account Parcel Account Type Tax Year Buildings Actual Value Local Govt Assessed Value School Assessed Value
R1559886 080721403001 Residential 2026 1 380,618 23,790 26,840

Reception Rec Date Type Grantor Grantee Doc Fee Sale Date Sale Price
01951180 12-27-1983 WDN SECRETARY OF HOUSING AND URBAN DEVELOPMENT DAVIS HERB; DAVIS LORI A 0.00 12-22-1983 0
02147980 07-14-1988 PTD DAVIS HERB; DAVIS LORI A LOMAS & NETTLETON COMPANY 0.00 07-13-1988 0
02149057 07-22-1988 SWDN LOMAS MORTGAGE USA INC SECRETARY OF HOUSING AND URBAN DEVELOPMENT 0.00 07-08-1988 0
02179144 05-09-1989 DN SECRETARY OF HOUSING AND URBAN DEVELOPMENT PUENTE AGUSTIN G; PUENTE JUANITA 0.00 05-04-1989 0
1589298 NA SUB SUBDIVISION WINDSOR VILLAGE 1ST FG 0.00 NA 0
5085791 03-02-2026 DTHC PUENTE JUANITA PUENTE JUANITA (HEIRS OF) 0.00 11-30-2025 0



Account Parcel Account Type Tax Year Buildings Actual Value Local Govt Assessed Value School Assessed Value
R1559886 080721403001 Residential 2026 1 380,618 23,790 26,840

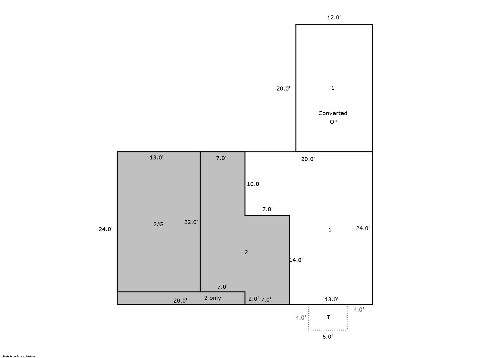
Building 1

AccountNo Building ID Occupancy
R1559886 1 Single Family Residential


ID Type NBHD Occupancy % Complete Bedrooms Baths
1 Residential 2W1005 Single Family Residential 100 3 2.00


ID Exterior Roof Cover Interior HVAC Perimeter Units Unit Type Make
1 Frame Hardboard Composition Shingle Drywall Forced Air 268 0 NA NA


ID Square Ft Condo SF Total Basement SF Finished Basement SF Garage SF Carport SF Balcony SF Porch SF
1 1,452 0 0 0 286 0 0 24


Built As Details for Building 1
ID Built As Square Ft Year Built Stories Length Width
1.00 2 Story 1,452 1975 2 0 0


Additional Details for Building 1
ID Detail Type Description Units
1 Fixture Full Bath 2.00
1 Garage Attached 286.00
1 Porch Open Slab 24.00





Account Parcel Account Type Tax Year Buildings Actual Value Local Govt Assessed Value School Assessed Value
R1559886 080721403001 Residential 2026 1 380,618 23,790 26,840

Type Code Description Actual Value Local Govt Assessed Value School Assessed Value Acres Land SqFt
Improvement 1212 SINGLE FAMILY RESIDENTIAL IMPROVEMENTS 290,618 18,160 20,490 0.000 0
Land 1112 SINGLE FAMILY RESIDENTIAL-LAND 90,000 5,630 6,350 0.139 6,054
Totals - - 380,618 23,790 26,840 0.139 6,054


Account Parcel Account Type Tax Year Buildings Actual Value Local Govt Assessed Value School Assessed Value
R1559886 080721403001 Residential 2026 1 380,618 23,790 26,840

Tax Area District ID District Name Local Govt
Mill Levy
School
Mill Levy
Estimated
Taxes
0420 0700 AIMS JUNIOR COLLEGE 6.313 0.000 $150.19
0420 1051 CLEARVIEW LIBRARY 3.546 0.000 $84.36
0420 0301 NORTHERN COLORADO WATER (NCW) 1.000 0.000 $23.79
0420 0204 SCHOOL DIST RE4-WINDSOR 0.000 46.646 $1,251.98
0420 0100 WELD COUNTY 15.956 0.000 $379.59
0420 0428 WINDSOR TOWN 12.030 0.000 $286.19
0420 0521 WINDSOR-SEVERANCE FIRE 8.535 0.000 $203.05
Total - - 47.38 46.646 $2,379.15


The estimate of tax is based on the prior year mill levy and the 2025 projected assessment rates. Mill levies and tax estimates will be updated yearly on December 22nd for the current year. Additional information can be found at https://assessor.weld.gov










Select Reports to Print: