Account: R1566986

April 1, 2026

Account Parcel Account Type Tax Year Buildings Actual Value Local Govt Assessed Value School Assessed Value
R1566986 080721404008 Residential 2026 1 444,362 27,780 31,330

Legal
WIN 2WV1-8 L8 BLK1 WINDSOR VILLAGE 2ND FILING & REPLAT OUTLOT A WINDSOR VILLAGE 1ST FILING

Subdivision Block Lot Land Economic Area
WINDSOR VILLAGE 2ND FG 1 8 CORNERSTONE

Property Address Property City Section Township Range
35 ROCHESTER DR WINDSOR 21 06 67




Account Parcel Account Type Tax Year Buildings Actual Value Local Govt Assessed Value School Assessed Value
R1566986 080721404008 Residential 2026 1 444,362 27,780 31,330

Account Owner Name Address
R1566986 HUNT ROBERT J 35 ROCHESTER DR WINDSOR, CO 805505519
R1566986 HUNT ROBERT G


Account Parcel Account Type Tax Year Buildings Actual Value Local Govt Assessed Value School Assessed Value
R1566986 080721404008 Residential 2026 1 444,362 27,780 31,330

Reception Rec Date Type Grantor Grantee Doc Fee Sale Date Sale Price
01785171 03-22-1979 WDN 0.00 01-01-1900 0
1738424 NA SUB SUBDIVISION WINDSOR VILLAGE 2ND FG & RPLT OTLT A WINDSOR VILLAGE 1ST FG 0.00 NA 0
2685928 04-08-1999 QCN HUNT ROBERT J & BONNIE B HUNT ROBERT J & ROBERT G 0.00 04-07-1999 0



Account Parcel Account Type Tax Year Buildings Actual Value Local Govt Assessed Value School Assessed Value
R1566986 080721404008 Residential 2026 1 444,362 27,780 31,330

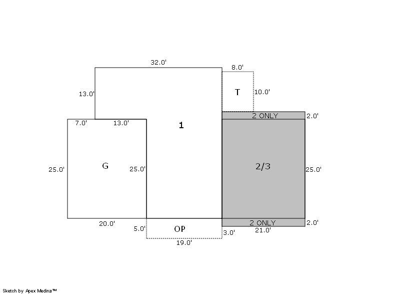
Building 1

AccountNo Building ID Occupancy
R1566986 1 Single Family Residential


ID Type NBHD Occupancy % Complete Bedrooms Baths
1 Residential 2W1005 Single Family Residential 100 4 3.00


ID Exterior Roof Cover Interior HVAC Perimeter Units Unit Type Make
1 Frame Siding Wood Shingle Drywall Forced Air 0 0 NA NA


ID Square Ft Condo SF Total Basement SF Finished Basement SF Garage SF Carport SF Balcony SF Porch SF
1 2,025 0 0 0 500 0 0 80


Built As Details for Building 1
ID Built As Square Ft Year Built Stories Length Width
1.00 Split Level 2,025 1979 1 0 0


Additional Details for Building 1
ID Detail Type Description Units
1 Add On Fireplace Wood 1.00
1 Fixture Full Bath 3.00
1 Garage Attached 500.00
1 Porch Open Slab 80.00
1 Porch Slab Roof Ceil 95.00





Account Parcel Account Type Tax Year Buildings Actual Value Local Govt Assessed Value School Assessed Value
R1566986 080721404008 Residential 2026 1 444,362 27,780 31,330

Type Code Description Actual Value Local Govt Assessed Value School Assessed Value Acres Land SqFt
Improvement 1212 SINGLE FAMILY RESIDENTIAL IMPROVEMENTS 354,362 22,150 24,980 0.000 0
Land 1112 SINGLE FAMILY RESIDENTIAL-LAND 90,000 5,630 6,350 0.215 9,364
Totals - - 444,362 27,780 31,330 0.215 9,364


Account Parcel Account Type Tax Year Buildings Actual Value Local Govt Assessed Value School Assessed Value
R1566986 080721404008 Residential 2026 1 444,362 27,780 31,330

Tax Area District ID District Name Local Govt
Mill Levy
School
Mill Levy
Estimated
Taxes
0420 0700 AIMS JUNIOR COLLEGE 6.313 0.000 $175.38
0420 1051 CLEARVIEW LIBRARY 3.546 0.000 $98.51
0420 0301 NORTHERN COLORADO WATER (NCW) 1.000 0.000 $27.78
0420 0204 SCHOOL DIST RE4-WINDSOR 0.000 46.646 $1,461.42
0420 0100 WELD COUNTY 15.956 0.000 $443.26
0420 0428 WINDSOR TOWN 12.030 0.000 $334.19
0420 0521 WINDSOR-SEVERANCE FIRE 8.535 0.000 $237.10
Total - - 47.38 46.646 $2,777.64


The estimate of tax is based on the prior year mill levy and the 2025 projected assessment rates. Mill levies and tax estimates will be updated yearly on December 22nd for the current year. Additional information can be found at https://assessor.weld.gov










Select Reports to Print: