Account: R1570886
April 1, 2026
| Account | Parcel | Account Type | Tax Year | Buildings | Actual Value | Local Govt Assessed Value | School Assessed Value |
|---|---|---|---|---|---|---|---|
| R1570886 | 080721406023 | Residential | 2026 | 1 | 418,666 | 26,170 | 29,520 |
| Legal |
|---|
| WIN 3WV16-1 L1 BLK16 WINDSOR VILLAGE 3RD FILING |
| Subdivision | Block | Lot | Land Economic Area |
|---|---|---|---|
| WINDSOR VILLAGE 3RD FG RPLT TR"A" 1ST FG | 16 | 1 | CORNERSTONE |
| Property Address | Property City | Section | Township | Range |
|---|---|---|---|---|
| 904 WOODBINE DR | WINDSOR | 21 | 06 | 67 |
| Account | Parcel | Account Type | Tax Year | Buildings | Actual Value | Local Govt Assessed Value | School Assessed Value |
|---|---|---|---|---|---|---|---|
| R1570886 | 080721406023 | Residential | 2026 | 1 | 418,666 | 26,170 | 29,520 |
| Account | Owner Name | Address |
|---|---|---|
| R1570886 | HOLMES JEFFREY | 904 WOODBINE DR WINDSOR, CO 805505510 |
| R1570886 | HOLMES CIARA |
| Account | Parcel | Account Type | Tax Year | Buildings | Actual Value | Local Govt Assessed Value | School Assessed Value |
|---|---|---|---|---|---|---|---|
| R1570886 | 080721406023 | Residential | 2026 | 1 | 418,666 | 26,170 | 29,520 |
| Reception | Rec Date | Type | Grantor | Grantee | Doc Fee | Sale Date | Sale Price |
|---|---|---|---|---|---|---|---|
| 02056486 | 06-09-1986 | WDN | 0.00 | 01-01-1900 | 0 | ||
| 1646055 | NA | SUB | SUBDIVISION | WINDSOR VILLAGE 3RD FG | 0.00 | NA | 0 |
| 2693826 | 05-14-1999 | WDN | TODD WILLIAM IRL & RUBY A | BONAHOOM TOBIE | 0.00 | 09-30-1997 | 0 |
| 2930514 | 03-05-2002 | WD | BONAHOOM TOBIE | ENDEAN STEVEN R & SHEILA S | 13.70 | 02-25-2002 | 137,000 |
| 3648480 | 09-14-2009 | QCN | ENDEAN STEVEN R | ENDEAN SHEILA S | 0.00 | 08-28-2009 | 0 |
| 4119532 | 06-26-2015 | QCN | ENDEAN SHEILA S | ENDEAN SHEILA S;MARTIN ZACHARY J; DESPAIN MARK | 0.00 | 05-29-2015 | 0 |
| 4123429 | 07-10-2015 | WD | ENDEAN SHEILA S; MARTIN ZACHARY J; DESPAIN MARK | SCHORLING THOMAS R; SCHORLING DEDRIENNE R | 22.00 | 07-08-2015 | 220,000 |
| 4276129 | 02-07-2017 | WD | SCHORLING THOMAS R; SCHORLING DEDRIENNE R | MOUTON DOUGLAS M; MOUTON BRITTA S | 30.00 | 02-03-2017 | 300,000 |
| 5069037 | 11-26-2025 | WD | MOUTON DOUGLAS M; MOUTON BRITTA S | HOLMES JEFFREY; HOLMES CIARA | 45.00 | 11-21-2025 | 450,000 |
| X0003734 | 06-09-1986 | WD | LANGSTON JOANN K | TODD WILLIAM IRL; TODD RUBY A | 4.50 | 06-09-1986 | 45,000 |
*If the hyperlink for the reception number does not work, try a manual search in the Clerk and Recorder records. Use the Grantor or Grantee in your search.
| Account | Parcel | Account Type | Tax Year | Buildings | Actual Value | Local Govt Assessed Value | School Assessed Value |
|---|---|---|---|---|---|---|---|
| R1570886 | 080721406023 | Residential | 2026 | 1 | 418,666 | 26,170 | 29,520 |
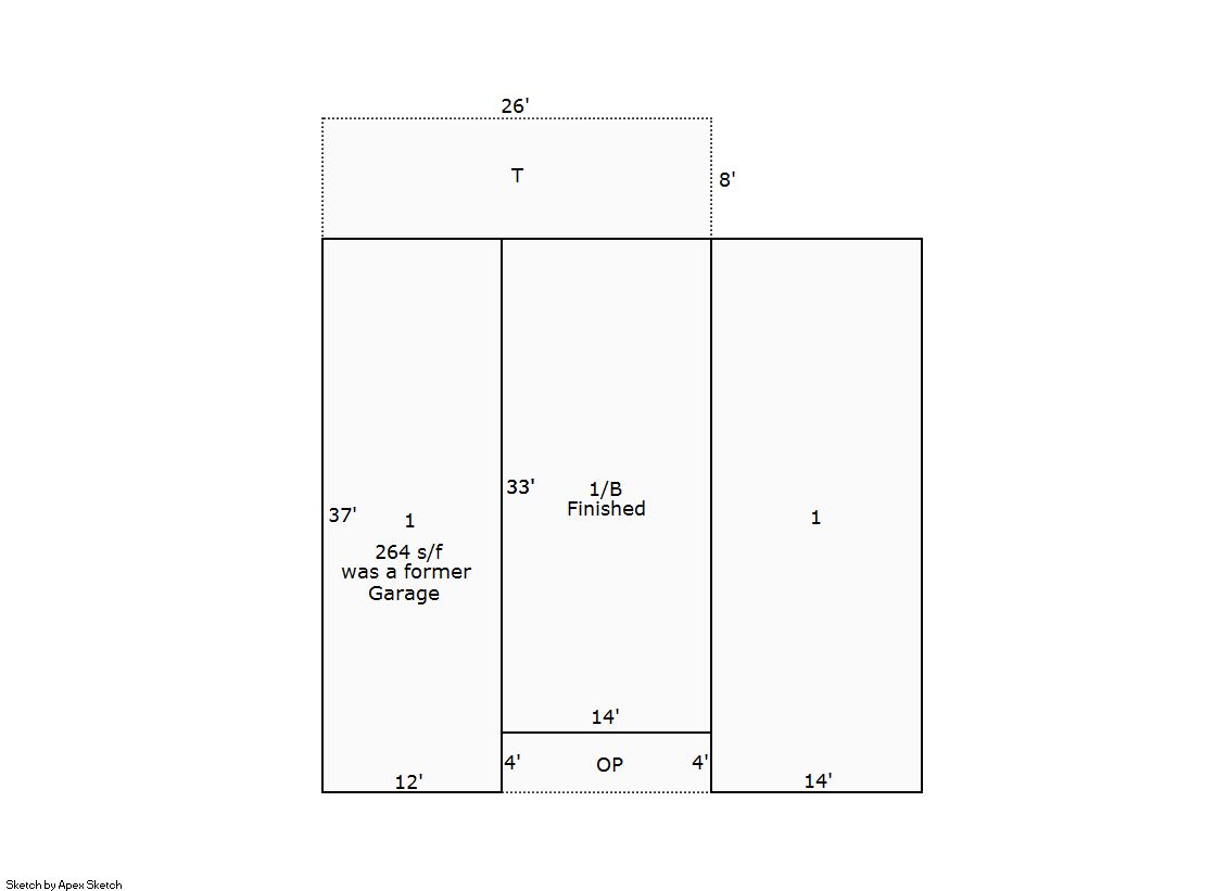
Building 1
| AccountNo | Building ID | Occupancy |
|---|---|---|
| R1570886 | 1 | Single Family Residential |
| ID | Type | NBHD | Occupancy | % Complete | Bedrooms | Baths |
|---|---|---|---|---|---|---|
| 1 | Residential | 2W1005 | Single Family Residential | 100 | 4 | 3.00 |
| ID | Exterior | Roof Cover | Interior | HVAC | Perimeter | Units | Unit Type | Make |
|---|---|---|---|---|---|---|---|---|
| 1 | Frame Vinyl | Composition Shingle | Drywall | Central Air to Air | 162 | 0 | NA | NA |
| ID | Square Ft | Condo SF | Total Basement SF | Finished Basement SF | Garage SF | Carport SF | Balcony SF | Porch SF |
|---|---|---|---|---|---|---|---|---|
| 1 | 1,424 | 0 | 462 | 462 | 0 | 0 | 0 | 208 |
| ID | Built As | Square Ft | Year Built | Stories | Length | Width |
|---|---|---|---|---|---|---|
| 1.00 | Ranch 1 Story | 1,424 | 1975 | 1 | 0 | 0 |
| ID | Detail Type | Description | Units |
|---|---|---|---|
| 1 | Add On | Heat Evaporative Coolers | 1.00 |
| 1 | Basement | Finished | 462.00 |
| 1 | Basement | Total Basement SF | 462.00 |
| 1 | Fixture | Full Bath | 3.00 |
| 1 | Porch | Open Slab | 208.00 |
| 1 | Porch | Slab Roof Ceil | 56.00 |
| Account | Parcel | Account Type | Tax Year | Buildings | Actual Value | Local Govt Assessed Value | School Assessed Value |
|---|---|---|---|---|---|---|---|
| R1570886 | 080721406023 | Residential | 2026 | 1 | 418,666 | 26,170 | 29,520 |
| Type | Code | Description | Actual Value | Local Govt Assessed Value | School Assessed Value | Acres | Land SqFt |
|---|---|---|---|---|---|---|---|
| Improvement | 1212 | SINGLE FAMILY RESIDENTIAL IMPROVEMENTS | 328,666 | 20,540 | 23,170 | 0.000 | 0 |
| Land | 1112 | SINGLE FAMILY RESIDENTIAL-LAND | 90,000 | 5,630 | 6,350 | 0.183 | 7,948 |
| Totals | - | - | 418,666 | 26,170 | 29,520 | 0.183 | 7,948 |
Comparable sales for your Residential or Commercial property may be found using our SALES SEARCH TOOL
Values are updated annually on May 1st for Real Property and June 15th for Personal Property and Oil and Gas.
| Account | Parcel | Account Type | Tax Year | Buildings | Actual Value | Local Govt Assessed Value | School Assessed Value |
|---|---|---|---|---|---|---|---|
| R1570886 | 080721406023 | Residential | 2026 | 1 | 418,666 | 26,170 | 29,520 |
| Tax Area | District ID | District Name | Local Govt Mill Levy |
School Mill Levy |
Estimated Taxes |
|---|---|---|---|---|---|
| 0420 | 0700 | AIMS JUNIOR COLLEGE | 6.313 | 0.000 | $165.21 |
| 0420 | 1051 | CLEARVIEW LIBRARY | 3.546 | 0.000 | $92.80 |
| 0420 | 0301 | NORTHERN COLORADO WATER (NCW) | 1.000 | 0.000 | $26.17 |
| 0420 | 0204 | SCHOOL DIST RE4-WINDSOR | 0.000 | 46.646 | $1,376.99 |
| 0420 | 0100 | WELD COUNTY | 15.956 | 0.000 | $417.57 |
| 0420 | 0428 | WINDSOR TOWN | 12.030 | 0.000 | $314.83 |
| 0420 | 0521 | WINDSOR-SEVERANCE FIRE | 8.535 | 0.000 | $223.36 |
| Total | - | - | 47.38 | 46.646 | $2,616.92 |
The estimate of tax is based on the prior year mill levy and the 2025 projected assessment rates. Mill levies and tax estimates will be updated yearly on December 22nd for the current year. Additional information can be found at https://assessor.weld.gov


