Account: R1572186
April 1, 2026
| Account | Parcel | Account Type | Tax Year | Buildings | Actual Value | Local Govt Assessed Value | School Assessed Value |
|---|---|---|---|---|---|---|---|
| R1572186 | 080721408002 | Residential | 2026 | 1 | 413,333 | 25,840 | 29,140 |
| Legal |
|---|
| WIN 3WV15-2 L2 BLK15 WINDSOR VILLAGE 3RD FILING |
| Subdivision | Block | Lot | Land Economic Area |
|---|---|---|---|
| WINDSOR VILLAGE 3RD FG | 15 | 2 | CORNERSTONE |
| Property Address | Property City | Section | Township | Range |
|---|---|---|---|---|
| 903 WOODBINE DR | WINDSOR | 21 | 06 | 67 |
| Account | Parcel | Account Type | Tax Year | Buildings | Actual Value | Local Govt Assessed Value | School Assessed Value |
|---|---|---|---|---|---|---|---|
| R1572186 | 080721408002 | Residential | 2026 | 1 | 413,333 | 25,840 | 29,140 |
| Account | Owner Name | Address |
|---|---|---|
| R1572186 | JUELFS CORI JO SALIN | 903 WOODBINE DR WINDSOR, CO 805505509 |
| Account | Parcel | Account Type | Tax Year | Buildings | Actual Value | Local Govt Assessed Value | School Assessed Value |
|---|---|---|---|---|---|---|---|
| R1572186 | 080721408002 | Residential | 2026 | 1 | 413,333 | 25,840 | 29,140 |
| Reception | Rec Date | Type | Grantor | Grantee | Doc Fee | Sale Date | Sale Price |
|---|---|---|---|---|---|---|---|
| 02057012 | 06-12-1986 | QCN | 0.00 | 01-01-1900 | 0 | ||
| 1646055 | NA | SUB | SUBDIVISION | WINDSOR VILLAGE 3RD FG | 0.00 | NA | 0 |
| 2080696 | 12-15-1986 | WD | SCOTT LEONARD W & LINDA LEE | DREHER TOM F JR & DEBORAH L | 6.10 | 12-08-1986 | 61,000 |
| 2718556 | 09-07-1999 | QCN | DREHER TOM F JR & DEBORAH L | DREHER TOM F JR | 0.00 | 08-25-1999 | 0 |
| 2719583 | 09-10-1999 | QCN | DREHER TOM F JR | DREHER THOMAS F JR & DEBORAH L | 0.00 | 08-25-1999 | 0 |
| 3452735 | 02-02-2007 | QCN | DREHER THOMAS F JR & DEBORAH L | DREHER TOM F JR | 0.00 | 12-15-2006 | 0 |
| 3640574 | 08-04-2009 | PRDN | DREHER TOM F JR | DREHER COURTNEY | 0.00 | 07-31-2009 | 0 |
| 4531741 | 10-11-2019 | QCN | DREHER COURTNEY | GALE COURTNEY; GALE SAM | 0.00 | 10-07-2019 | 0 |
| 4935813 | 12-15-2023 | WD | GALE COURTNEY; GALE SAM | JUELFS CORI JO SALIN | 42.99 | 12-15-2023 | 429,900 |
| X0003741 | 06-12-1986 | CON | SCOTT LEONARD W & LINDA LEE | DREHER TOM F JR & DEBORAH L | 6.10 | 06-12-1986 | 61,000 |
*If the hyperlink for the reception number does not work, try a manual search in the Clerk and Recorder records. Use the Grantor or Grantee in your search.
| Account | Parcel | Account Type | Tax Year | Buildings | Actual Value | Local Govt Assessed Value | School Assessed Value |
|---|---|---|---|---|---|---|---|
| R1572186 | 080721408002 | Residential | 2026 | 1 | 413,333 | 25,840 | 29,140 |
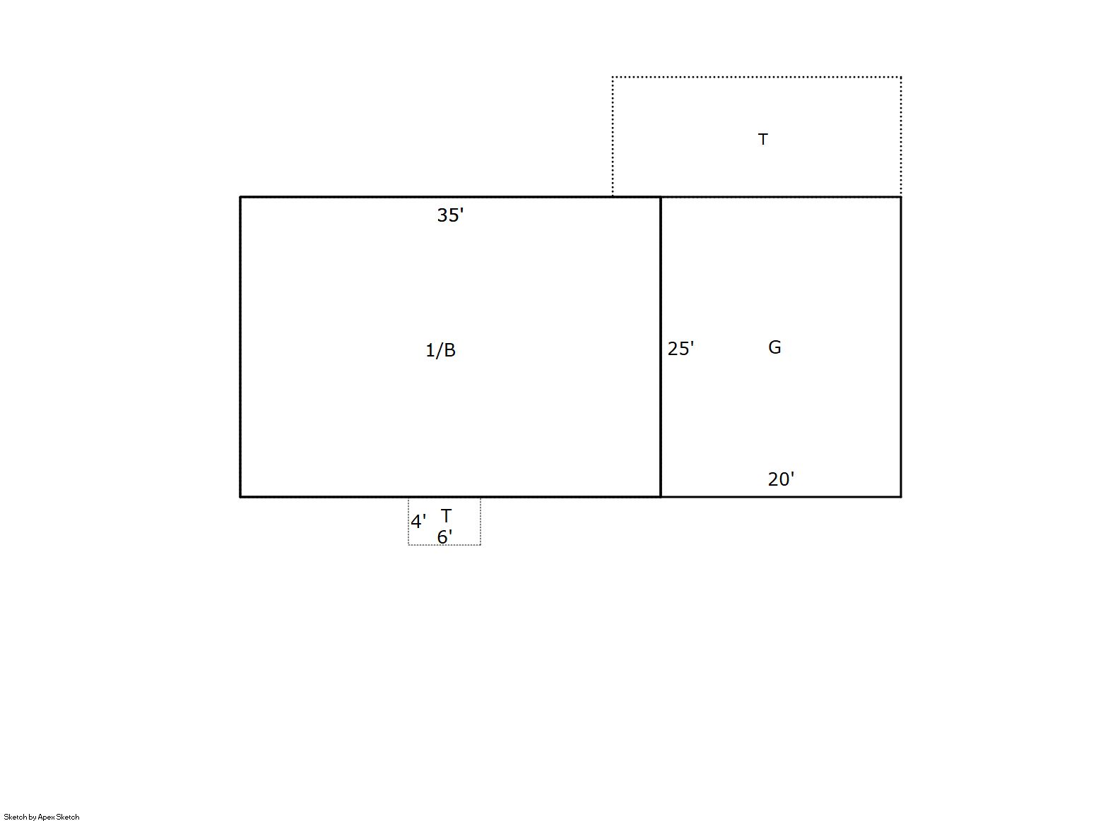
Building 1
| AccountNo | Building ID | Occupancy |
|---|---|---|
| R1572186 | 1 | Single Family Residential |
| ID | Type | NBHD | Occupancy | % Complete | Bedrooms | Baths |
|---|---|---|---|---|---|---|
| 1 | Residential | 2W1005 | Single Family Residential | 100 | 4 | 2.00 |
| ID | Exterior | Roof Cover | Interior | HVAC | Perimeter | Units | Unit Type | Make |
|---|---|---|---|---|---|---|---|---|
| 1 | Frame Masonry Veneer | Composition Shingle | Drywall | Central Air to Air | 120 | 0 | NA | NA |
| ID | Square Ft | Condo SF | Total Basement SF | Finished Basement SF | Garage SF | Carport SF | Balcony SF | Porch SF |
|---|---|---|---|---|---|---|---|---|
| 1 | 875 | 0 | 875 | 875 | 500 | 0 | 0 | 264 |
| ID | Built As | Square Ft | Year Built | Stories | Length | Width |
|---|---|---|---|---|---|---|
| 1.00 | Ranch 1 Story | 875 | 1977 | 1 | 0 | 0 |
| ID | Detail Type | Description | Units |
|---|---|---|---|
| 1 | Basement | Finished | 875.00 |
| 1 | Basement | Total Basement SF | 875.00 |
| 1 | Fixture | Full Bath | 2.00 |
| 1 | Garage | Attached | 500.00 |
| 1 | Porch | Open Slab | 264.00 |
| Account | Parcel | Account Type | Tax Year | Buildings | Actual Value | Local Govt Assessed Value | School Assessed Value |
|---|---|---|---|---|---|---|---|
| R1572186 | 080721408002 | Residential | 2026 | 1 | 413,333 | 25,840 | 29,140 |
| Type | Code | Description | Actual Value | Local Govt Assessed Value | School Assessed Value | Acres | Land SqFt |
|---|---|---|---|---|---|---|---|
| Improvement | 1212 | SINGLE FAMILY RESIDENTIAL IMPROVEMENTS | 323,333 | 20,210 | 22,790 | 0.000 | 0 |
| Land | 1112 | SINGLE FAMILY RESIDENTIAL-LAND | 90,000 | 5,630 | 6,350 | 0.179 | 7,800 |
| Totals | - | - | 413,333 | 25,840 | 29,140 | 0.179 | 7,800 |
Comparable sales for your Residential or Commercial property may be found using our SALES SEARCH TOOL
Values are updated annually on May 1st for Real Property and June 15th for Personal Property and Oil and Gas.
| Account | Parcel | Account Type | Tax Year | Buildings | Actual Value | Local Govt Assessed Value | School Assessed Value |
|---|---|---|---|---|---|---|---|
| R1572186 | 080721408002 | Residential | 2026 | 1 | 413,333 | 25,840 | 29,140 |
| Tax Area | District ID | District Name | Local Govt Mill Levy |
School Mill Levy |
Estimated Taxes |
|---|---|---|---|---|---|
| 0420 | 0700 | AIMS JUNIOR COLLEGE | 6.313 | 0.000 | $163.13 |
| 0420 | 1051 | CLEARVIEW LIBRARY | 3.546 | 0.000 | $91.63 |
| 0420 | 0301 | NORTHERN COLORADO WATER (NCW) | 1.000 | 0.000 | $25.84 |
| 0420 | 0204 | SCHOOL DIST RE4-WINDSOR | 0.000 | 46.646 | $1,359.26 |
| 0420 | 0100 | WELD COUNTY | 15.956 | 0.000 | $412.30 |
| 0420 | 0428 | WINDSOR TOWN | 12.030 | 0.000 | $310.86 |
| 0420 | 0521 | WINDSOR-SEVERANCE FIRE | 8.535 | 0.000 | $220.54 |
| Total | - | - | 47.38 | 46.646 | $2,583.56 |
The estimate of tax is based on the prior year mill levy and the 2025 projected assessment rates. Mill levies and tax estimates will be updated yearly on December 22nd for the current year. Additional information can be found at https://assessor.weld.gov


